公元9世纪,穆斯林学者在巴格达修建的智慧宫(Bayt al-Hikma)对当时的人文科学做出了杰出的贡献。巴格达智慧宫是一座图书馆也是一个研究中心,它拥有世界上最大的藏书库,供学者从事神学和科学方面的研究。
如今的宗教氛围可以利用这种自由方式,在进行宗教活动的同时也追求知识。在当地领导人、妇女和青年的支持下,Hikma 项目将一座废弃的清真寺改造成为了图书馆,并与尼日尔 Dandaji 村的一座新清真寺共用了一块场地,从而重新将伊斯兰教本身所蕴含的价值观带了回来。这是一个文化教育中心,世俗和宗教在这里和平共处,人们在这里陶冶情操,为社区的壮大做出贡献。
为了让这座历史老建筑重现昔日的辉煌,项目团队邀请了最初的泥瓦匠加入了项目团队。 在这个过程中,他们学习了粘土增强剂和侵蚀保护技术。室内装修使用金属作为学习空间、隔墙、楼梯和夹层的基础材料,并没有用到该地区传统但稀缺的木材,以此作为传统空间和现代空间之间的连接。
同时,这座新建筑还重新诠释了传统豪萨族穆斯林建筑与现代建筑的支撑结构和细节部分。它的两个楼群和户外祈祷空间适合用来日常祷告,周五聚礼日,或大型开斋节等重要活动。新旧结构之间的对话也让传统泥瓦匠和工程施工队之间合作的更加紧密。
该项目拥有学习、阅读、研究、工作室、游戏和祷告的空间。户外空间设置得足够灵活,既可以进行社区活动,也可以让自己安静地冥思。这座文化综合体成为了该地区的社区中心。
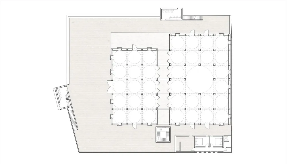
这座文化综合体包括一个可容纳1000人的清真寺,两个主礼拜空间,两个斋戒沐浴空间,和一个尖塔,还有清真寺伊玛目的两间卧室,一个图书馆,教室,阅读和学习空间,一个手工制作工作室,儿童游戏区,和一个花园。 该项目的主要建筑材料是压缩土砖(CEB),由工地附近的土壤制成,具有更好的隔热性能,以降低能源消耗。 同时也降低了建筑成本。
建筑设计:atelier masomi, studio chahar
项目位置:Dandaji Village,尼日尔
设计团队:Yasaman Esmaili (studio shahar), Mariam Kamara (atelier masōmī)
摄影师:James Wang, Mariama Kah
设计时间:2018
客户:Dandaji Village
建筑承包商:Entreprise Salou Alpha et Fils
工程:URBATEC
金属件加工:Atelier de Technologie Métallique

