今天故事的主角是一位年轻姑娘, 她的家在台湾新北市,实用面积90㎡。
人美心善的姑娘很喜欢小动物, 为救援狗狗花了很多时间和精力。 这套老房也是为了她养的两只狗狗买的, 平时就是姑娘自己居住, 因此不需要有太多复杂的功能设定, 更希望给狗狗们尽可能多的玩耍活动空间。
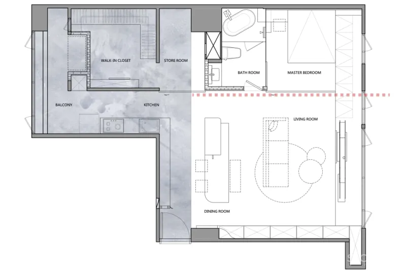
原户型是个标准的两室两厅两卫格局, 有着老房子常见的问题: 天花板很低,且梁跟管线很多。
屋主表示,她只需要有一个卧室、 一间更衣室和一间卫浴就好, 而且卧室可以尽量小一点, 剩下的空间全部留给公共空间, 既方便与狗狗相处玩耍, 也便于招待前来做客的朋友们。
设计师将能拆除的隔墙全部拆掉, 实现了屋主期望的一卧、一卫、一更衣间。
改造要点提示: 1、从入口划分两个区块,也定义两条动线,由地砖及色块引导狗狗进到后方阳台清洗。 2、压缩卧室面积,与更衣间平齐在同一直线,与客厅之间用一扇大移门,实现空间的开合切换。 3、卫生间设置双入口,方便来访的客人使用,内部采用透明玻璃增加通透感。
用两条轴线让空间功能划分明确, 整体尽量通透,动线畅通无阻。
空间从入口处一分为二成两个色块, 顺势定义出两种动线—— 进门向右进入客餐厅, 进门向左进入阳台给狗狗清洗。
与厨房操作台一体的超大收纳柜, 靠近入户门处作为鞋柜和家政柜使用。
因为狗狗散步回家需要洗脚或洗澡, 所以用深色砖引导狗狗到后阳台。
入口天花板由于梁的关系, 高度不到2.2m,但因造型简单, 实际在空间里并不觉得压迫。
屋主平常喜欢下厨也喜欢做轻食, 所以餐厅的中岛对她来说也很重要。
这里的餐桌 中岛采用嵌入的样式, 简洁且设计感十足,餐桌选用大尺寸, 平时也作为阅读和工作的桌子, 朋友来聚餐也能hold住。
餐桌两侧搭配使用餐椅和长凳, 都能方便地收至餐桌底下, 将周边通道留出,形成回形动线, 屋主和狗狗可以在空间中活动自如。
老房子天花板很低,且梁跟管线也很多, 造型应尽量简单看起来才不压迫。 设计师用了温柔的弧形元素修饰梁体, 并搭配LED灯带,弱化压迫感。
客餐厅位于同一个大的空间, 沙发后面就是中岛兼餐桌, 朋友来做客,或站或坐或逗狗狗玩耍, 不管怎么样都很舒适。
因空间有限且需要给狗狗留足活动区, 客厅没有放常规的茶几, 沙发一侧设置了一整排的收纳柜, 可以收纳客厅常用的物品。
中间过道还放上了狗狗休息的垫子。
地板选用防滑的木纹砖及大块石纹砖, 让狗狗可以轻松在空间中奔跑。
这个电视墙的设计真的很绝! 设计师打破了原有电视墙的框架, 用铁件让电视轻巧的在空间呈现, 电视有种“悬浮”的效果。
轻巧的白色铁架既是展示柜, 摆上好看的装饰和植物也是一道端景墙, 且不会阻隔后方自然光,爱了~
房间原有窗户位置偏高, 所以设计了一整条卧榻延伸至卧室, 从视觉上可以让窗户变大, 同时卧榻也是收纳空间。
客厅卧榻延伸到主卧变成床头柜一部分, 床头矿物涂料质感也延伸到浴室内。 这种“延伸”“交错”的设计手法, 能从视觉上让空间“连而不断”。
同样因为管线跟梁都很多, 天花板又低,加入弧形元素作为过渡。
卧室与客厅之间用一扇大移门分隔, 平日里移门处于敞开状态, 与客厅连成一体,空间显得更大更敞亮。
移门关上之后,就是独立的卧室, 恢复卧室应有的安静与私密性。
浴室有两个出入口,一个朝向客厅, 方便来做客的朋友使用。
卧室空间压缩后,为了视觉上显大, 内部采用了通透的玻璃隔断。 床头和浴室都内嵌了暖色灯带, 营造温馨舒适的睡眠环境。
床头的化妆桌延伸进浴室, 变成置物台,可放置洗浴用品。
厨房用深色色块来界定, 大面积的白色橱柜增加收纳, 色彩上深色与白色形成强烈对比。
干净利落的操作台面,更显厨房整洁, 洗-切-炒依次排开,贴合操作动线。
冰箱和蒸烤箱也内嵌其中。
在阳台右侧做了一个内凹空间 放置这个可升降的专门洗狗狗的机器, 听屋主说这个机器节省了很多时间, 狗狗的毛也不容易到处飞。
最后总结一下本案的几个设计巧思:
1、天花不高的话要让造型简单,为了拉高而拉高会使得视觉乱而感到更压迫。 2、中小户型可以尽量将空间开放,不同功能区之间通过“延伸”、“穿插”的设计语言让视觉上显大。 3、浅色调、通透轻盈的材质、良好的采光同样能增加空间的宽阔感。
住在如此明净敞亮的家里, 还有两只可爱狗狗相伴,真幸福~

