关于对家的无限想象和期盼,不只存在于格局、动线上考量,而且早已超脱坪数既定范畴。空间少了繁杂装饰,设计师把每份妥贴于生活中的实际需求,扎实植入于这个小宅中。


空间融入更多收纳是屋主对于居家务实的想象,借由设计师转化设计后,在保留挑高优势之余创造出充足的储物空间,餐厅、主卧房及玄关上方设有同高度夹层,巧妙设以楼梯,与空间产生关系。加乘运用3.6米高度,不仅是公共装饰增添视觉穿透度,并可依据个人使用频率与状态调整,朋友来访也能当作睡眠区域。


原先较窄小房间开放为客厅一部份展现,空间合理配置以扩大视觉感,风格上则以清爽简色调凸显材质纹理,地板采用浅木色调超耐磨地板,温润且耐看。空间局部搭配仿旧实木与铁件,有助于暖冷调相互平衡,也让环境注入个性情调。


客厅电视墙薄版瓷砖加上斜面可调式电视架,提供多元观赏角度,并辅以开放式展示柜增加置物区,配上日光随意漫射于开放式空间,这种非固定式的日常弹性,显式了现代居住的核心价值──空间大小不会局限生活态度,更关不了与自在写意的居住品质。










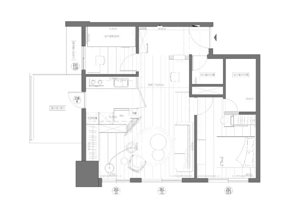
∇ 平面图 plan

完整项目信息
项目名称:高雄林宅
项目位置:中国台湾高雄
项目类型:住宅空间/小宅概念
项目面积:70平方米
设计公司:奥立佛室内设计

