感谢来自 BloomDesign绽放设计 的商业空间项目案例分享:
“每一次,我都不是在做一个有形的空间规划,每一次我都在构建一个心中的美好世界!”
—— BloomDesign 创意总监 李宝龙
“For each project, I don’t merely work to figure out the spatial planning, but more importantly, to create the beautiful world in my heart.”
— Li Baolong, Creative Director of BloomDesign

由BloomDesign绽放设计为Remember女装品牌打造的首家“新零售探索店”在上海虹口龙之梦拉开品牌探索的序幕,本案的设计重点以探索品牌跟消费者新的互动关系、品牌体验的未来性,品牌精神以及品牌价值观的表达为主要方向,经过品牌重构的方式呈现了Remember品牌未来的可能性!
BloomDesign created the first concept store for Remember, a Chinese womenswear brand, which is situated in CapitaMall Hongkou, Shanghai. The design focuses on exploring new interactive relationships between the brand and consumers, future possibilities of brand experience as well as the expression of brand spirits and values. The store refreshes the brand’s image, and opens up new possibilities for it.



打破传统、探索与创新 Innovative
空间中占比最大的内容是服装在空间中的陈列方式。绽放设计打破了服装行业原有的陈列形式,在空间中设计了一组高低错落,曲折蜿蜒且行云流水的陈列货架,以一种无规律无秩序的,自由丰富的商品陈列给消费营造了一种更为放松的购物体验。
The way that garments are displayed is the highlight of the overall interior design. BloomDesign broke with the conventional way of display in traditional apparel stores, and created a set of undulating, winding and free-flowing racks. Those irregular and disorderly racks enable clothes to be displayed in a diverse and flexible manner, which provides customers with a more relaxing and pleasant shopping experience.




为品牌植入自然的基因 Natural & austere
绽放设计在空间中借用粗犷且充满力量感的天然石材,细腻温和的多层木板,来设计空间中的家具道具以及空间装饰,这种原始材料所传达出自然,质朴的感受最终会成为品牌印象的一部分。
BloomDesign utilized solid and rustic natural stones as well as warm plywood to decorate the space, and to form furniture and props. The primitive materials give a natural and austere impression, which constitutes an important part of the brand’s image.









为消费者带来新的灵感 Inspiring
空间中银色的不锈钢陈列台、蓝色的“星球”和曲折蜿蜒的货架以一种失重状态“漂浮”在空中,与粗犷厚重的天然原石,大理石展台,充满力量感的椅子形成强烈对比。这种感受和视觉上的冲突为消费者带来新的灵感和启发。
The stainless steel stand, the blue ball and the twisting racks seem to be floating in the air, which strongly contrast with the solid natural stones, marble stand and forceful chair. Such visual distinction can bring fresh inspirations to customers.




自然的启发和治愈
Enlightening & healing
借用《新零售艺术》作者露西.強森的一句话“把店铺变成艺廊,把选品陈列变成行为艺术,把消费变成一趟发现之旅”,绽放设计与Remember品牌一道为消费者打造具有探索性,前瞻性,未来性的购物体验,我们希望消费者在购物的同时内心能得到自然的启发和治愈!
In the book The Creative Shopkeeper, Lucy Johnson proposed to turn stores into galleries, product display into performance art, and consumption into a journey of discovery. For this project, BloomDesign and Remember together explored to create forward-looking shopping experiences for consumers, hoping that their inner mind can be enlightened and healed by naturalness of the space.




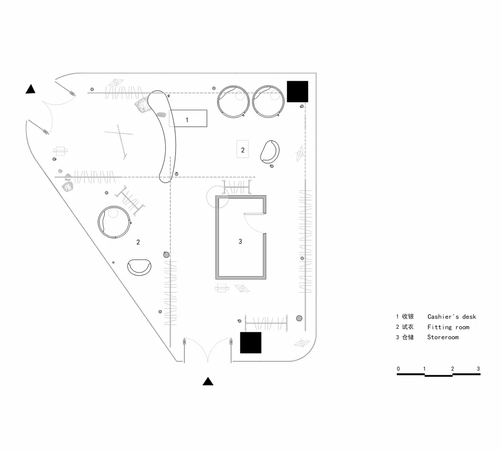
∇ 平面图

主要项目信息
设计公司:BloomDesign绽放设计(www.zhanfangdesign.com)
创意总监:李宝龙
主创设计:南鸿天
设计团队:邱文娣,廖文杰,张静,赵一川
灯光设计:南鸿天
项目地址:上海市虹口区西江湾路388号凯德龙之梦购物中心
建筑面积:90㎡
项目材质:灰色编织地毯、灰色麻石、镜面、白色亚光金属板
完工时间:2019.8
摄 影:鲁哈哈
Interior design firm: BloomDesign (www.zhanfangdesign.com)
Creative director: Li Baolong
Chief designer: Nan Hongtian
Design team: Qiu Wendi, Liao Wenjie, Zhang Jing, Zhao Yichuan
Lighting design: Nan Hongtian
Project location: CapitaMall Hongkou, No. 388 West Jiangwan Road, Shanghai, China
Project area: 90 m2
Completion time: August 2019

