这是由Azovskiy Pahomova设计的一座公寓,位于乌克兰第聂伯市,室内面积为93.5平米,屋主是一对年轻的夫妇与一个年幼的孩子,他们热爱生活,富有创造力,家对他们来说是极为重要的聚集地,从繁忙的工作中逃脱后回到家里,便是享受家庭的时刻。
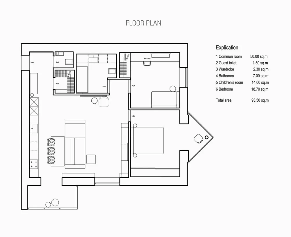
▲室内面积为93.5平米,且户型方正,设计师根据屋主的需求将空间划分为两间卧室,而开放式的公共区域则通过双面沙发起到了连接的作用。
 
 
 
 
 
 
▲大门与公共区域相连,所以设计师并未划定独立的入口区,而是利用黑色的金属长凳作为屋主进出门的换鞋凳,而一旁定制的黑色柜体则用于收纳衣物。
 
 
▲入口与公共区域相连,开放式的布局保证了光线的穿梭。
 
 
▲父母与孩子的空间十分在意家庭的聚集感,所以设计师特意选用了低矮的家具摆放其中,让孩子始终可以在父母的视线之内。
 
 
 
 
▲电视机柜采用了镜面材质,白净的基底下,镜面反射增添了室内的视觉效果。墙面上定制了简洁的置物架,将书籍摆放于此,不仅便于拿取也彰显着屋主的品位。
 
 
 
 
▲室内以白色调为基底,搭配大量的木质元素,营造出清爽舒缓的空间氛围,一些旅途中带来的艺术品或是配套的器皿,都可以成为十分适宜的点缀。
 
 
 
 
 
 
▲在这个开放式的布局内,设计师选用了双面的模块沙发,不仅增加了家具的利用率也巧妙将两侧功能区相连,地面也由木质地板自然过渡为深色砖块。
 
 
 
 
▲没有隔墙的阻挡,在餐厅也可以观赏到客厅的电视。
 
 
▲公共洗手间面积并不宽敞,设计师以优雅质感的蓝色瓷砖营造亮点,并舍弃了洗手池下方的柜体,并选择壁挂式的水箱扩大室内的视觉感受。
 
 
 
 
 
 
▲在光与影的作用下,简单的装饰品也可以拥有艺术的魅力。
 
 
 
 
▲为了增添素雅空间的精致度,设计师贴着墙面摆放了一幅巨型装饰画,极具艺术感的单人椅与咖啡桌,都成为视觉上的亮点。
 
 
 
 
▲主卧同样采用了纯白的墙面,木质地板延伸至室内,营造出清爽静谧的睡眠气息,一侧的衣柜采用无边框的设计,营造出视觉上的“隐藏”感。
 
 
▲主卧拥有一块三角区的阳台,设计师将它定义为阅读角,白色的纱帘、毛绒的蓝色椅,都在极力营造出惬意与宁静。
 
 
 
 
▲为了缓解孩子对洗浴的抗拒,设计师在浴缸外侧定制了展示柜,将孩子喜爱的玩偶摆放在此,吸引孩子的关注。
 
 
 
 
 
 
▲儿童房也将孩子喜爱的动物元素继续发挥,从玩偶到贴纸,无处不体现着设计师的细致。
/Azovskiy Pahomova


