附和自然法则,又饱含生命力
“朝阳从房间的一角投射进来,随着阳光的慢慢移动,最后夕阳慢慢消失,一切又重归原来”,这是知名建筑师勒柯布西耶笔下描述的设计形式,附和自然法则,又饱含生命力。
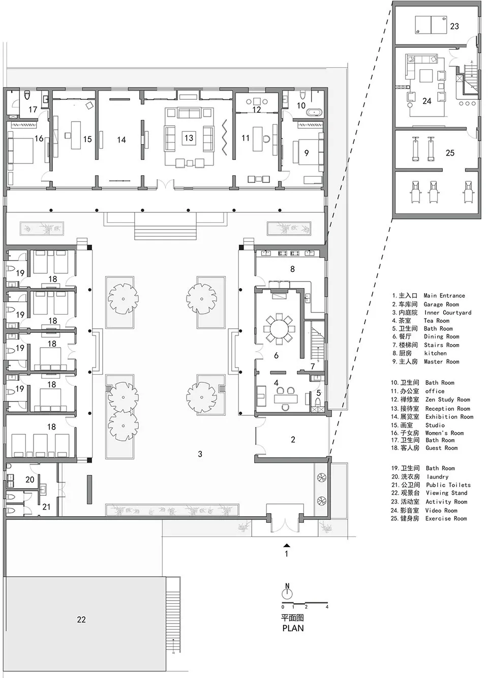
京隐园会所所位于北京的长城脚下,四面环山,风景优美,室内共有7个房间和茶室,接待室,办公室,画廊,书房,餐厅,影音室等,业主主要用来接待朋友及家人的一个度假休闲场所。空间和软装设计均有九点九空间设计操刀完成,通过简单朴素的装饰物件来拉近室内外的距离,模糊室内外关系间的界限,人,空间,院,自然之间形成一种正负,形成看与被看的关系。
部分空间做成开放式,通过没有门去表达一种减除繁复之后的纯粹极简状态,整体空间着墨不多,简而不减,通过物形,显示其隐而不见的气韵和原力,引入光、声、风,影等。
营造质朴悠然而予人安逸舒适空间,利用简素的物体和天然材料来模糊室内界之间的关系,所有的陈设,都是为了增添与主题应和的美感,没有做多余的摆设,刻意留下一些未竟之处保留“空与简”这个概念,交由想象力来加以补足而言。多一分留白,多一分想象,留白不空,留白不白,以无胜有,以少胜多,所谓“无画处皆成妙境,行得之于外形”。
项目名称:京隐园会所
项目地址:北京八达岭
主创建筑师师: 付强
设计单位:九点九空间设计
建筑面积:1200㎡
完成时间:2019.5
项目拍摄:钟永刚 纪泓宇


不错,好好看