直到20世纪中叶在西班牙建造的建筑物,仍然在一些良好的地区合并了公寓的看门人。由于顶层公寓被认为是建筑中最糟糕和最小的地方,这是一个容纳门卫和清洁工的地方。
如今,这些空间归社区所有,重新被人们发现,他们获得了在拥挤的城市环境中享受开放空间的机会。
这栋楼的门卫在退休前一直住在这套公寓里。这个狭小、阴暗、孤立的空间被楼下的邻居获得,作为一个扩展他们室外家庭空间的机会。这个家庭想要一个额外的空间,独立于他们的房子,在那里庆祝,学习,阅读,或者只是加入自然光线。
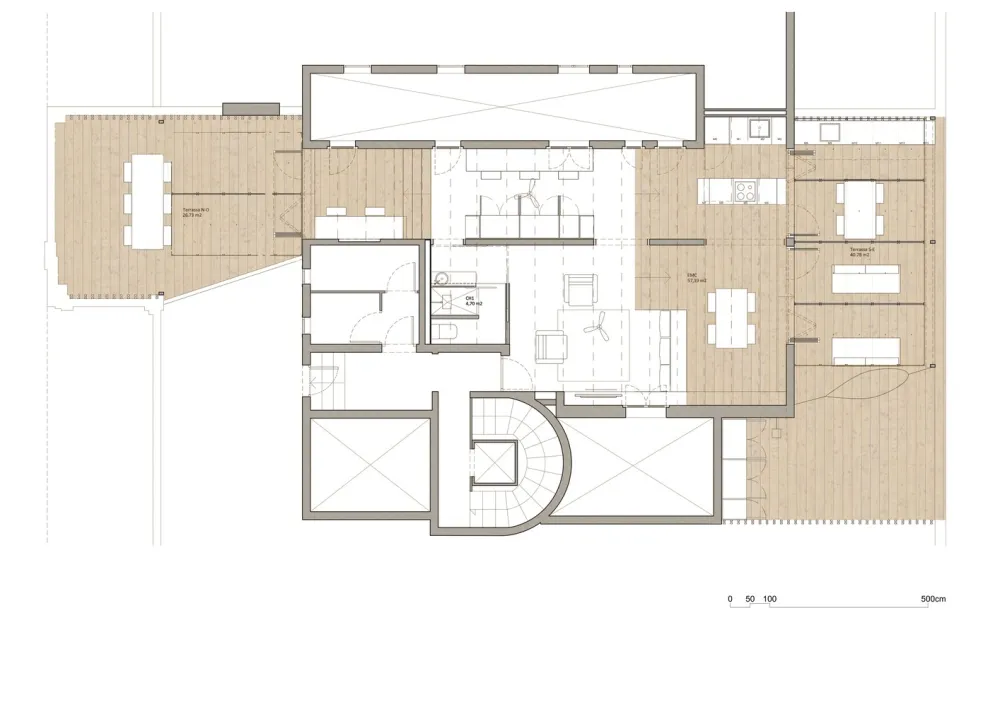
挑战是将公寓向露台开放,并连接空间,使过渡尽可能容易。两个立面都打开了窗户,将室内与南北露台连接起来。在公寓的两个极端,地板被提升到与外部相同的高度,模糊了室内外的界限。同样地,为了加强连接,内外的人行道是相同的,木匠可以折叠,以最大限度地开放。
不超过60平方米的公寓连接了建筑的南北立面,没有任何垂直的划分,在La Musara的山景和舒适的庭院之间提供了一种奇妙的感觉和过滤。露台的尺寸与室内空间的轮廓相似,以适应不同的朝向和用途,同时容纳夏季晚餐和聚会,欢迎和收集长时间的阅读和午睡。
里面把自然光,创造的气氛密切相关外,原始开口是在天井上的分隔墙同时开口扩大连接到露台和一个天窗打开入口和厕所的顶部,使业主的梦想可能采取淋浴看天空。
空间的组织与建筑的原始结构和材料联系在一起,以培养使用者的舒适性。木材和石膏是配置房间的主要元素,而偷来的作品,瓷砖的贡献,和织物提供了小的变化,在一般的气氛。










位置:西班牙 年份:2018 摄影师:Pol Viladoms
版权声明:本文内容由用户自行发布上传或投稿由设计芝士代为发布,版权归原作者所有,设计芝士不拥有其著作权,亦不承担相应法律责任。如果您发现本站中有涉嫌抄袭或侵权的内容,请点此提交工单进行举报,一经查实,本站将立刻删除涉嫌侵权内容。

