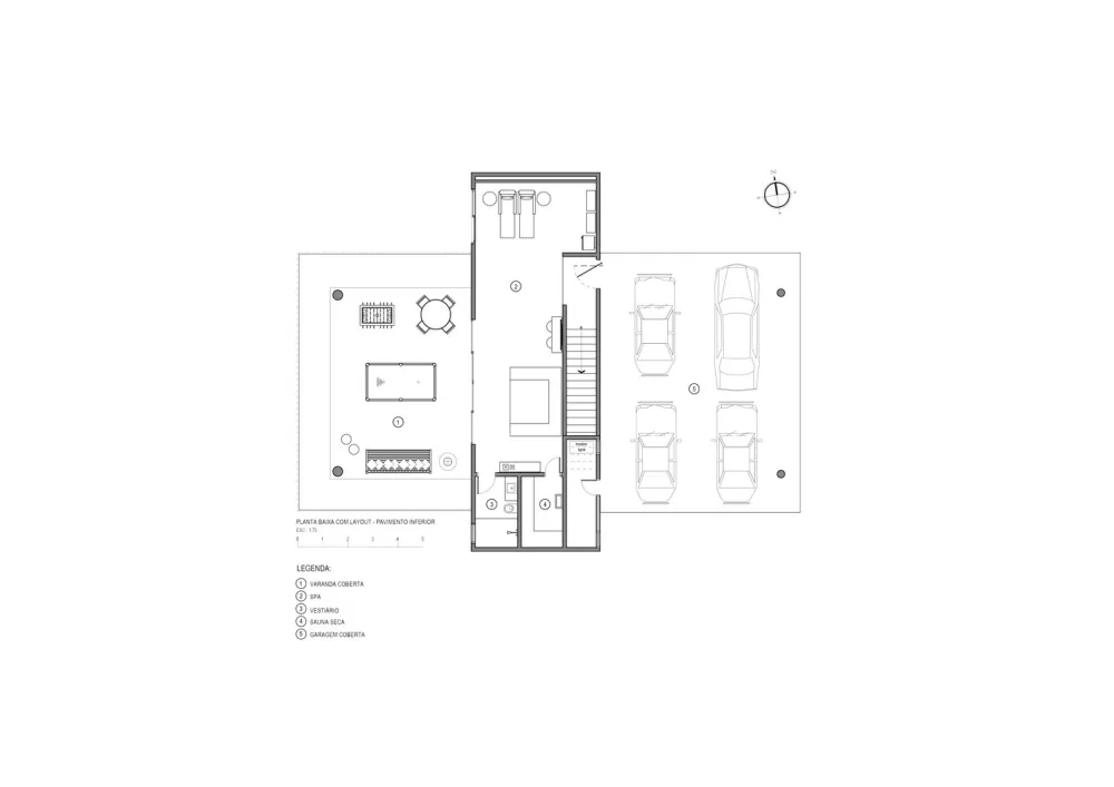
Quinta da Baroneza House的出发点是利用景观的最佳视觉效果,尽可能减少对自然地形的影响。前面的土地非常广阔,80米长,有一个轻微的斜坡伴随街道。建筑的解决方案是创造一个落在地面上的整体体量,利用斜坡创造车库跨度和下层甲板的体量,包括桑拿和水疗。
该项目采用现代风格设计,结合环境、直线、体量和所选材料的纯度进行组织。

通往住宅的路径是一条铺着鹅卵石和草坪的小路,这条小路穿过社交入口,一直延伸到低层的车库。客人已经可以通过freijo木材制成的正门进入客厅,正门由金属结构和木质衬里的藤架保护。当当地人周末抵达时,他们可以把车停在车棚里,进入内部楼梯,直接进入私密的走廊。

生活阳台与美食阳台是完全融合的,通过大型的玻璃窗框,可以将建筑的墙体全部托住。这个想法是提供生活,阳台和游泳池,在同一层,完全连接,增加家庭和客人的欢乐。
私密区域分布在整个玻璃走廊上,由铝板边缘保护。这里有四间一模一样的套房,都面对着游泳池的景色,还有主卧套房,主卧套房有自己的专属阳台,面向该地区美丽的天际线。在私密区,还有一个家庭影院和一个私密客厅。
厨房在客厅旁边,但关闭了,因为住户接待了很多客人,需要一个大厨房让员工工作。但是,尽管与客厅分开,它有一个大的玻璃开口,通向一个封闭的花园,允许一个愉快的采光和通风的入口,以及一个小的,舒适的花园。


应用材料的设计突出了建筑体量,同时提供了与自然的融合。较低楼层的体量是一块木石,使上部体量的基础更加明亮,在白色的纹理、玻璃、板条混凝土和彩色corten铝百叶窗上占主导地位。















位置:巴西 年份:2016 摄影师:Mariana Orsi
版权声明:本文内容由用户自行发布上传或投稿由设计芝士代为发布,版权归原作者所有,设计芝士不拥有其著作权,亦不承担相应法律责任。如果您发现本站中有涉嫌抄袭或侵权的内容,请点此提交工单进行举报,一经查实,本站将立刻删除涉嫌侵权内容。

