位于意大利曼图亚的这个小公寓
Archiplanstudio
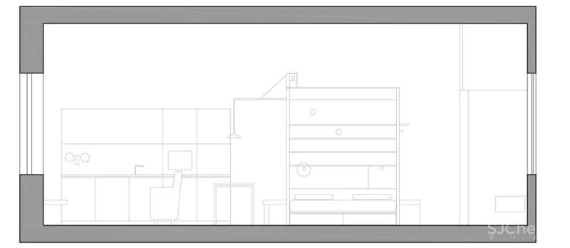
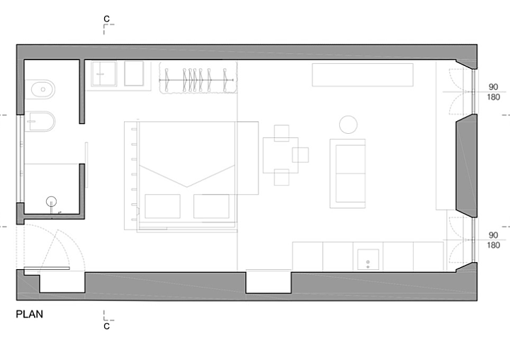
的面积均衡划分为卧室区和起居空间
半开放隔断墙留有不同大小的玻璃窗开口
保证良好通风及与通透视野
玄关处设开放式置物板与挂衣构件
方便主人出入时取放衣物
起居室内整体显温暖色调
斑驳的旧时墙面与崭新家具间
形成不同时代的视觉碰撞
天花顶安装两列圆筒状射灯保证室内光线
窗台下设有一排木质长板凳
上面摆放书籍、相框及一些日常用品
与背景墙上的图案和凿痕呼应
一座惹眼的蓝色绒面沙发
与旁边充满历史感的斑驳墙面形成材质对比
墙脚处安放一把藤编的木矮凳
平时住户可在此阅读与小憩
白色壁橱与带烤箱的白色收纳柜
下方拼接黄铜色金属柜面
整体搭配简洁、时尚且充满质感
沙发背后的木料方型小餐桌
台面摆放蓝色棉桌布,与沙发相呼应
仍保留往日斑驳纹理,质感满满
隔断墙上的小圆窗开口确保视线的通透
走廊两端分别设置储物壁龛
柜门表面均使用磨砂玻璃
半开放的卧室设计维持良好的空气流通
隔断墙面数个圆形和矩形采光窗口
保证与外界通透的视觉联系
白色围合墙下方拼接木面板
床尾对面设置简约型通顶衣橱
内部包含晾衣空间、承物搁板及收纳抽屉柜
天花顶安装射灯提供集中光源
并借用一盏吊灯点亮洗漱区域
淋浴间选用干净耐看的浅色贴面砖
一侧保留的未贴砖旧墙面
安设防溅磨砂玻璃进行保护
凸出的墙面上可摆放各类沐浴用品
与淋浴间相对的马桶区域
洁白光滑的背景墙与粗糙的斑驳墙面
形成一新一旧的明显对照
Archiplanstudio
Giuseppe Gradella, Constanza Zukierman

