MC2住宅位于科尔多瓦市南部,靠近马场的一个居民区。它的历史与马术活动有关,至今仍是该地区的特色。
一个面向西向东的地块,加上内部的一棵大角豆树(本地树),是这座房子的出发点,树是从零开始的,这是项目的条件。所有的行动和干预都是基于对其的保护。就角豆树而言,主要的挑战是开发一个广泛而复杂的程序,以免损害其完整性。
一个面向西向东的地块,加上内部的一棵大角豆树(本地树),是这座房子的出发点,树是从零开始的,这是项目的条件。所有的行动和干预都是基于对其的保护。就角豆树而言,主要的挑战是开发一个广泛而复杂的程序,以免损害其完整性。

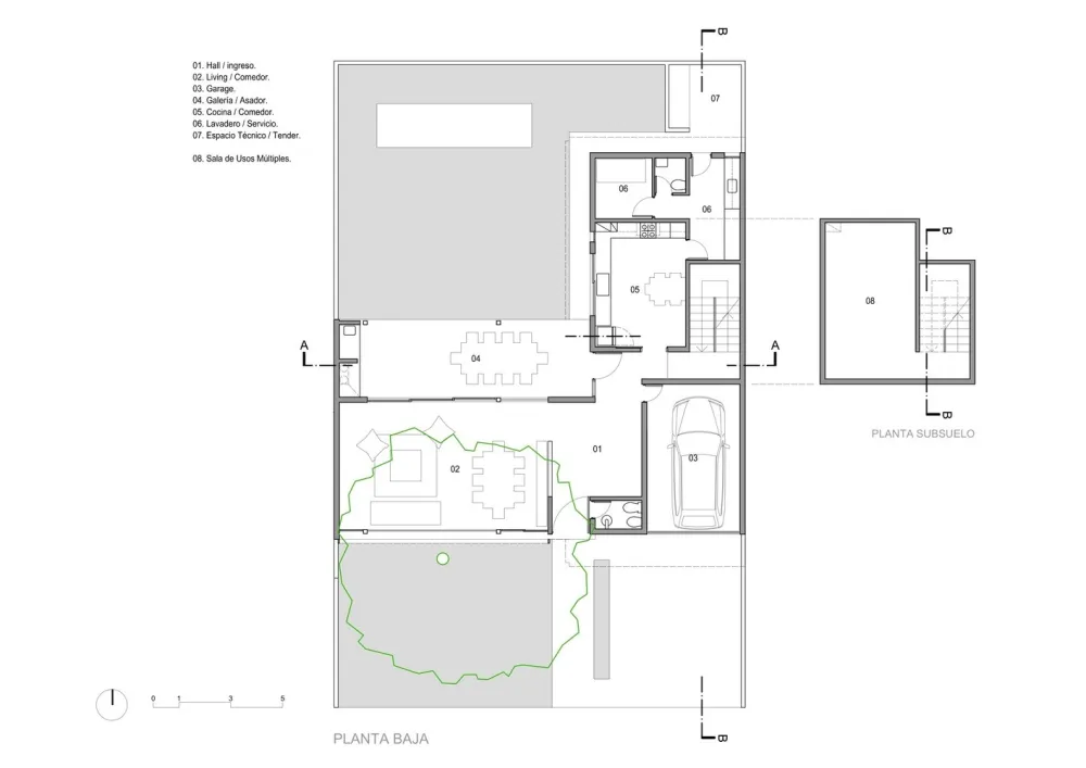
为了实现上面的目标,建筑线被移到了树的后面。房子被分解成两个巨大的叠加体块。一层的第一个体量,包含与街道平行的公共区域,在分隔的右墙上垂直于街道的服务区。
第二个体量,不包括私人区域,位于所有服务的顶层。同样,公共区域的透明度和开放性也得到了有意识的改善,从前面和后面都加强了地形的空间深度。其花园的绿色通过客厅、餐厅和画廊在视觉上连接起来,因此允许角豆树融入这些环境的日常体验中。
总体项目增加了一个专为娱乐活动和葡萄酒储存而设计的空间。它在地下室充分发展,从垂直循环的核心进入。
安全措施是一个关键问题,因为房子位于一个开放的社区。因此,美学和形式的决心是必不可少的。固定和移动的栏杆系统不仅起到了阻吓的作用,也是这栋房子的一个独特的特点。


在施工中,采用了抗震体系与中深井支撑砌体沉降相结合的方法。最后,材料的选择是基于未来尽可能少的维护,以及在施工阶段及时优化完井。






















位置:阿根廷 科尔多瓦 年份:2018 摄影师:Gonzalo Viramonte
版权声明:本文内容由用户自行发布上传或投稿由设计芝士代为发布,版权归原作者所有,设计芝士不拥有其著作权,亦不承担相应法律责任。如果您发现本站中有涉嫌抄袭或侵权的内容,请点此提交工单进行举报,一经查实,本站将立刻删除涉嫌侵权内容。


?