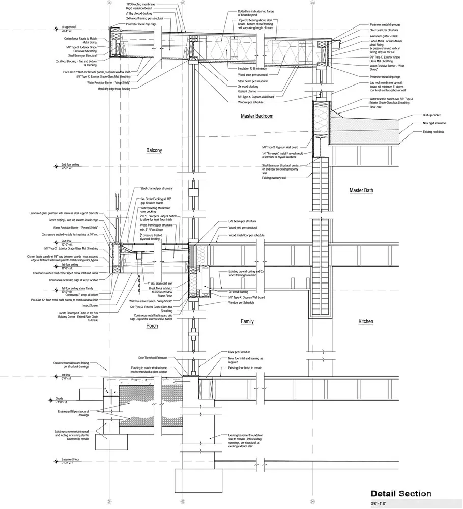
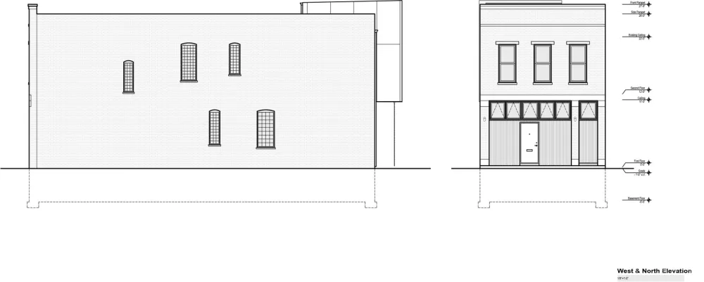
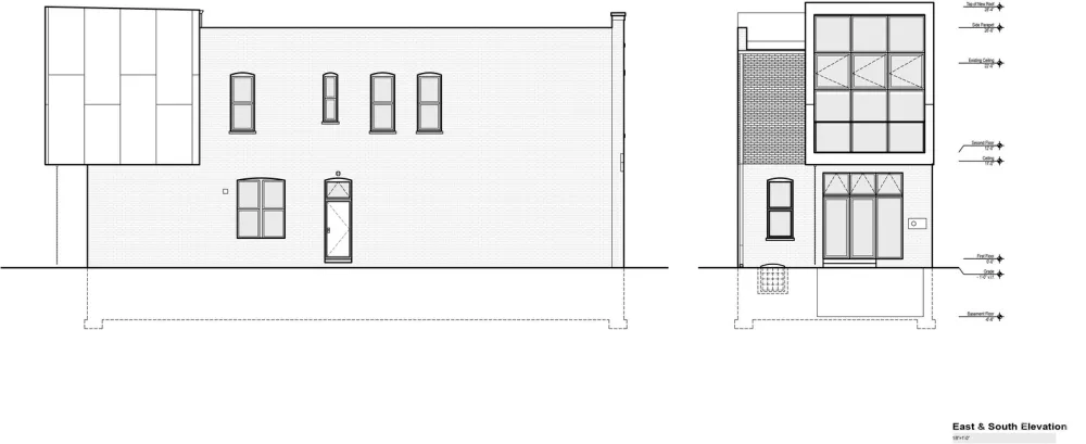
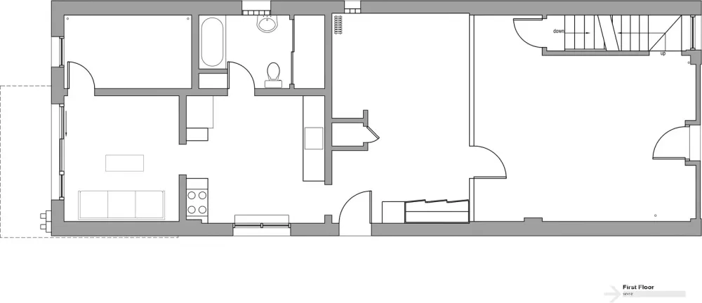
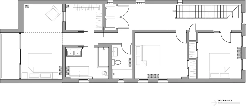
现有的两层砖石建筑是街道上的一个例外,街道上大多是单户和多户建筑。显然,这是一座前店主建筑,一楼有一个零售空间,楼上有一个住宅公寓;这正是我们喜欢与之合作的建筑类型——一座需要二次生命的奇特建筑。在我们的研究中,我们发现一楼很可能是一家肉铺,里面有一个保存完好的布罗曼兄弟冷却器。冷却器是一个自由的元素,作为分隔我们的客户的商店空间,将工作区域与生活空间的其余部分分开。主要项目围绕着在现有平面的二楼增加一个主卧套房,包括两间卧室和一间浴室。解决方案是在建筑后部形成一个悬挑的现代耐候钢(又名耐候钢),带有一个双层高度的卧室、浴室和一个私人甲板。
增加的形式是由基地建筑的朝向所驱动的。原有的后门廊和楼梯被移除,然后我们形成了遮阳窗户和收集雨水的附加部分。我们想在主卧套间外增加一个阳台,因此我们在现代的Corten加法立方体中创建了一个凹槽,在夏季提供遮阳,并允许太阳在冬季被动加热空间。位于建筑北侧的天窗全年提供了均匀的光线。立方体的屋顶向北倾斜,以方便主屋顶上的水收集,在主屋顶上,水被排入一个收集区域,在花园中使用。
作为moss最喜欢的侧壁材料,Corten包覆层被用作雨幕。这意味着水和蒸汽屏障(我们在这个项目中使用VaproShield)直接应用于外墙板。卷边条连接到外表面,这样Corten就可以连接到条上。这个系统允许渗到Corten壁板后的水有一个排水平面从墙后流出,而不是在建筑内部。除了美丽的Corten美学,材料自然形成了一层防锈层,随着时间的推移与建筑其余部分的芝加哥普通砖很好地融合,突出了自然温暖的色调。

街角的商店 在芝加哥和大多数城市,曾经有一段时间,几乎每个角落都能找到像A&P这样的街角杂货店。在过去,该项目的建筑作为社区的一个综合商店和社交聚会场所。据附近的一名目击者称,他们声称经常光顾这家店买肉和其他杂物。古色古香、镜面覆盖的冷却器墙(见下图)仍在建筑的底层。多年来它一直受到保护,直到今天仍以其原始形式存在,并增加了空间的特色。





















地点:美国芝加哥 名称:Cortez Street House 摄影师: Carmen Troesser 年份:2017
版权声明:本文内容由用户自行发布上传或投稿由设计芝士代为发布,版权归原作者所有,设计芝士不拥有其著作权,亦不承担相应法律责任。如果您发现本站中有涉嫌抄袭或侵权的内容,请点此提交工单进行举报,一经查实,本站将立刻删除涉嫌侵权内容。


学习了