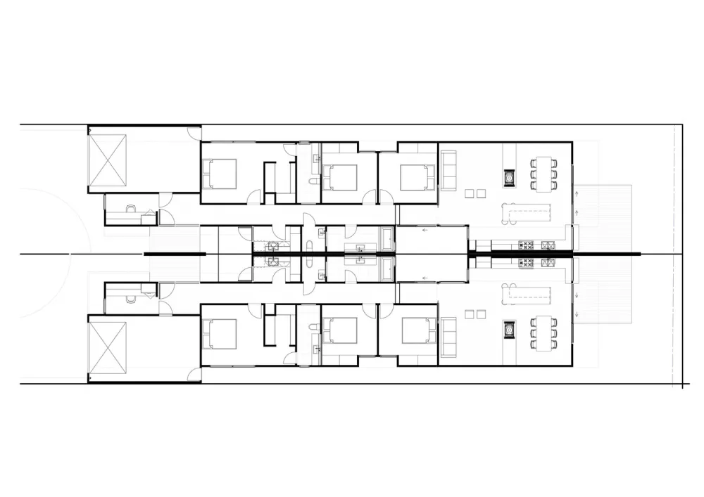
架构师提供的文本描述。大多数双重开发都试图最大限度地提高产量,将场地限制推到极限,并最大限度地限制规划方案。在这种情况下,我们很幸运地尊重了主要的单层街景,创造了充满自然光的亲密空间。方向并不理想。采用细屋顶的形式和玻璃,以使自然光进入。
Text description provided by the architects. Most duplex developments attempt to maximize yield, pushing site constraints to the limits and maximizing the limitations of the planning scheme. In this case we we were lucky enough to respect the pdominantly single story streetscape and create intimate spaces that are filled with natural light. Orientation was not ideal. Used a skillion roof form and glazing to allow natural light in.
© Nikole Ramsay
尼科尔·拉姆齐
与独立的街道正面和每一个分配超过400平方米-这是一个远离幽闭恐惧感的大多数联排住宅开发。
With independent street frontage and each allotment over 400m2 – it’s a far from the claustrophobic sense of most townhouse developments.
© Nikole Ramsay
尼科尔·拉姆齐
© Nikole Ramsay
尼科尔·拉姆齐
我们的客户是摄影师。我们与他们有着悠久的关系,并感到荣幸被要求为建筑摄影师设计-当你知道他们有这么多的选择指尖!我们也非常兴奋,因为我们知道他们天生具有冒险精神,我们可以在风格上反映出这一点。
Our clients are photographers. We have a longstanding relationship with them and felt privileged to be asked to design for an architectural photographer – when you know they have so many options at their fingertips! We were also super excited, knowing that they are adventurous by nature and we could reflect that in the style.
© Nikole Ramsay
尼科尔·拉姆齐

