每个人都有一个田园梦,
回到乡村,造一栋漂亮的房子,
几乎是每一个人的梦想。
本文章整理了5个优秀的乡村私宅设计案例,
新颖的设计,艺术化的表达,
颠覆了常规的乡村建房思路,
为我们提供了全新的、前瞻的设计思维。
01.四合院变型成为“四合宅”/四合宅
02.旧时窗外的稻田远山/龙游后山头28号宅
03.现代语境下的“原汁原味”的住宅/张家庄-树下院
04.稻田中的美宅/面向田野的住宅
05.联排住宅的创意改造/缝中之家
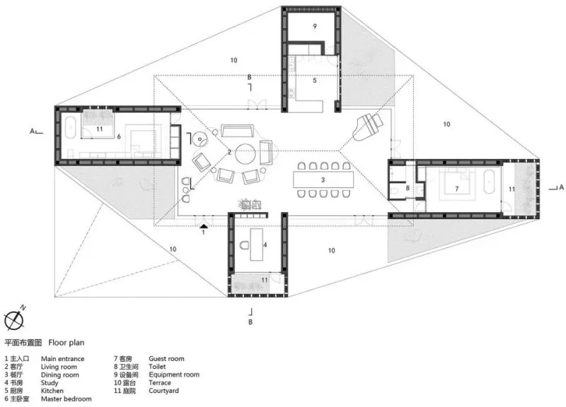
01. 四合宅 设计 | 建筑营设计工作室
该项目设计概念源自传统居住空间原型——四合院。设计师结合特定场地和使用条件,把四合院变型成为“四合宅”。
在保持四向房屋各自独立的条件下,将“院”置换为有顶的厅,将四面围合转变为四面开放,让厅堂与外部优美的风景互通共存,同时保证个体生活的私密性与接待活动的开放性各得其所。
四个房屋对外封闭,对内则包含不同尺度的内院,为室内提供景观和采光。房屋容纳了住宅中私密性功能和服务空间,比如卧房、书房以及厨房、设备间等,它们相互隔离避免干扰。
墙面在庭院部分由实砖渐变为漏砖,让房屋内外保持着光线和空气上的流通。公木与砖材料的结合,共同营造出室内空间朴素、温暖、自然的氛围。
设计 | 中国美术学院风景建筑设计研究总院
龙游是浙江南部的一座小县城,一副熟悉的旧时乡村风景。 建筑占地由一个12*10米的方块组成。室外的风景伴随着连续通透的公共空间,步移景异,随便一喊一家人都能听到,每个窗外都是旧时稻田远山,每步楼梯都有小孩的追逐身影,这些画面是设计的核心理念。
传统木屋架丰富了建筑细节,吸引燕雀归来;外墙掺入稻草的质感涂料以及当地石材的基座依旧与屋前水田亲近;院子里的菜圃就是鲜活的生活。就地取材是成本控制的关键,低廉的造价让生态设计具有普适性意义。
一个三代人大家庭旋转在屋檐下庭院间,燕归,人还,看春来。就是中国乡村自建房的生命力。
▼总平面图 ©中国美术学院风景建筑设计研究总院
▼一层平面图 ©中国美术学院风景建筑设计研究总院
▼二层平面图 ©中国美术学院风景建筑设计研究总院
张家庄-树下院 设计 | 空间进化(北京)建筑设计有限公司 地址 | 北京市密云区 树下院林立于一片白杨树和核桃树之间,东侧毗邻一大片菜地,这种原生态的场地优势是项目的命名渊源,也是设计的核心依托点。设计师创造了一个豁然开朗的院子,把房屋周围的树木、山峦、阳光以及使用者的各种活动都容纳其间。
设计以老房子作为空间的核心,以一种象征性的符号满足来客对“原生态”的向往,部分石墙作为一种文化符号由老房子发散而出,作为院落的装饰性外墙。
材质上,主建筑清水混凝土外墙与石墙一样,以 “粗野”的形态裸露于观者材质 前,形成现代语境下的“原汁原味”。
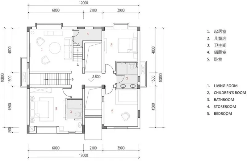
项目位于上海郊区,设计师决定采用低调的姿态积极地融入当地的乡村肌理。自然呈现为一个南北向双坡双层的矩形体量,在保持面积不超出规范的情况下,面宽被拉长,南向景观和采光面相应增加。
项目所在地处于北京平谷,缝中之家被夹在邻居的高层新房之间,设计使建筑主体离开邻居的外墙,错出一道缝隙,由此一个真正的露天庭院产生了。被挤死的“联排住宅”变成四面通风采光的“独立住宅”。
设计在建筑中塑造了特殊的规则。除了睡眠时间,人们因循着看不见的秩序走到一起。而由于结构和构造因素,自然产生的那些大大小小的“缝隙”为这个连贯为一体的场所带来,光与影,自然吹拂的风,以及不收拘束的视线和活动。
▼场地平面图 ©chaoffice
▼首层平面图 ©chaoffice

