说起烧烤店,从前,一个街边的摊子加上随意摆放的桌椅,就是一个酒肉江湖;而现在大多数的烧烤店,昏暗的灯光、或复古或工业风的元素、厚重的实木餐桌椅、烟火气十足的形象。那么未来呢?烧烤店,可以是一个什么样的形象?这是我们接到这个设计项目最初思考的问题。
▼面向商业广场内街的餐厅侧立面
晓春烤吧位于上海市杨浦区绿色米兰广场的商业入口处,通透的落地玻璃窗,以开放的姿态展现着室内洁白而纯净的环境,乍看之下丝毫不觉得这里会跟喝酒撸串有什么关系。
▼明月装饰了你的窗子,你装饰了别人的梦
早在人类刚学会用火的远古时代,烧烤就已经成为了主要的烹调方式,在现代的烧烤店里能同时感受到远古时代和未来的气息吗?我们在空间上,用简明且富有张力的曲线勾勒出远古山洞的形态,将吊顶延伸向地面,模糊了吊顶与墙体的界限。在材质上选用增添未来气息的不锈钢材质、纯白色涂料和返璞归真的水磨石砖,让远古和未来在空间里来了一场相遇。
从顶部延伸到地面的隔断将各个空间分开,再通过隔断上的开口将空间连接起来,从而增加视觉和空间上的层次感。
▼不同的用餐区域透过拱洞建立视觉上的连接
▼利用不同尺度的拱形构建一个层次丰富但又统一主题的空间
等位区设立在入口处,与吧台紧密相连,开放式的吧台为顾客与服务生的交流提供了便捷。背景墙上整齐的“洞穴”代替存放酒水的架子,等位的顾客可以随时点上一杯酒饮,放在座位旁特别定制的小边桌上,慢慢品尝等待,这样的等待似乎也没有那么漫长了。
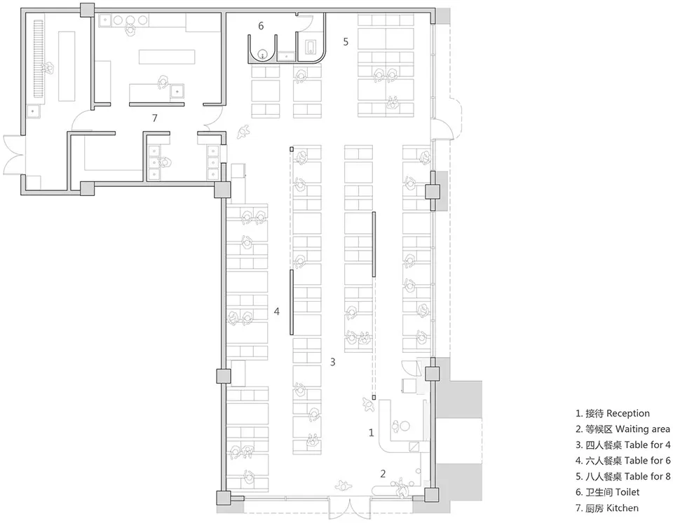
餐厅内分为4个区域,每个区域拥有不同的层高和尺度,提供了多种空间感的用餐体验。中央区域4.42米的挑高空间如同超现实的魔幻山洞,带给人视觉上的冲击;高挑且富有张力的拱形吊顶,又让人仿佛置身于神圣的白色教堂里,给原本随意自在的烧烤就餐增添了一份仪式感。左侧6人桌区域与中央区域一墙相隔,宽度收窄但保留了4.42米的层高,在增加了私密性的同时又提供了舒畅的空间感。靠窗的区域,有意将层高降低,营造一个温馨又私密的用餐环境,而一侧大片的落地玻璃窗扩展了视觉空间感从而消除了压抑感。餐厅的后区用高挑的层高和开阔的空间,将富有层次感且跳跃多变的吊顶造型尽收眼底,是欣赏餐厅全局的绝佳位置。
项目名称:晓春烤吧绿色米兰广场店,上海 设计方:多么工作室 建成时间:2019年10月 主创及设计团队:盛乐、王维、陆志毅 项目地址:上海,中国 建筑面积:250㎡ 摄影版权:林山 照明顾问:VK照明设计工作室 主要使用材料:水磨石瓷砖,不锈钢,乳胶漆
餐饮 现代 金属 简约

