伍尔斯顿社区图书馆位于克莱斯特彻奇和渡轮码头之间一条历史悠久的交通路线上,它坐落在名副其实的渡船路上,取代了建于1871年的伍尔斯顿社区图书馆。这是2010/2011年基督城地震后最后重建的社区设施之一。
伍尔斯顿是一个轻工业和居民区,有很强的工人阶级特征。整个20世纪,这里一直是新西兰橡胶和其他工业的中心,包括一家天然金块工厂和一家明胶和胶水厂。这些企业中有几家今天仍然存在,但伍尔斯顿地区的住宅增长现在已与克莱斯特彻奇市很好地结合在一起。
从一开始,设计团队就确定新的伍尔斯顿社区图书馆将体现伍尔斯顿工业历史的精神,为其人民提供一个欢迎的、可用的空间,无论是现在还是未来。
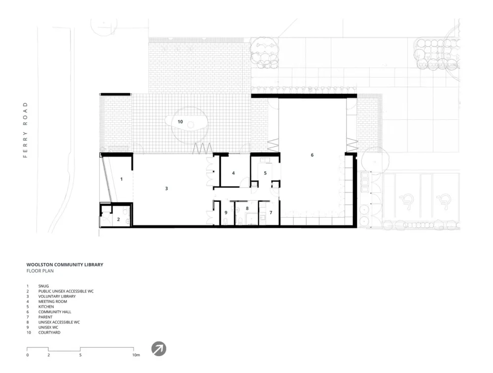
建筑设计包括三个主要区域:室外庭院、图书馆和社区大厅。一条现有的车道贯穿整幢建筑,被改造成一条行人通道,连接渡轮路和升级后的停车场。一个新的步行连接到建筑北部的日托中心,进一步加强了项目与更广泛的城市环境的融合。
红砖立面是新建筑的特色,直接参考了原建筑,是当时砌砖工匠的一个展示品。这种砖的影响通过材料的限制使用——黑钢和木材——和形式的简单性得到了加强,这反映了传统的当地建筑。在现代工艺中,设计的特点是突出的砖块图案和垂直和水平的结合。所有的砖都是由新西兰南岛仅存的砖制造商提供的。
图书馆砖立面的不对称模式与外部庭院上裸露的钢梁的对称形成对比。在结构下,glulam木棚借鉴了附近历史建筑的风格,邀请人们进入庭院。在庭院内,空间的开放性被种植在中心的一棵日本枫树软化,上面悬挂着灯。

所有的内部空间都可以用不同的方式来使用:图书馆和社区大厅的玻璃门和双折门向庭院开放;建筑北面的两扇门将社区大厅与停车场连接起来。这种灵活性意味着建筑可以用于更大的社区活动和市场日。

半透明的聚碳酸酯面板将漫射的自然光引入图书馆内部。同样,使用简单的材料,如木材和混凝土,创造了一个中性的调色板和一个受欢迎的对比,丰富多彩的儿童区。图书馆的简便性通过当地艺术家提供的墙壁艺术得到了加强,参考了伍尔斯顿的工业历史。

社区大厅的结构也很简单,以纹理和钉板内衬细木工为特色。大堂设有弹簧式地板、影音系统及壁式投影仪,可举办社区活动及聚会。充足的存储空间使使用更加灵活,通过社区大厅的服务设施可以进入一个适中、设备齐全的商业厨房。一间小会议室、厕所和家长房完成了所有可用的设施。
在整个项目中,主要原则是确保在不影响建筑可用性和整体设计美学的前提下,达到代表社区所需的成本效益。
景观材料的选择也同样选择了易于本地采购的材料——符合城市环境的成本效益、耐用的表面。使用委员会其他项目中常用调色板指定的材料简化了维护和操作。材料尽可能从当地采购,由当地工匠制作。








地址:新西兰 年份:2018 设计团队:Szymon Gozdzikowski, Stephen Parks, Diana Jung 摄影师:Stephen Goodenough
版权声明:本文内容由用户自行发布上传或投稿由设计芝士代为发布,版权归原作者所有,设计芝士不拥有其著作权,亦不承担相应法律责任。如果您发现本站中有涉嫌抄袭或侵权的内容,请点此提交工单进行举报,一经查实,本站将立刻删除涉嫌侵权内容。

