塑造开扬的视觉将户外的自然景致与室内融合,简单的色调配合使视觉更焕然,丰富的自然光线任意于室内穿梭,并引导至地下层,令小孩可充分地发挥可能。
开放的空间以透视的方式层层推进,连贯地将不同区域连接配合各种几何与曲线的组合与整体建筑结构呼应。
窗户亦精心布置以完美契合了小孩的高度,能望向户外花园满足他们的好奇心。
此外,玩乐设备及座椅也朝向不同窗户以捕捉最大光线。
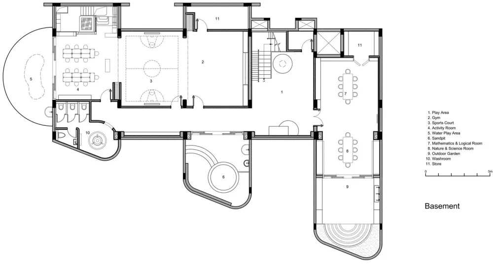
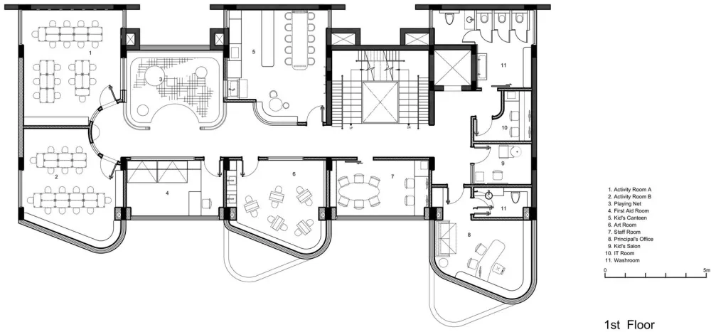
小孩身心发展是设计的基础,增添小孩的互动及促进运动,设置大量的综合区域,从咖啡厅、图书馆、数理教室、艺术室至运动场,教育不再局限于教室,无论教师或小孩都能从中找到惊喜与乐趣。
摒除不必要的装饰设计采用简单纯粹的设计,渗透柔和的灯光与自然舒心的色调,为室内空间与户外世界之间建立横向关系和自然过渡,同时保持它们之间的模糊性。
从沙坑、户外水上游戏到阅读区域,为小孩创造一个平静而无限制的学习环境。




















室内设计 PAL Design 地址 新德里, 印度 设计师 何宗宪 设计团队 David Chan, Joslyn Lam 建筑面积 809.0 平方米 项目年份 2017 摄影师 Suryan Dang
版权声明:本文内容由用户自行发布上传或投稿由设计芝士代为发布,版权归原作者所有,设计芝士不拥有其著作权,亦不承担相应法律责任。如果您发现本站中有涉嫌抄袭或侵权的内容,请点此提交工单进行举报,一经查实,本站将立刻删除涉嫌侵权内容。

