合院别墅是一种现代院式住宅,
常见的合院别墅是多以四联、六联、或者多联的别墅形式为一体排布,形成围合或者半围的公共交流空间的院落,相比早年的四合院别墅,时下的合院别墅在有自己独户的空间,又更侧重邻里共享空间。
由于房地产市场快速发展,别墅用地审批受管控,而高端居住改善需求有增无减,在独栋别墅用地报批禁止的情况下,开发商多从双拼、叠拼、联排别墅寻找平衡,创新型组合方式的别墅不断涌现,当下的合院产品便诞生了~
合院产品为何如此受青睐
高容积率 独栋别墅报批已被禁止,市场上已经很难出现容积率在1.0以下的地块。同面积段下,院墅化合院产品能实现更高容积率;
私密性强 院墅化产品可以实现较强私密性;增加私家庭院面积,产品业态升级;
空间舒朗 可利用立体化等设计增大空间感;露台退落等设计,使外观独立,形成了别墅的性质。合院产品开间大,进深小,采光面充足;
文化属性清晰 中国本土式的院落梦想生活,新型合院较符合国人的居住习惯,院落生活方式可打动客户;
还是一种由来已久的情结
就算在高楼大厦林立的今天
人们依然对院落式生活怀着深深的眷念
本文精选了9个优秀中式合院设计案例
从建筑、景观、室内等方面
本案位于绍兴市,花语堂白墙黛瓦的建筑风格,重现了烙印在每一个绍兴人记忆深处的家宅模样。
花语堂的屋顶,是歇山顶 悬山顶 硬山顶制式,在古时,这是仅次于庑殿顶的规格。每个飞檐戗角,技法都苛求至极,讲究“不可增一分,不可短一毫”。
从一片细薄苏州小青瓦,到一枚不起眼的悬鱼,建筑全依古法,还原每个繁复构件,保留了中式建筑的入骨之美。
次里弄空间(上)流线分析(下)
花语堂的中式之美,不止印刻在建筑上,更流淌在园林里。一走进花语堂的园林——越园,就像瞬间穿越回苏州名园——艺圃,廊桥竹坞,山池锦鲤,泉林深壑,亭榭虚凌。
踏入室内,映入眼帘的花园,不经意间将生活、诗、远方连成一体,用它鲜活的绽放,召唤着每一位归家的人。
客餐厅是最能表达整体设计风格调性的,水墨版的黑白灰与暖木质感的交织,黑色木质与水墨大理石台面的碰撞,在光影恍惚中,仿佛置身中古的水墨画里。
家庭厅在跃层空间中运用简化了繁复线条的中式家具兼具品质与格调,有温度的原木材质是空间呈现复古宁静的感受。
卧室酝酿在东方韵律里,感受着最好的时光。木色的温馨镶以深色线条的结合,让人从匆忙的生活节奏中慢下来。
项目名称|绍兴中铁建花语堂合院
建筑设计|浙江东南建筑设计院
景观设计|苏州园林设计院
本案位于成都青羊区金沙板块,合院以苏派建筑风格为基础,融合了玻璃元素,采光、照明合理分布,形成开敞通透、轻巧自如的居住环境。
有屋、有院、有天、有地,项目不仅满足了当代国人对家不变的畅想,更在延续传统东方意境下注入创新的理想。
室内延续并发扬建筑新中式的风格,以沉稳、内敛的传统文化为基点,为增强叠墅大气的空间感,统一采取深色木饰面,沉着内敛的大地色铺陈地面,在高贵与亲和间自然过渡,这也呼应著成都山林江川的自然地理风貌,让日常生活成为最贴心的风景。
设计在材质与形制上修旧如旧,沿袭了川蜀传统建筑的清雅古韵,与当地民居相融贯,素璞自然。
项目名称 | 绿城·金沙凤起朝鸣
业主单位 | 成都绿城都会房地产开发
硬装设计 | 矩阵纵横
软装设计 | 矩阵鸣翠
产品设计 | 矩阵寐卡
建筑设计 | GAD浙江绿城建筑设计
景观设计 | 苏州园林设计院有限公司
摄影公司 | 释象万合
项目面积 | 461㎡
一方围合下,藏着天地景色。极简,留白,雨晴雪霁,四般风雅,皆可见于湖风雅园的庭院之中。
每一所庭院都像一座微型园林,无论是夜半时分的安心休憩,还是风和日丽中的游园觅趣,都能让你找到最舒服的状态。诸般生气流动,静坐伴一池清水,亦能自得其乐。
湖风雅园·和院/酒店/高层平面图
在和风细语的江南为疲累的灵魂寻得一处依附。诗语翛然,在空间中描画山湖云影,清雅而恬静。以雅而论,东方艺术中以简代繁、以少胜多的道理,在湖风雅园·和院中得到了充分的发挥。
六扇倾斜而置的艺术玻璃屏风为客厅与餐厅做了隔断,其上绵延的群山间,浓淡层叠,云雾缥缈,一叶扁舟,意境悠远,仿佛一首不能自吟的无声古诗,为空间注入灵魂之笔。
家庭活动空间为亲友聚会和宾朋共欢提供了理想空间,可谓“偶然相聚,最是人间堪乐处。”
家庭活动空间上方是一片半开放区域,业主可以在此安然自处。
景观设计| 浙江绿城环境咨询管理有限公司
建筑设计| 浙江绿城建筑设计有限公司
花博会·桃李春风项目位于武汉市蔡甸区,以山水为媒、以文化为髓,融合苏派园林,以中式合院展现一方如诗如画的江南盛景,还原中国人“骨子里”的理想生活形制。
设计者将古典诗情画意与现代生活气息糅为一体,创造出独具东方气韵的园林空间,高墙深院,白墙黛瓦,砖雕石刻,飞檐翘角,满庭芳华……
客厅空间整体简洁明净,顶面古梁现代设计手法的处理手法,将东方哲学与当代人的审美情趣完美融合,并营造出东方的气质美学,使空间在不露声色中流淌出涓涓禅意。
空间里的复古元素散发着老式家具所特有的风雅,于空间之中,凝练出浓厚的东方气韵和田园雅趣。
项目名称:蓝城 · 武汉花博汇桃李春风
开发商:蓝城集团&武汉花博汇置业有限公司
室内设计:BEYOUND必扬设计
软装陈设:BEYOUND必扬设计
项目摄影:瀚默视觉-叶松
明玥江山中式合院拾趣院A户型
合院整体围绕花园打造,围合出一片有天有地,有院有景的私人天地,既私密独立,又不孤独,保持恰到好处的邻里往来。
室内设计从返璞归真的东方哲学出发,将中国文化传统中的木、水、月等自然元素融入空间,寻求人与自然融合的诗意状态。
推门而入,黑与白作为空间的主色调,纯净中潜藏无限生机,正是东方美学强调的平衡意境。
一枝一叶,高低错落,外景透过窗,打破空间与自然的界限,室内柔和的材质,尺与度之间,赋予丰富的感官体验。
材质的运用极其考究,贯穿连续的本土特性,加之统一的“弱对比”色调,将亲近自然的精神融于雅致和谐的整体氛围,赋予归家从容安定的感受。
光影作为媒介,模糊空间中的柔性边界;枯枝、花簇、果实与树影交叠,动静相宜,节奏有度。
项目名称 | 明玥江山中式合院
项目业主 | 奥园地产
项目地点 | 中国·广东·韶关
室内设计 | 观致设计 OPS DESIGN
软装设计 | 观致设计 OPS DESIGN
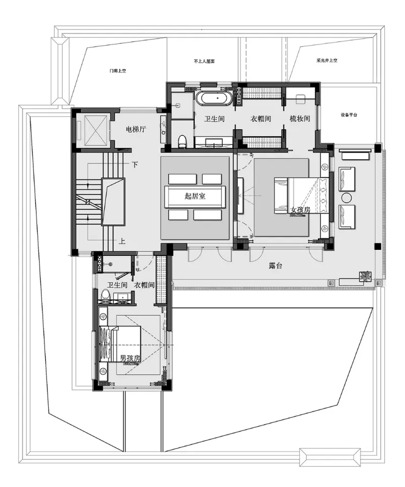
设计团队遵循生态山居栖息地的整体环境风貌,并挖掘建筑内在之美,以体块穿插的设计手法,纯粹的材质细节和虚实错落的表现形式,勾勒一步一景的体验感受,打造山居度假般的闲适生活,让诗和远方近在咫尺。
踏入一层即可见阔绰的布局,6.2米的挑高设置,搭配大面落地景观窗,尊贵尺度以及舒适格调不彰自显。延伸感、灯光、材质、形态过渡层面都经过精心拿捏,增添其细节之处的魅力。
挑高的一侧立面如同阶梯状渐次内退,餐厅因势而生,这是尺度上的自然而然,也是对块面关系的灵活统筹。
在半包裹的围合中,借由夹丝玻璃让餐厅和厨房和谐衔接。极富韵律的木格栅与灯带,恰似山林间闪烁的点滴星光,承载着用餐的愉悦与浪漫。
地下层同样采取了半挑空设计,温润的基调、肌理表现都得以沿用。采光井将光线引入,开放式布局确保了使用的包容性与灵活度。
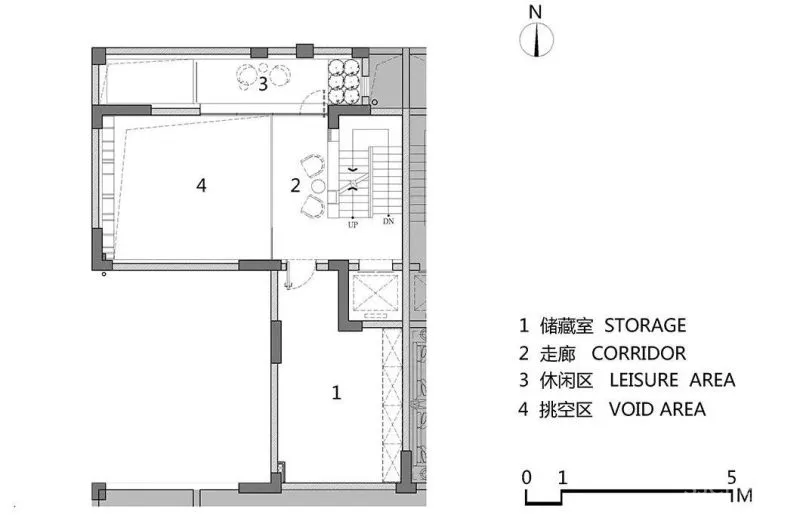
项目名称 | 郑州「永威·山悦」合院样板间
项目面积 | 合院333m²
室内硬装 | ONE HOUSE DESIGN 壹舍设计
项目摄影 | 三像摄 陆彬
义乌桃花源南区中式合院样板房
本项目是位于浙江义乌,粉墙黛瓦,一梁一柱 ,处处散发出东方雅致清韵。建筑风格上,以苏式建筑为体,义乌当地风格为用。立面层次大体采用古典三段式结构,整体色彩上以粉墙为基调,采用黑灰的瓦顶砖、灰色砖细石材、黑色或栗色木作加以点缀。
街巷内部采用形式多样的洞门,分隔隐隐绰绰的疏花扶木,采用 “抑景”的手法,增强行进路线的体验感。
中式合院示范区总平面图
室内设计以一种极其干净的手法,搭配灵动的艺术品,让东方美悄然注入,更让当代质感跃然与眼前…..
留白墙身很好的烘托了艺术品雕塑的画面,圆形吊灯用铜的材质和艺术品雕塑有了美的关联,更实现了古与今的对话。
项目名称:义乌桃花源南区中式合院样板房
建筑设计:9M Design 九米设计
室内设计:郑树芬室内设计(深圳)有限公司
完成时间:2019年11月
祥生 · 浙江诸暨南山郡213户型
本项目位于浙江省绍兴江南地区,故而设计以吴冠中的画作为灵感,意求将其画中描述的水墨江南神韵融入室内设计之中,并以现代手法传达中式意境。
室内空间使用大面积的木饰面,木地板,再以鲜红色作为点缀之笔,甩掉空间的压迫感与单调感,旨在遵循传统中式室内空间做法,将自然元素融入空间之中,同时去繁就简,增加空间的使用率。
项目位置:绍兴诸暨市市南路
业主单位:诸暨祥生景辉置业有限公司
设计面积:213户型250㎡
绿城桃源小镇 · 隐庐
从极具仪式感的中式门庭入户,世家大族的三进礼制循步展开,庭-园-庭-居的景观脉络,实现了宅园合一、天人合一的东方大美。
当一座三层型制的合院映入眼帘,在外形设计上,保留了白墙黛瓦的中国人居底色,每户至多4-5个露台、客厅大面积玻璃窗、更大的窗墙比、挑高地下室等创新设计。
项目名称:绿城桃源小镇 · 隐庐

