Navakitel设计酒店位于泰国南部最古老的城市之一那空是贪玛叻(Nakhon Si Thamm
arat)的核心位置,被商店和住宅所包围。
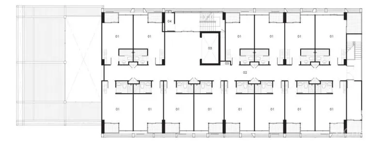
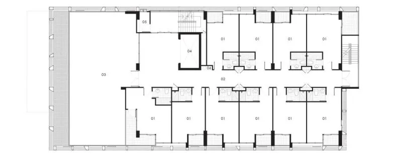
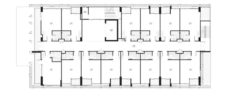
这家酒店包括68个住宿单元,位于一楼的大堂和位于三楼、用于组织酒店活动的开放式露台。
Navakitel设计酒店充分利用了当地的工艺,包括铁匠、木匠与泥瓦匠的技艺,将其应用在建筑与室内设计之中,通过酒店设计展现了那空是贪玛叻的本土
项目最初的目的是设计一座钢筋混凝土结构的公寓。为了将项目的功能从公寓转换为酒店,建筑师决定保留已有的建筑平面图,此时建筑已经建造到了第二层。从结构图上看,房间的类型是按照房间大小来归类的,每个楼层具有相似的房间类型。
建筑师为这栋7层高的混凝土建筑选择了薄而锋利的钢板,以此来来减少建筑的厚度。项目通过使用结实的钢板和可延展的金属来创造体量,同时模糊建筑物的坚固性。这种方法还可以使自然光穿透建筑物。
在该项目中,建筑师还精心地设计了通常被忽略的建筑系统。在咨询了电气工程师后,建筑师将建筑系统与照明装饰以及室内空间中的其他设备,包括客房,大堂和走廊,全部集合在一起考虑。建筑系统不再被石膏天花板隐藏起来,而是部分被暴露了出来,建筑师和工程师的合作成果反而再后来成为了该项目建筑美学的一部分。
空间名称:Navakitel工业风设计酒店
空间类型:酒店民宿、工业风酒店、主题酒店、
空间地址:泰国 那空是贪玛叻(Nakhon Si Thammarat)
设计公司:Junsekino Architect and Design
空间面积:3900平方米
空间主材:工字钢、冲孔钢板、锈蚀钢板、实木、混凝土、木地板、麻绳
空间摄影:Spaceshift Studio

