太阳每天从这座米色公寓的全景玻璃幕墙后升起,光线照射着整个公寓,每一件家具都被包裹着温暖。空间整体色调温暖雅致,独特的地板是由大型大理石,花岗岩和石灰华块,结合白色混凝土粘合剂设计施工而成。
天然石材富有不同的形状、颜色和边缘,每一种石材都有它自己精确的位置,每一块的形状都千变万化,地板也成为整个空间设计中最有特色的元素。
粗糙纹理的墙面在阳光的映衬下形成各种阴影,暖黄色的窗帘遮挡着房间的落地玻璃,缓和了阳光的直射。木质墙板用来分隔不同区域,给一楼的生活区带来实用与美观的结合。天然的混凝土楼梯将空间引向不同的生活体验。这是一个相对私密的空间,以放松和运动为主。
二楼卧室能看到城市的壮丽景色,天窗的光线使得二楼更加明亮。阳光从天然木墙板反射,温暖了水磨石、大理石、混凝土、玻璃和不锈钢的冷表面,使房间的亲密氛围更加舒适。
卫生间延续了水磨石和木板的运用,干净利落的划分了使用区间,将整体的极简风格充分发挥。










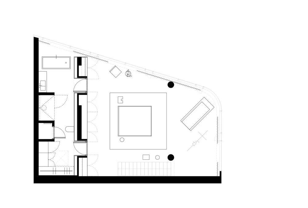
一层平面图
二层平面图
一层材质图
二层材质图
设计公司:DO Architects 项目位置:立陶宛 主创设计:Andrė Baldišiūtė, Marija Steponavičiūtė, Dovilė Skrupskelienė 设计时间:2018 摄影师: Norbert Tukaj 制作商:Agape, BANG & OLUFSEN, Gaggenau, Mapei, Minotti, Floss, Douglas and Bec
版权声明:本文内容由用户自行发布上传或投稿由设计芝士代为发布,版权归原作者所有,设计芝士不拥有其著作权,亦不承担相应法律责任。如果您发现本站中有涉嫌抄袭或侵权的内容,请点此提交工单进行举报,一经查实,本站将立刻删除涉嫌侵权内容。

