室内与环境设计:尚壹扬设计
设计师:谢柯 支鸿鑫 许开庆 邓磊 戴维
陈设设计:壹集 | 谭税 韦希思
城市以北,带着期待与好奇参半的心情,我们即将去看看谢柯为棠棠女士一家所设计改造的新宅。说是探访,不如说是欣赏,是阅读,是像聆听音乐般惬意愉快的事。现在你大可以先将那些世间纷扰,暂且一放,为自己找个舒服的休息姿势,假想换上家居服,穿上拖鞋,以准备去放松过日子的心态,出发。
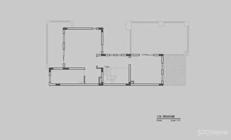
“这栋房子本来打算是要卖掉的,因为原始户型结构复杂,布局凌乱,各个空间相互分离,阻隔不断,人行走在其中总感觉束手束脚的。而且室内采光很差,重庆雨雾多,碰上潮湿闷热天气,家里估计得开很多灯才不至于黑暗,更别说人是多难受了…一想到未来居住的房子有如此多的问题,就觉得沮丧焦虑,心想着还不如换个地方生活。
有缘且幸运,当时找到了谢柯先生及团队帮忙设计改造,后来又在壹集淘到了许多真心喜欢的家具饰品。差点就无法拥有现在这个美好家园,更别说还能认识到一群气味相投的朋友了!”
步入大门,右侧的植物清幽,编织起了一条静谧通道,去向何处?眼睛携着葱郁,进入室内,折转进长厅,见大小玻璃窗框住的院落景色,满树的绿叶红叶才恍然。棠棠移步客厅的水吧台,手冲咖啡的片刻余白,屋外的叶片偶有飘落。无风,心也觉得清凉,柔和。
炉中橙黄的火萤飘着,小沙发上倚着友人,随意团坐,左右两把单椅做伴,木几木墩虚实呼应,立月白色台灯一盏,清供画作三五事,那本显得有些博古的边柜,倒富有了亲近之感。这里是为卧游书房,亦为亲密的待客之地。
“家里现在处处都能让人呆得下来,以前是绝对想象不到这光景的,比如现在这一楼的空间,原本户型特别尴尬,入户长条型的客厅小而狭窄,使人坐立不安。餐厨区又得再下楼梯,空间零零散散,像走在迷宫里。“
回头看,此时长厅被分了区,设了有趣的小场景,将落地窗滑向一边,就能去花园外玩耍。挖半墙,嵌书柜,让餐厨区和起居厅串联,上下的空气也跟着流动起来。平日里若家人朋友在厨房制作料理,大家在这头聊着天,闻到饭菜香,心齐齐开始盼着接下来一起吃饭的温馨时光。
餐区边的飘窗台也很妙,坐在那里当一闲人最好,执书徐徐翻阅,俯看楼下庭院的落花浑不扫,抬眼便是一溪云,听着空间里回弹反射着人们开朗的笑声,嘴角不自觉便跟着微笑起来。
谢柯在负一楼设造天井,将光引入进了室内,牺牲掉小块面积却换来各个空间的透气舒适,就像光之庭院。
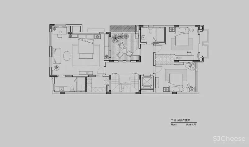
三楼主卧外连接着一条很美的走廊,自然光会透过玻璃洒进来,一排木柜构成如墙面般简洁,其内部却是可以大量储物的空间。走在这廊道间,储物的属性被消隐掉了,人忘记了物理空间本来限定的模样,只关注游走于光的世界,感受着时间所带来的静谧。
当问到谢柯设计思路或技巧想法时,他显得腼腆:
「技法无非就是那些,平面规划,空间结构…我更看重和人的沟通相处的时候,了解住户的生活方式,甚至过去的往事,还有对未来的期许。
包括后期和团队讨论方案时产生的差异性,发现不同人对空间的想象力是不一样的,寻找到共通性,探索出全新未知的答案。这个都是比直接奔向一个结果,更有趣的过程。」

