美是关于生活与自然的自由艺术,家的设计则是对人与生活的解读和理解,是人与空间共融的共生形态。 项目是一幢四层别墅,地下一层,地上三层,设计试图呈现一个自然、舒适、现代化的艺术居家空间。

客厅是极致设计美学与当代艺术的融合,朗阔的空间透露着一种安静的力量。 无需多余的装饰,两面落地窗尽显张力,把庭院四季景色囊括到室内中。
一扇保留的建筑气窗和一款现代的壁炉,在鱼肚白大理石的客厅背景中留下印记,仿佛空间有了呼吸的韵律和节奏。 简约的空间搭配意大利Minotti 的家具,相得益彰,自然流露时尚舒适的气息。
餐厅用一盏金色吊灯聚合了整个空间,原木的餐桌搭配红色的餐椅温暖浪漫,大面积的落地玻璃窗,与户外花园相通,延伸视觉的艺术之感。 在现代主义抽象画和四季变化的映衬下,品尝精致的美食,分享生活的喜悦,营造出一个心灵与自然对话的艺术环境。


厨房与餐厅相通,两道可开可合的隐藏式玻璃移门做分隔,采用排列式的布局设计,延伸的长吧台提升了空间的使用及交互动感。

为方便长辈起居,设计师在一楼安排了卧室,靠窗便是小庭院,可以看到美好的景致。


不规则的异形楼梯像一个大型的艺术装置从地下室升至三层,诠释着刚柔并济的艺术形态,兼顾建筑与雕塑的艺术之美。 窗户投进的阳光落进室内,自由灵动。地脚灯微微暖光打向木质台阶,光影层叠,营造有序的韵律。

二楼是孩子们的房间,大女儿的房间时尚雅致,小女儿的房间浪漫俏皮。 女孩子爱美并且需要有自己的小秘密,所以梳妆台、衣帽间一样不缺。 卧室没有吊灯,而是用别致的床头灯、落地灯来营造氛围美感。

宽敞的空间和美好的饰品不仅给足了成长的空间,也在默默地传递一种生活美学,让她们在这个具有好品味的家里,优雅而幸福的成长。

三层独属主人夫妇,风格和一层交相呼应。 空间在胭脂红皮质背景的映衬下呈现浪漫的气息,浅灰调双人床和床尾凳气质淡雅,理石面金属圆几和玻璃面金属床几增加了几份硬朗格调,如夫妻般相互融合。

书房深色木饰面和书架桌椅沉稳大气,午后阳光透过百叶帘洒落地面,如果配上一杯香醇咖啡,那自然是惬意的很。
半地下层为休闲活动空间,兼顾茶室功能,是家人活动与释放自我的地方。 活动室休闲区与茶室高低空间的构成将动静区域分离,茶室下沉略带禅意,落地玻璃将户外花园围合形成了一个静怡的空间。 平面图
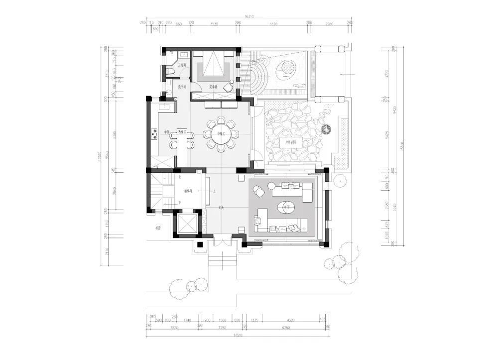
一层平面布置图
二层平面布置图
三层平面布置图
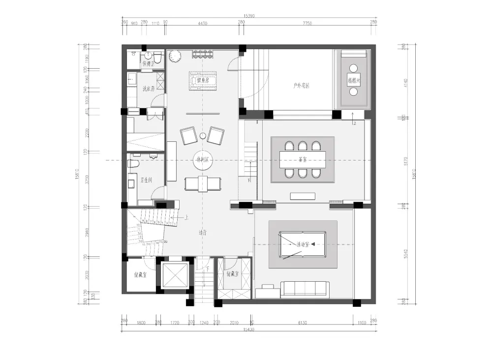
半地下室平面布置图
项目名称:东海府别墅 项目设计:汉格空间设计 项目地址:宁波高新区
版权声明:本文内容由用户自行发布上传或投稿由设计芝士代为发布,版权归原作者所有,设计芝士不拥有其著作权,亦不承担相应法律责任。如果您发现本站中有涉嫌抄袭或侵权的内容,请点此提交工单进行举报,一经查实,本站将立刻删除涉嫌侵权内容。

