车库对公寓楼来说是必不可少的存在,但在我们的印象中这些车库基本上都设在地下或是地面空间,车辆并排依次停放着,然而这个公寓楼,它就为每一间公寓设置了属于自己的「空中车库」,只要你愿意直接就能把车子开进家。
项目位于澳大利亚昆士兰州的黄金海岸的北端,共 24 层,占地面积为 898㎡,由 Ignite Projects 开发,Rothelowman Architects 设计,总体规划斥资 2.05 澳元(约 10 亿元)。
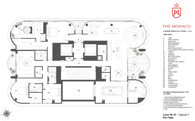
公寓楼最大的亮点是澳大利亚首创的「空中车库」,想象一下当你开着车驶入大楼时,入口地上的感应灯带就会亮起为你指引方向。
再经由汽车转盘掉头,进入电梯内直达家门口,电梯带有车牌识别功能,不用任何操作就能直接上楼,不得不说这种回家方式太令人羡慕了。
到达公寓内你可以根据地面的高低差判断车辆停放的位置▽
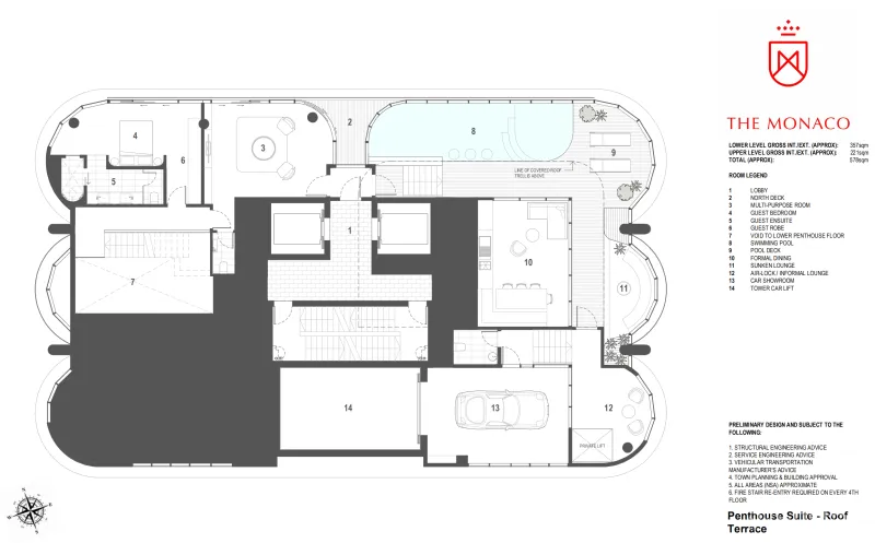
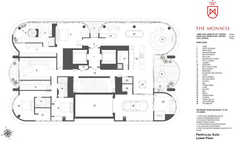
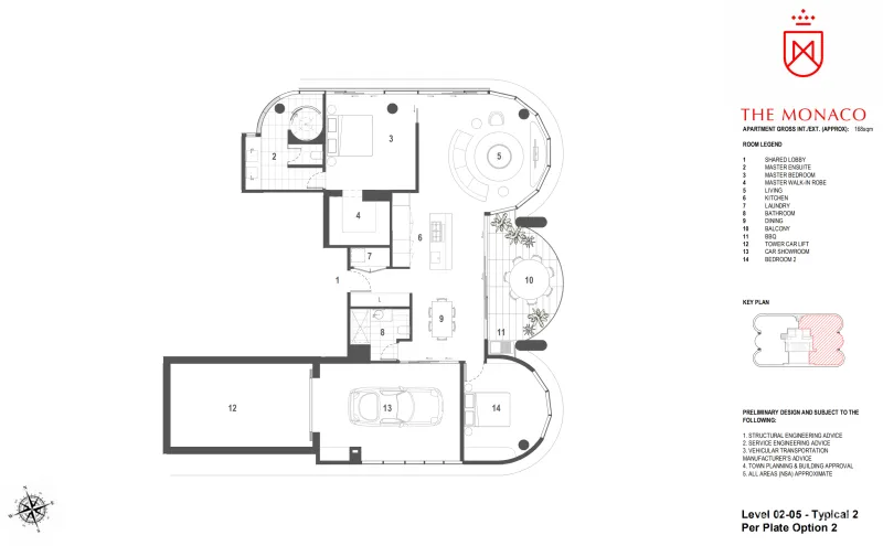
半层公寓、6~22 层是全平层,23 和 24 层合在一起做了个顶层公寓,售价约在 200 万美元 ~ 570 万美元
约 1295 万元 ~
3690 万元),带游泳池和户外露台的顶层公寓售价约 870 万美元(约 5633 万元)。
室内设计以简约的现代风格为主,且拥有绝佳的视野,可 360° 俯瞰周围的景观。
客厅以灰色地毯划分功能区域,曲线设计的沙发和圆形茶几搭配,后方大面积的落地窗更是模糊了室内外的界限,也让整个空间看起来宽阔、明亮。
开放式的厨房利用质感、色彩来凸显精致和高档感,浅色石材打造的中岛台与橱柜一侧的墙面都融入了条木元素,两者形成呼应,营造出自然、温馨的空间氛围。
配上一盏富有设计的灯具,更是为室内颜值增分不少▽
而室内停车位就在厨房和起居室附近,当然该区域你也可以只将它作为私人汽车展厅,停放自己的专属爱车。
站在厨房一眼就能看到停放在车位上的车子▽
厨房旁边是用餐区,石材的圆形餐桌搭配木质餐椅,充满了自然静谧之美▽
弧形的阳台区域布置成小型休闲区, 开阔的布局加上富有设计感的家具,一切都恰到好处。
远处的海景也成了最生动自然的空间背景▽
暖色调的卧室弥漫着静谧安宁的氛围,一旁的大开窗不仅能保证采光和通风,还能俯瞰附近的港口。
床尾处摆放着两把沙发椅,坐在这听听音乐、欣赏窗外的美景,太惬意了。
与卧室配套的衣帽间,大理石材的梳妆台搭配圆形化妆镜和沙发凳,旁边还有挂墙的异形穿衣镜与灰色换鞋凳,让选衣服、搭配妆容在同一个空间就能完成。
卫生间的设计个性但不繁琐,白色瓷砖、暖色大理石、款式时尚的金属水龙头,简单的设计就展现出了轻奢美学。
异形的梳洗镜一个朝上一个朝下,白色储物柜的柜门把手也做了横、竖上的差别,丰富的细节在角角落落都有体现▽
主卧内还有一处休闲区,小型吧台上方的吊柜摆放着屋主收藏的美酒,坐在旁边的沙发椅上,眺望远处的海景,小酌一杯,太享受了。
次卧简约低调的设计辅以精致的家具点缀,营造出温馨又舒适的生活感,大面积的开窗更有引景入室,有开阔空间视野的效果。
除了优质的室内设计之外,公寓周边还有商场、咖啡店、餐厅、酒吧以及一个游艇俱乐部,你还可以到海边散步、游泳、冲浪、钓鱼、享受日光浴等等。
大面积的玻璃幕墙让你在家就能欣赏到美丽的海景▽
更为人性化的是,如果你不方便去看房,他们会提供全套的 AR 看房服务,只需要在屏幕前就能了解室内的一切。
△Rothelowman
澳大利亚著名的建筑设计公司 Rothelowman,主要从事商业、住宅、酒店的设计,自1991 年成立以来,一直走在以现代创新设计为导向的前沿。

