滨水别墅是澳大利亚梦想之家的缩影,装饰着私人海滩、花园和开放式生活。作为对客户需求的回应——一个提供庇护和娱乐的住宅,滨水别墅的设计允许自然发挥主导作用,提供最大限度的隐居和与周围环境和景观的联系。
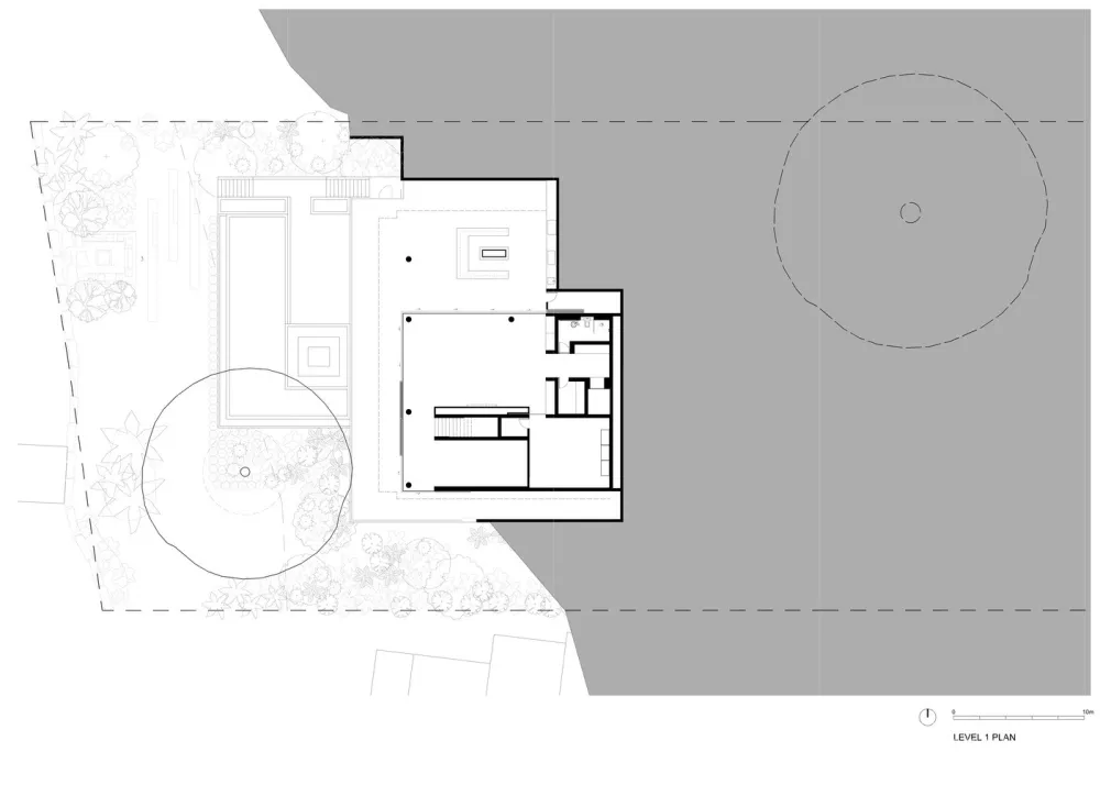
位于陡峭倾斜的滨水街区,面对悉尼广阔的皮特沃特,一个梯田,四层建筑逐步走向水&与场地地形。一系列的浮动平台被呈现为一系列悬臂混凝土板,它们漂浮在一个凹进的堆积石平台之上。为了最大化悬浮感,石板逐渐变细,朝向水面,客厅和餐厅区域被设计成一个漂浮的盒子。
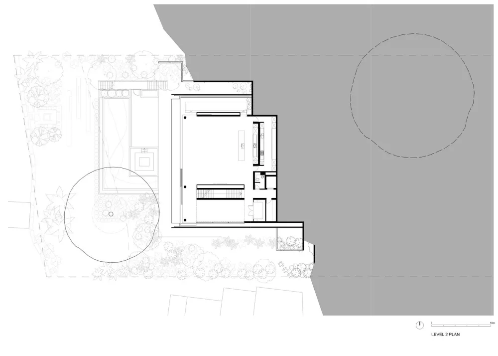
为了充分体验场地在白天和季节的光线变化,大的落地推拉门、落地玻璃窗、天窗和超大的悬臂阳台被用来连接业主与周围的景色和自然。
打破了建筑1600平方米的占地面积,室内空间被规划为四个主要楼层的邀请“口袋”,甚至在最大的开放式房间中也创造了亲密感和温暖感。主卧套间位于二层,有东侧的采光。另外四间卧室位于上层入口,从屋顶采光,提供温暖和进入早晨阳光的通道。

开放式的起居空间,具有陈列室风格的厨房和隐蔽的厨房。非正式的空间,包括家庭影院、酒吧、健身房和休闲娱乐空间,位于最低一层,当你靠近海滩和放松的水边设置。俯瞰并提供进入花园,私人海滩和皮特沃特是度假村风格的无限游泳池,与一个毗邻的下沉休息室和火坑。
滨水别墅的设计灵感来自该地区的沙子、灌木、水和天空的色调和纹理,设计特点是乳白色、浅灰色的现用混凝土墙、漂白的欧洲橡木和石灰岩地板、柔软的沙石色堆石墙,以及“隐形”地板到天花板的Vitrocsa玻璃。所有的材料都经过精心的结合和细节处理,无缝地连接了室内外空间,创造了一个无缝的流动,增强了对空间的感知,并谈到了周围的景观。




























地址:澳大利亚 年份:2017 摄影:Tom Ferguson Photography
版权声明:本文内容由用户自行发布上传或投稿由设计芝士代为发布,版权归原作者所有,设计芝士不拥有其著作权,亦不承担相应法律责任。如果您发现本站中有涉嫌抄袭或侵权的内容,请点此提交工单进行举报,一经查实,本站将立刻删除涉嫌侵权内容。

