*本文由 RBA | URBAN object 投稿并授权时刻设计网及其所属平台发布,点击此处 立即投稿,曝光快人一步!

Since 2018 “The Chinese Fashion Year”, the concept of Design in China – Made in China has raise an extraordinary heat in the field of local brands and sells., which represent the combination of Chinese manufactory capability with local pursuit of enjoying life. As a leading company of Chinese footwear production, Koukoumu, having its own powerful production foundation, has been exploring the upgrading idea of mixing local design research, local production, and local social media promotion. We URBAN designer also try to response to these requests, achieving a balance among office working, design, research, production, display, self-media broadcasting within a three-dimension 600m2 space.
国货正当“潮”
自2018年“国潮元年”至今,中国本土创意 – 本土制造已经掀起了此起彼伏的自信浪潮,迸发出了前所未有的消费热情,这是疫情新时代下,“制造业高质量发展”的奠基与“人们追求美好生活”的期愿,所碰撞出的火花。口口目,一家在国产女鞋行业内深耕几十年的本土潮流领军品牌,借助其强大制造生产能力,已经开始思考本土元素,自主创意研发,以及当下新媒体的结合运用,探索前行转型。而如何在600平方的高维立体空间内实现新潮品的幕后办公,设计,研发,制作,展示,新媒体宣发这一系列自由而有序的发生,URBAN设计师尝试交出这样一份可能性。


Different from traditional street shops, the studio needs to carry a larger proportion of the actual use needs of closed-door R&D and production. Unlike traditional workshops, the concept studio also undertakes a certain proportion of entertainment and the possibility of shooting. White is a color gamut that has no distance and cannot be defined, neutral, neutral, self-contained but not alienated, using white to accept different elements, different interactions, and different possibilities.
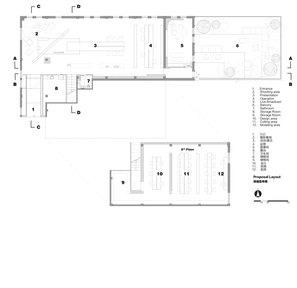
与传统街铺不同需求不同,工作室需要承载更大比例的闭门研发生产的实际使用需求,与传统车间不同,概念工作室又承担了一定比例的招待,拍摄的可能。白色,是一个没有距离且无法被定义的色域,中性,中立,自成态度但没有疏离,用白色接纳不同元素,不同互动,不同可能。






It seems to be free, but it is actually orderly. Whether front-end feedback and back-end R&D adjustments can be transmitted in both directions with maximum efficiency determines whether a trendy brand can accurately and quickly grasp the current creative hotspots.
看似自由,实则有序,体块组织动线,视线串联场地。前端的意见反馈与后端的研发调整是否可以最大效率得到双向传递,决定了一个潮流品牌能否精确且快速的掌握当下创意热点。

(平面图)

(剖面图)

Space Morphology 空间形态



项目信息
项目地址 | 广州市荔湾区
服务内容 | 商业空间设计
项目规模 | 600平方米
项目时间 | 2021.12-2022.03
项目团队 | Ruggero Baldasso,Evelyn Chen,Andrea Pasqua, 湛柱坚,梁祖儿
摄影团队 | 姚朝辉
推文排版 | 施星澜



学习了
感谢分享
简约、现代,点线面的构成运用的很棒!
有点意思