Kuřim体育馆是Kuřim小城里规模逐渐扩大的体育场馆的一部分。体育馆地处整个场地的中心,因此建筑师们努力设计这样一个建筑——只要看到建筑外观,就能明白设计意图。建筑很有趣,外观引人注目,未来会成为整个体育场馆区内的标志建筑。
建筑造型体量方面,体育馆造型宛如一块紧凑的雉堞状浮冰。建筑外立面的边缘划分出黑色和白色区域。建筑造型和其黑白相间的外观使其从整个环境中跳脱而出。正立面的一个重要的特征是一个围绕看台区的窄长的条形窗,从窗户可以看到体育馆内的活动。
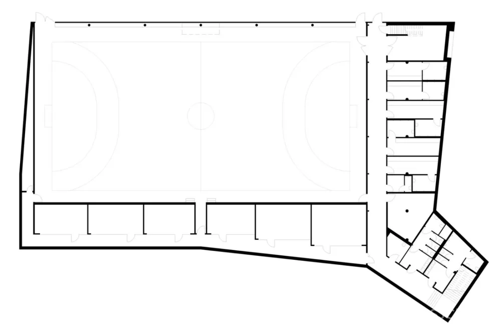
体育馆正中央是一个长40米宽20米高10米的手球场,手球场一侧是看台,可容纳约360名观众。利用天花板放下的网状垂帘,可以将体育馆室内分成三个部分,如此一来,出租场馆时就可以更灵活地安排场地。
体育馆的负一层是供运动员使用的,而入口大厅和接待处所在的一层则是起到连接空间的作用,主要供观众使用。从入口大厅下楼到负一层就是更衣室,更衣室内有淋浴间和洗手间供裁判和运动员使用,负一层还有储藏室。

一楼除了入口大厅和接待处,还有供观众使用的卫生间,可以看到球场实况的休息室,以及一个配有单独楼梯的工具室。
结构方面,负一层采用钢筋混凝土结构,一层则是轻质钢结构。建筑外立面使用光滑的垂直夹层板。而建筑内部的非承重结构部分主要是由光滑混凝土砌块,并涂成白色,统一整体风格。耐水性要求较高的墙体表面都贴了一层瓷砖来满足需求。球场地面使用Taraflex橡胶地板,这是一种特殊的人造地面。体育馆内其他地面均用无缝环氧脱脂涂料覆盖。体育馆采用串级控制系统燃气锅炉供暖,使用热回收空调系统确保卫生通风符合要求。馆内照明采用线性LED灯系统,照明范围和强度都可以调整,还可以达到电视广播级别的照明水准。














▼总平面图
▼首层平面图
▼负一层平面图
▼立面图


▼剖面图

设计公司:CUBOID ARCHITEKTI 位置: 捷克 类型: 建筑 材料:胶合板 瓷砖 预制混凝土砌块 橡胶地板 标签:Kuřim 库日姆 捷克
版权声明:本文内容由用户自行发布上传或投稿由设计芝士代为发布,版权归原作者所有,设计芝士不拥有其著作权,亦不承担相应法律责任。如果您发现本站中有涉嫌抄袭或侵权的内容,请点此提交工单进行举报,一经查实,本站将立刻删除涉嫌侵权内容。

