Project name/exclusive statement
项目地址/ 温州.平阳香湖壹号
Project location/ Number One, Xianghu, Pingyang, Wenzhou
设计参与/ 蔡丽君.潘琪靖
Design Participation/cai Lijun. Pan Qijing
主创及设计团队/ 境象设计师事务所
Creation and Design Team/ MIRROR DESIGN FIRM
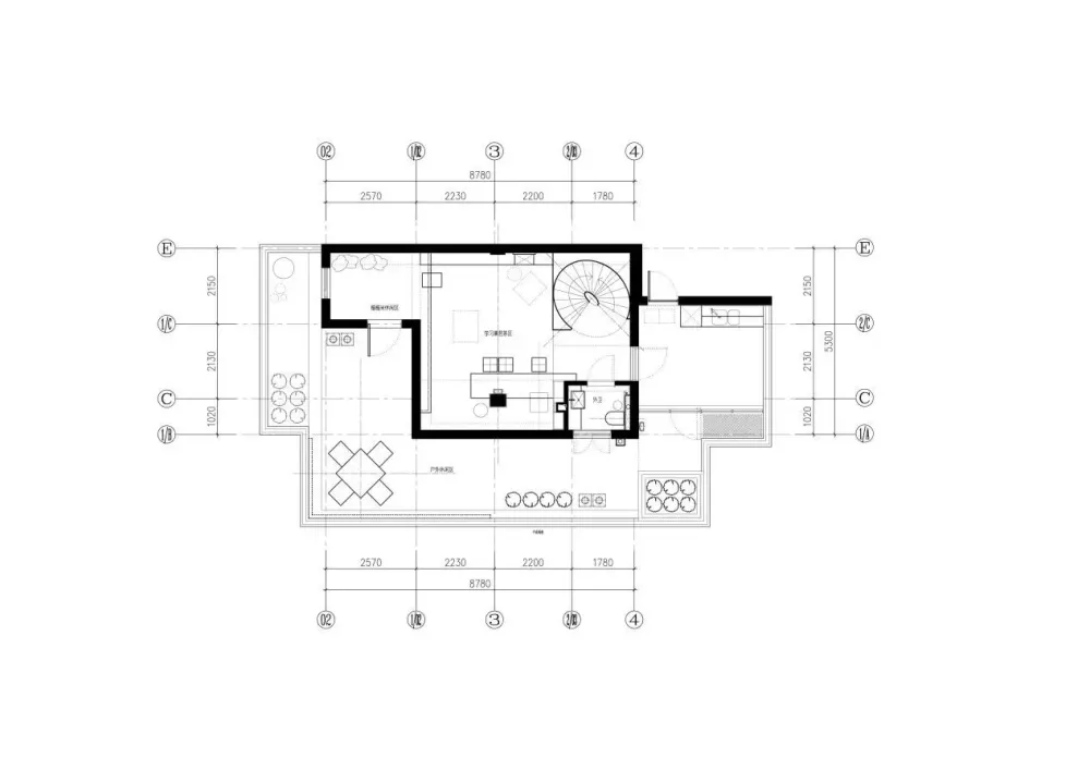
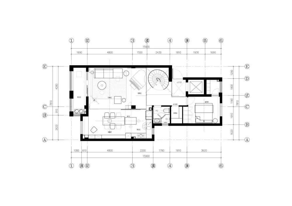
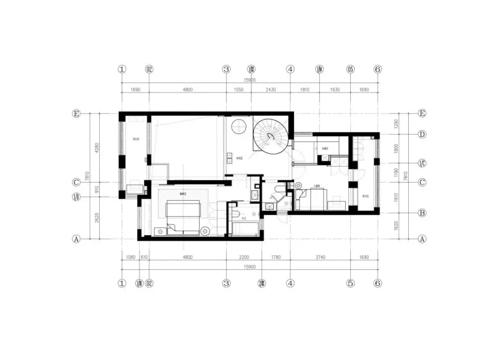
项目面积/ 220 m²
Project area/ 220 m²
有结合的对外方式梳理,且伴有对空间的留白平衡,传达体验值的同时,思考其存在的合理性,再就多维度的分散区位来探讨日常与空间所关联的互动间隙,进而提升私宅对外所阐述的情感共鸣系。
There are integrated external ways to comb, and accompanied by space balance, to convey the value of experience, at the same time, think about the rationality of its existence, and then on the multi-dimensional scattered location to explore the daily and space-related interaction gap, and then enhance the private house described by the external emotional resonance.
通过空间的多维思考来探索生活的不同层次定义以及私宅更为贴切的功需,也希望透过表面的呈象,我们可以看的更为深入些,不只是来自设计层面的认知,更多的可以体会到生活的真实。
Through the multi-dimensional thinking of space to explore the different levels of definition of life and private house more appropriate work needs, but also hope that through the surface of the image, we can see more deeply, not only from the design level of cognition, its more about the truth of life.
对于私宅所提炼的生活方式传达,更倾向其脱离外饰后的本真面貌呈现,以相对质朴的设计语言来叙述空间所要传达的心绪变化,考量其背后的真实发生。
For the expssion of life style refined by private house, it is more inclined to psent the true appearance after it is detached from the exterior decoration, to narrate the mood change that the space wants to convey with the relatively simple design language, to consider the real occurrence behind it.
用重组的方式来衔接彼此相邻的分区,尝试突破框架界限的二次组,结合日常的行为来让空间建立更多元化的关系和释放。
With the reorganization way to connect each others adjacent sub-areas, trying to break the boundaries of the framework of the secondary group, combined with day-to-day behavior to allow space to establish more diverse relationships and release.
结合居住者的情绪体验,转而到对空间的呈象思量,
对生活的深切关注,慢慢到对所处空间的反向思考,再结合内心的情境,述演其常态。
Combined with the emotional experience of the occupants, they turn to thinking about the space, paying close attention to the life, slowly to thinking about the space in the opposite direction, and then combine the inner situation to describe their normal state.
在保证细分功能的前提,优化空间界面,让相邻的区间建立更多的互动关系,来强化日常带给居住者的心绪变化。
In the pmise of ensuring subdivision function, optimizing the spatial interface, so that the adjacent areas to establish more interactive relations to strengthen the daily bring to the residents of mood changes.
空间与使用者所建立的场景互动。
尝试重新定义单向区位的功能,让其更具交流和互动性,也可以更好的感受空间给予日常的不同体验方式。
The space interacts with the scene created by the user. Try to redefine the function of one-way location to make it more communicative and interactive, as well as better to feel the space giving a different way of everyday experience.
以留白的方式来梳理日居常态的空间关系,记录着所发生的帧帧场景及其遗留的面貌和痕迹。
By the way of white space to comb the daily life of normal spatial relations, recording the occurrence of the frame scene and its left face and traces.
在明确功能区间分布的框架内,于尝试性的去释放分区本身,让相邻空间彼此更能实现其该有的具象分则。
In the framework of definite function interval distribution, we try to release the partition itself, so that the neighboring spaces can realize their concrete partition rules.
打开是基于界面封闭后的二次推演,也更能考量不同维度的空间思考,让其自述,还原本体所要兼容的有乃性,也在反向的验证空间的可变性,再结合功需的前提,让其连贯的更为彻底。
Opening is based on the secondary deduction after the interface is closed, but also more able to consider the different dimensions of spatial thinking, let it speak for itself, to restore the ontology to be compatible with the nature, but also in the reverse to verify the variability of space, combined with the pmise of work requirements, to make it more coherent.
试图通过贯彻空间的多维面貌来反映和诉说日常,重拾被定义的情感建立和发现。
尝试在空间中去融合和记录被生活过的常态轨迹,把更多反馈后的体验值带到日常的累积过程中。
Try to reflect and tell the daily life through the multi-dimensional face of the space, and regain the defined emotion to build and discover. Try to integrate and record the normal trajectory of your life in space, and bring more feedback to the daily accumulation process.
建E网第一届全国室内设计大赛一等奖
CIDA中国室内设计大奖赛住宅设计奖
私享家·星河第三空间第四届室内设计精英邀请赛三等奖
中国国际室内设计双年展铜奖
大金第九届内装设计大赛一等奖
搜狐”特地陶瓷杯“全国室内设计明星大赛华东区总冠军全国银奖
艾特奖最佳住宅建筑设计空间奖;
筑巢奖年度住宅空间优秀作品奖
40 UNDER 40中国(浙江省)设计杰出青年
金堂奖年度优秀别墅设计
第14届金外滩奖-最佳精装房优秀奖
第四届“金瓦奖”首席评委大奖
芒果奖-中国人文设计大赛“中国别墅创意奖”
1989-2019中国室内设计30周“百位优秀室内建筑师”
2019年金外滩奖-最佳精装房类金奖
内境外象–探索于内外之间,通过建筑的思维去梳理空间与间隔之间的关系。在多空间场景的切换中、不断的探索和实践强化变量的认知,对外试图呈现我们自己独到的美学视角,赋予空间多重意义上的诉求。在满足物质条件的同时,力求对精神层次的满足,理性伴随感性的继续,打破传统的生活方式和根深蒂固的思维。

