泊空间坐落于杭州西溪湿地一片由老厂房改造而来的文化创意聚集地——和创园,旧与新的交织散发着古朴与年轻错落跳跃的新奇感。
沿着老厂房的印记,穿过长长的走廊,你会发现另一个空间,原本下沉的空间被保留起来并改造成了户外休闲的小院子。
▼入口庭院
▼入口庭院细部

▼下沉庭院概览
▼下沉庭院休闲区
▼餐厅酒吧入口

▼从餐厅酒吧回望庭院
▼一楼餐厅及酒吧


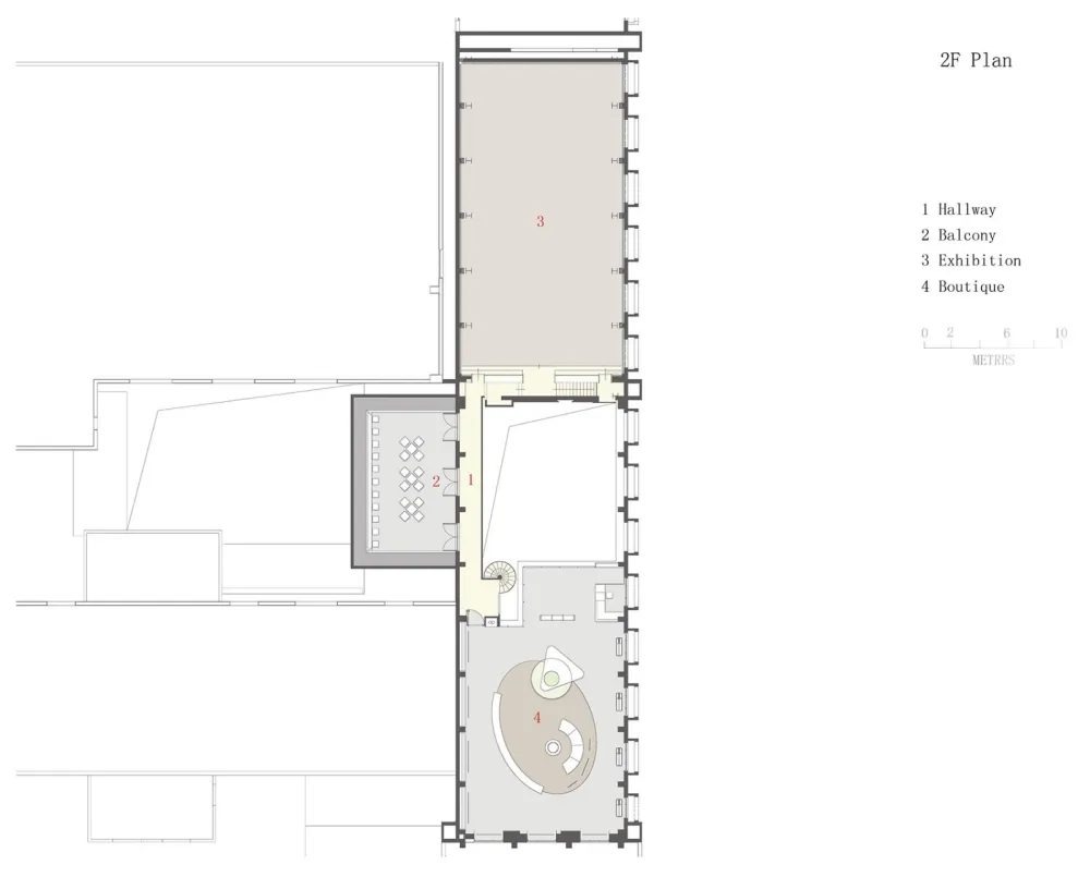
穿过宽敞的餐厅、酒吧,沿着黑色的旋转楼梯而上,二楼设置了设计师品牌店和一个完整的大空间。 这里会被用作展厅,比如艺术展览,而走廊向外延伸至户外的露台,炎夏之日成为人们最悠闲的所在。 ▼黑色的旋转楼梯
▼二楼完整大空间

▼展厅同时也适用于大型品牌发布会
从商业功能来讲,泊空间是复合业态,从设计角度来讲,我们希望它成为文化保留的地方。 城市扩张的速度越来越快,我们的城市正在失去记忆。 如果一个城市没有记忆,就没有了文化。很多东西虽然老去,但只要记忆在那里,我们就可以通过设计改造,让它延续生命力。
▼施工现场
复合空间给流动在城市里的人们提供一个又一个的停留点,它们将整个空间连成不断生长、发育的生态,打破了单一的以目的为导向的格局。 人们可以在此“探寻到真正喜欢的点,哪怕只是享受一缕阳光、一个画展、一顿美餐,放慢时间的脚步,回归生活。”
▼流线分析图
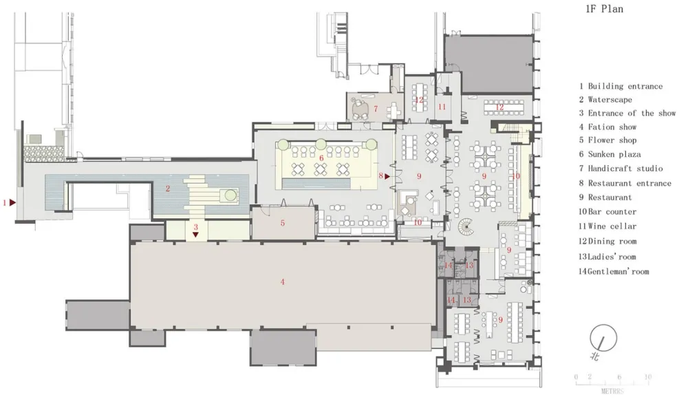
▼一层平面图
▼二层平面图
▼剖面图

项目名称:泊空间 项目地点:浙江杭州 竣工时间:2018年3月 项目类型:厂房改造 项目面积:3000 ㎡ 业主单位:杭州众念文化创意有限公司 设计单位:万境设计 施工单位:伍匠 软装单位:WISEart惟思艺术顾问 项目摄影:薛钰滔 信息来源:gooood
版权声明:本文内容由用户自行发布上传或投稿由设计芝士代为发布,版权归原作者所有,设计芝士不拥有其著作权,亦不承担相应法律责任。如果您发现本站中有涉嫌抄袭或侵权的内容,请点此提交工单进行举报,一经查实,本站将立刻删除涉嫌侵权内容。

