新苏集团研发中心是米丈建筑同一业主的第三个项目,在设计中,我们更加清晰和准确地把握了业主的品位和需求,也更加坚定地将新建筑与企业性格更好的结合在一起。建筑作为集团公司的研发中心,承担了整个新苏机械集团的技术研发工作。新苏集团刚完成了新的大规模并购,原本分属不同公司的研发部门必须在这栋新的研发中心工作,因此通过整体区域建筑和谐演进来实现建筑内部的沟通共荣,成为设计着力的重点。
业主董事长,非常喜欢搜集名贵的树木,基地在空置时,就成为临时的苗圃。多次移栽的古树和价格不菲的名贵树木,成为场地当中的既有条件,建筑的生成,不可避免的围绕这些树展开。
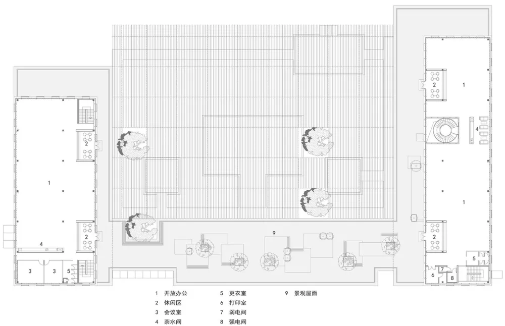
建筑体沿基地三边展开,三个主要的体块,容纳了实验室,办公和展厅。矩形的基地被围合出一个面向城市道路开放的庭院。所有不能移动的树木都被保留在了这个庭院当中,四个小体量的独立建筑体,在其中散布开来,将庭院划分为不同的区域。一池蜿蜒的碧水,在区域间穿行,使被建筑分割的庭院,在某种维度上连续起来。
在庭院上空,我们设置了一片纯白色的金属格栅,像一片云,漂浮在庭院和树丛间。格栅过滤了阳光,带来均匀的照度,让庭院有了介于室外和室内的奇妙景观。树成为建筑中最有表情的元素,或穿透云端,或在云层下优雅地展开。当有雾升起,空间变得神秘而优雅。漫步于屋顶花园,可以看到巨大的云朵漂浮于树间,树枝随风飘荡的时候,影子在云朵上飞翔。工作在其中的人们,随时可以从紧张的案头脱离开,将视线和心情投入到这种静谧的自然变化中。
理性而严谨的建筑,在内部庭院呈现出一种自然与人工偶合的诗意。四季更替着庭院的景致,唯有透过云间的光线,不紧不慢的将建筑面貌轻轻勾勒出来,又匆匆地掩上。
▼模型
▼首层平面图
▼二层平面图
▼建筑生成示意
▼立面图
▼轴测图
▼剖面图
项目名称:新苏集团研发中心
设计方:上海米丈建筑
公司网站:http://www.minax.com.cn
联系邮箱:info@minax.com.cn
项目设计 & 完成年份:2015年设计,2018年完成
主创建筑师:卢志刚
设计团队:刘丽、梁丁鹏、黄聪毅、刘志睿、王丹、徐倩、Sara Gimenez Espejo、Bai Stefano
项目地址:中国无锡菱湖大道189号
建筑面积:3762平方米
摄影版权:吴清山

