
2017年,全球传奇买手店Colette关店,Triple-Major上海店宣布结业,两家买手店头牌的举动引起行业哗然,然而国内其他买手店在却仍保持着“激流勇进”的态势,全国买手店激增至上千家——清晰的商业定位、对潮流文化的个性解读与人文性的深度思考成为从买手集合店狂潮中脱颖而出的首要条件。

CHOCLAB作为拥有来自世界各地潮牌、时装周当季新品和全球爆款的潮牌集合店,在与YEBIN DESIGN的合作中尝试探讨当下的人性化设计解读,提出了“不深不浅,恰是新知”的商业空间新知论。

有别于大部分集合店的大面积展示,CHOCLAB在店铺外观上抛弃了敞开式设计,利用纯粹的几何式组合外立面和看起来常年紧闭的大门,这个具有仪式感的入场也是一种对私密与窥探的矛盾体验尝试。
细看才会发现的一排金色小孔,和写了品牌名称的玻璃窗,透过它们才能隐约窥见店内的景象。
这也是YEBIN DESIGN和CHOCLAB想表达的观点——人们追求私密性,同时又控制不住自己的窥探欲。兼顾隐私又不至于完全封闭的空间,试图催生观者进入空间内部一探究竟的欲望。
1F:几何交错的艺术空间
人们在工作与生活中,既追求明亮开阔的环境以保持积极的情绪;同时又需要独立的空间进行思考和复原。

CHOCLAB一楼采用了简洁明快的方式,以富有想象空间的白色和活跃明快的金色为主,使整体视觉更赋开阔感;同时利用交错纵横的几何图案和线条,将空间分割成不同的区域以增加联系感。

人与人近距离交往中,不可避免总是先观察到对方的脸,紧随其后的就是着装。

YEBIN DESIGN的这一思考,设计了面对面站着的人脸延伸展示货架,将人与人交往的直观感受融入其中,隐晦低调地表现:时装是关于人的艺术,也是沟通的一种形式。
结合CHOCLAB的解读与定位,并不需要密集的陈列区域,YEBIN DESIGN在设计中没有加入繁复的装饰和紧密的结构排布,进入内部时路线灵动,动线清晰,在陈列点上的细节,使观者本能地关注到产品本身。

1F隐藏在投影墙后通往2F的楼梯,和店面外部注重隐秘性的理念如出一辙。

圆锥、线条、方框等几何性的运用,举重若轻地完成明快与质感之间的衔接过渡。

楼梯同样以金色和白色分割,拐角处奇妙的装饰引人注目,让人不禁好奇“楼上的秘密”。

2F:对材料细节的思考
高频节奏和现代化的生活难免无趣,人们需要体验更多可能性。

服装设计师对待材料的方式引发了YEBIN DESIGN的思考——那些不容忽视的手工感与立体裁切,解构重组所带来的各种冲突创造。

登上2F,铁质的黑色墙面和展台,大面积浅暖的质感皮质,到处都是手工的痕迹,每种材料上都留有人工打磨的错落。

材料的可能性运用无意间凸显了了空间的深邃神秘。

大而不兀银色熠熠的金属人型雕塑,延承了人与服装的互为作用,作为陈列货架,浸入整体空间。
每个角色都有鲜明的个性,而时装往往是其最直观的体现。

YEBIN DESIGN从整体人性思考出发,试图让整体风格分布与理念丝丝入扣。

错位的金属圆椎柱,和通道里的黑色座椅,表现随意的精心。
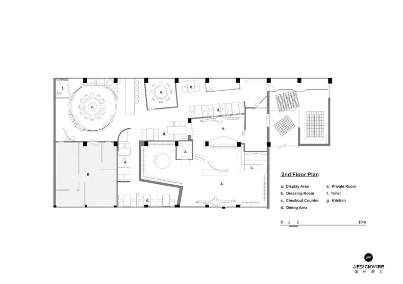
2F:革故鼎新的CHOCLAB KITCHEN
2F楼梯口往左是服装集合空间,往右则隐匿着CHOCLAB KITCHEN。所谓衣食住行,着装与饮食对人来说同样重要,现代人并不仅仅追求饱腹之欲,服务与环境成为更高追求。

2F整体延伸了浅暖色调,依旧是黑铁、紫铜、浅色皮纹的搭配,线条质感分明,两个区域既互相分割,又存在着某种互动和联结。商业购物逻辑下的空间秩序,建立了新而暗涌的情感路径与感受。

吃饭既是一件私密的事情,同时也是维系人际关系重要的途径。“既分割又关联”的状态在社交中不可避免。

餐厅与服装集合空间因为气味,尤为难以处理两者的关系。YEBIN DESIGN通过“立”“面”为墙,“破”墙为“序”——在原本的空间竖立数个独立的面,通过面形成空间之间的隔断。

墙面或者展示道具上的切割、突出、内陷,重构新的面的秩序;而再次打乱这个次序,加之墙面下部的通透,含蓄地建立了两个空间的“重叠”。

商业设计不仅在于店铺本身,还是其背后文化现象及体验所转化的直观视觉呈现,以及对平台经营、人性化解读、差异化服务、买手团队基础上潮流文化生活的社交圈打造。

对行业的深入思考,对人性的场景实验,对布局的解构重组,才是YEBIN DESIGN在CHOCLAB项目中对新知的理解与尝试,也将在未来的设计将此类方式延续更迭。

结构图一览

1F平面图 1F Floor Plan

2F平面图 2F Floor Plan

门头分析图 Storefront Analysis

1F分析图 1F Analysis

2F分析图 2F Analysis

餐厅区域分析图 Restaurant Spatial Analysis
设计名称:杭州CHOCLAB潮牌店设计
设计公司:叶梹室内设计工作室
位置:杭州
面积:600平方米
类型:室内设计 商业建筑 服装
本文内容来源于:设计腕儿


???