(前言)
“Atmosphere is my style.”
JMW Turner to John Ruskin in 1844.
“氛围是我的风格。”
威廉特纳于1844年对约翰拉斯金如是说。

This residential renovation practice begins in winter of 2021,and ends in the same time of 2022. Facing a freshing view over the garden, we have imagined throunsand times when the sunlight spread into the living room, and people can casually enjoy the wind, the touch of light, and the change of temperature.
这是一个住宅改造的实践,始于冬,成于冬。面对开阔的花园视野,我们构想了无数次阳光斜打进厅堂内,业主自由且慵懒享受风,光与温度的场景,这样的设想贯穿了整个设计过程。

“When you are in the planning phase, what is the first thing you do?”
“To feel, to think, to be careful… it’s nothing special, isn’t it?”
From Multiplicity and Memory: Talking About Architecture with Peter Zumthor
“你在规划阶段,首先做的是什么?”
“感受,思考,小心翼翼地……没什么特别的,不是么?”
来自2010年彼得卒姆托关于建筑设计的采访


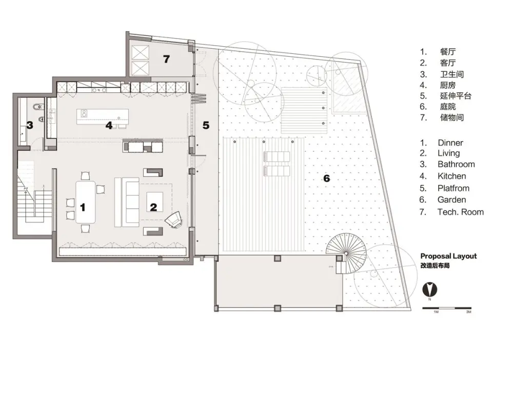
The project locates in the tip of an villa compound in a downtown hill. It is an old-styled villa with 4 stories, facing itself to the south with a open-view garden overlooking the city. However, the imperfection of layout and waterproof technique makes the garden level pretty humid and unpleasant. We, URBAN designers, therefore reshuffled the interior function organization, grouping the use of kitchen, dining and private living space into the garden level, trying to create a brand new main hall for family activities.
项目位于城市山顶别墅区高位,是一栋几十年的老式别墅,南向有视野平坦的花园,俯瞰山城景色,但早年结构与防水的弊端让处于别墅最低位的花园层保守潮湿与阴冷的侵扰。在明确了新的使用需求后,URBAN设计师策划翻新局部建筑与室内,重构居住体验,弱化传统分割式的别墅住家结构,将花园层改造成集餐厨,私密休憩,与观景为一体的自由的家庭活动主场所。



改造前实况

(改造模型图)

(花园层原始平面 + 改造平面)
Metaphysical Silence
形而上学的沉默
How to invite the outdoor elements into interior, and how to make people feel alive when being blocking indoor, is always a proposition worth exploring, because building for nature is inherently contradictory. As George Steiner writes:Silence is a choice. In the Greek citystate, where words are full of barbarism and lies, no speech is more powerful than non-written poetry. Whe have many different ways to construct this space, but finally the most restrained,and the most slient one has been undertaken. This is also our choice.
如何邀请户外的元素进入室内,同样地,如何让人身在屋内而心神荡漾,是一个值得探索的命题,因为为自然而建造本身就是矛盾的。如同乔治·斯坦纳写的:“沉默是种选择。在(希腊)城邦里,言辞充满了野蛮和谎言,没有比无言诗(non-written poetry)更有力的言说了。” 我们有无数种装饰语言去构建这个空间,最终确创作了最接近原生建筑,最克制,最沉默的一种,这是一种选择。





Light, Shadow and Poem
光影之美 静默成诗
Minimalism is not the goal, however, the untouchable but everchanging touch of wind, sound, temperature and light are hero of the space, which means, designing for feeling and mood are the true target.We are hoping the light can become the poet,because that would be the only pathway to reality.
极简不是目的,因为不在场的风,声音,温度,光线的变化才是主角,感觉与触觉才是设计服务的归宿。我们希望光静默地在物体上写诗,这是抵近真实的唯一方式。




项目信息
项目地址 | 广州市黄埔区
服务内容 | 全案托管
项目规模 | 别墅局部改造
执行机构 | URBANobject | URBAN私宅设计所
创意设计 | Ruggero Baldasso
全案设计 | Evelyn Chen
项目团队 | 郑坚发,李辉鹏,朱培强,梁祖儿,熊德芳
摄影团队 | 姚朝辉
推文排版 | 施星澜




很好的設計
氛围是我的风格 我不敢这样设计
大师级别、别墅我不敢这样设计
1234
123
12
1