这栋大楼建于85年前,是上世纪遗产的一部分。整栋楼中主要是高天花板,条形窗的小公寓。
业主是一对在家工作的年轻夫妇,他们希望能够通过改造设计创作一个由生活空间围绕的工作空间,而且要求两种空间之间有明确的划分和隐私保证。设计需要解决许多问题,包括在不需复杂操作下在如此小的空间中混合不同的功能,创造足够的存储空间,以及尽可能的保证自然采光。
对客厅开敞的厨房和餐厅
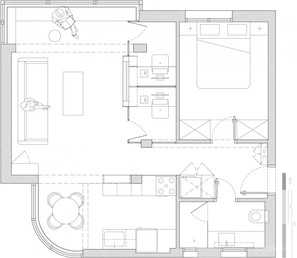
公寓被划分为两部分,一部分为包括卧室、浴室和衣帽间在内的私密空间,另一部分为包括客厅和厨房在内的公共空间。
与此同时,将包含工作间的体块插入刚才的两个部分之中,这个体块包含两个由铁架与玻璃隔板围合的舒适的工作站和一个图书媒体空间。图书空间内设置了公寓的通信系统,可以控制整个家的媒体系统。
为了方便不同功能的并行使用,公寓的装饰材料包括工作空间中的双层木地板,隔热墙,外露砖和吸音天花板砖,都是根据声学质量进行选择的。
工作空间是一个嵌入的盒子
使用由铁架与玻璃隔板围合的工作空间
由于这个小公寓拥有大量的细节,因此建筑师选择使用如灰色调,钢和木材等经典的建筑和装饰材料来改造公寓。 各种材料结合在一起,营造出温暖丰富又令人愉快轻松的氛围。
由于建筑的尺度过小,所以建筑师必须仔细设计包括家具,厨房,存储空间以及门的每一个木工细节。室内大量使用蠕虫渐变灯以及科技灯,创造出愉悦的感受并强调了设计师的灯具装饰艺术。

