大家有没有觉得
现在设计图纸是越来越卷了
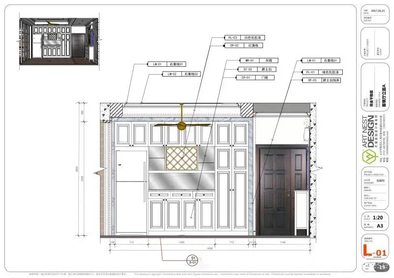
平面、立面、剖面用彩色图纸也就算了
居然有的人连施工图都是彩色的
但是没办法
谁让彩色施工图优势明显呢
使用SU+LayOut
轻松做出彩色施工图

今天
小编就给大家免费带来
《Sketchup LayOut施工图》
包含施工图案例、视频教程、剪贴簿
文件格式:DWG+MP4 大小:450M
希望对大家的工作有所帮助
文件目录预览

展示一:LayOut施工图案例
( 部 分 展 示 )



展示二:LayOut施工图视频教程
共7个视频,70分钟
( 部 分 展 示 )

展示三:layout施工图专用剪贴薄
( 部 分 展 示 )




7
请勿发布无意义评价,再次发布无意义评价将进行账号封禁,感谢您的合作!