设计师融合中西古今文化不同的意象,勾勒展现出两处气质截然不同又奇妙相容的“凤凰归处”。
 
 
“珠宝沉默不语却比任何语言更打动人心”。
珠宝不仅稀有,其中寄托着的也是极为珍贵的情感——热爱、安宁、回忆。
本案中,设计师以珠宝的贵气与时尚为灵感来源,构建一个轻奢、精致的现代家居空间,让其承载更多关于家的热爱和眷恋。
 
 
宛如利落的切割工艺,设计师摒除过于繁琐的细节,利用大横厅的尺度优势,强调体块之间的穿插和组合关系,营造出一种干净整洁、南北迎风的写意氛围。
 
 
 
 
 
 
灰色烤漆板和具有天然花纹的大理石,是现代设计的经典元素。
餐厅的设计与客厅遥相呼应,设计感满满的餐桌和玻璃吊灯,点缀四季三餐的温馨气息。
作为点睛的墨绿色的家具,就如首饰主石旁的不可或缺的衬托,使得空间高贵精致感油然而生。
 
 
 
 
 
 
延续动区的设计思路,设计师在卧室同样采用明快的现代设计语言,透过面块和粗细不一的线条展现“珠宝”各个切面的独特之处:
运用“轻奢代名词”的黄铜元素,加入透明的衣柜门、艺术摆件等细节处理,描绘出时尚优雅的生活蓝图。
 
 
 
 
 
 
 
 
值得一提的是,142户型的全屋的空间选材大多具有出色的纹路和肌理,借用块面和艺术绘画作品的笔触,立面的构造线条颇具对比度和记忆点,尽力贴近名贵珠宝所展现的线条和色泽,处处都是高度艺术化的点题。
 
 
相比于142户型,195户型更加舒展大气。
设计师汲取中式传统庄重的元素与形体比例的基础上,解读当地独有的社会历史文脉。
 
 
凸显仪式感和尊贵感的超长双横厅空间,奢华的尺度是本案重要的空间亮点。
捕捉到这个优势,设计师强调中式审美特点之一:
以过道为中轴,客厅、办公区、餐厅、西式吧台安然落座,确保整体视野广阔,空间方寸毫不浪费且功能极为融合。
 
 
 
 
 
 
 
 
 
 
通排的柜体带来稳重的视觉效果,既作为生活品位的展示,又确保收纳的井然有序;而朱红色作为跳色则带有几分俏皮和明媚,与带有东方符号的家具搭配,中和过分的厚重感,增添一丝时尚感和东方意蕴。
 
 
 
 
卧室的细节处理也颇具巧思。
主卧套房中,设计师为男女主人分别划定了独立使用的衣帽间,主卫采用双台盆的设计,继续强调主人生活的仪式感和尊贵感,体现出主卧豪华的配置。
通过块面整体的形体分割的手法,为立面或隔断刻画上装饰性线条,搭配延伸而来朱红色,东方式雅致风华之美不言而喻。
 
 
 
 
 
 
 
 
 
 
 
 
被中式之美包裹的家居空间,散发着落落大方、温文尔雅的雍容气度,让人联想到传统文化中的百鸟之王。
它仿佛无言中召唤远方的家人,在此乐享安宁、被浪漫气息熏染的生活闪光之处,静候翩翩而来繁华。
 
 
 
 
 
 
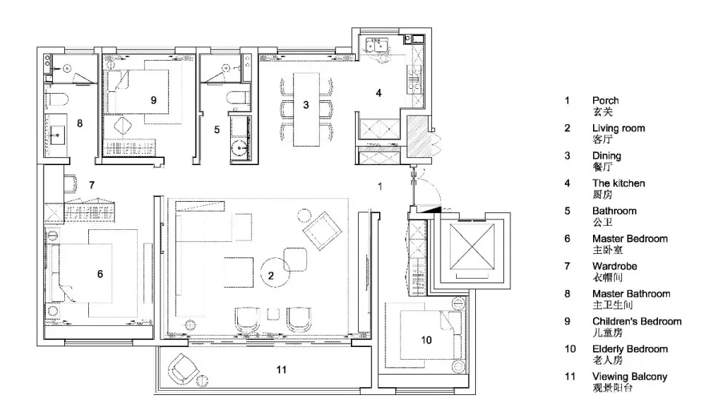
142户型/平面布置图
 
 
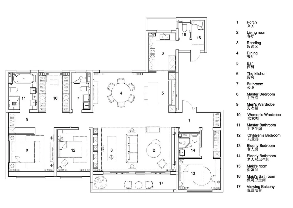
195户型/平面布置图


