每当在网上看见那些室内大师做的平面方案,
你会不会有这样一个想法,
方案比不上就算了,
怎么连平面图都没他们做的好看?
大师的平面方案为什么做的那么好,
设计是一方面,
平面表现方式是一方面,
使用的家具图库也是很重要的一方面,
一个好的图库能让你的方案提高一个档次。
平面优化的学习是需要时间积累的
但是改变平面图外在颜值这件事
可能也就
1分钟
而且瞬间能让你的平面图
“看上去逼格高很多”
首先分析下
为什么咱们的平面图不好看?
【糟糕的平面图表达】

问题1:家具图块风格太多元化了
问题2:图块比例关系偏差太大
问题3:比较客餐厅空间比例,客厅沙发和餐厅图块整体偏小
问题4:两种主题文字标注混淆一起
问题5:空间粗细线形主次混乱
极度舒适的平面布置
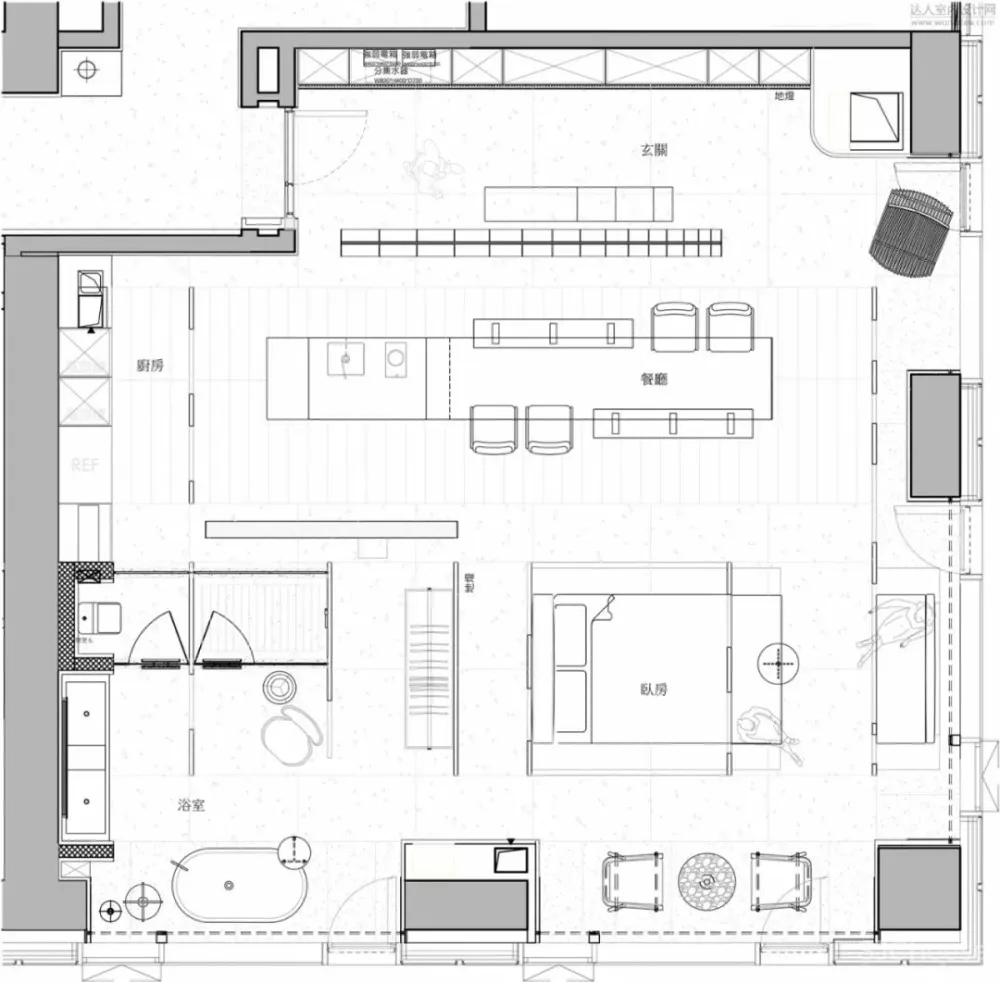
【优秀的平面图表达】
图片来源:台湾近境制作(唐忠汉)

这一套将线形表达演绎到极致
剪力墙、家私和地坪线性关系拉得很开
很舒服
别着急,下面都为大家准备好了
赶紧去领取吧!
↓ ↓ ↓ ↓
《 一线设计公司专属CAD模块 》
— 高级定制,严选 —

我们已为你做好签单的准备了
《 一线设计公司专属CAD模块 》
丨格式内容:CAD模块,打印线性,颜色插件丨
本资料大小共计:30 MB
部 分 鉴 赏 请 看
【资料目录】
( 部 分 展 示 )


一线CAD模块合集
( 部 分 展 示 )




谢谢分享!资料整理的很好!
谢谢分享
奈斯!
图库真好看