室内.专栏:Regal London
室内设计:Redgen Mathieson
:Redgen Mathieson
地产公司:Per Se Developments
Per Se是澳大利亚领先的住宅和商业房地产开发商之一。悠久的家族企业于1966年在堪培拉成立,并因此扩大了业务范围。
Per Se is one of Australias leading residential and commercial property developers. The long-established family business was set up in Canberra in 1966 and has since expanded its operations.
Cirrus由两座滨水大厦组成,它们是Belconnen唯一的住所,每座公寓都朝北俯瞰着Ginninderra湖的一览无余。
Cirrus consists of two waterfront towers, which are the only residences in Belconnen, each apartment overlooking Lake Ginninderra to the north.
Cirrus楼高24层,是Belconnen最高的建筑之一。
Cirrus building is 24 stories high and is one of the tallest buildings in Belconnen.
极简售楼处/sale office
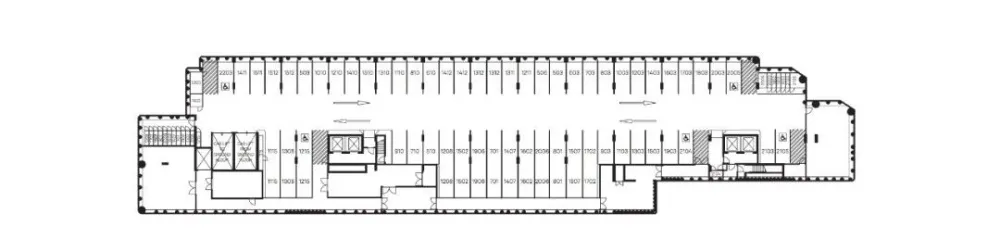
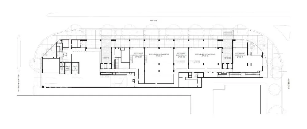
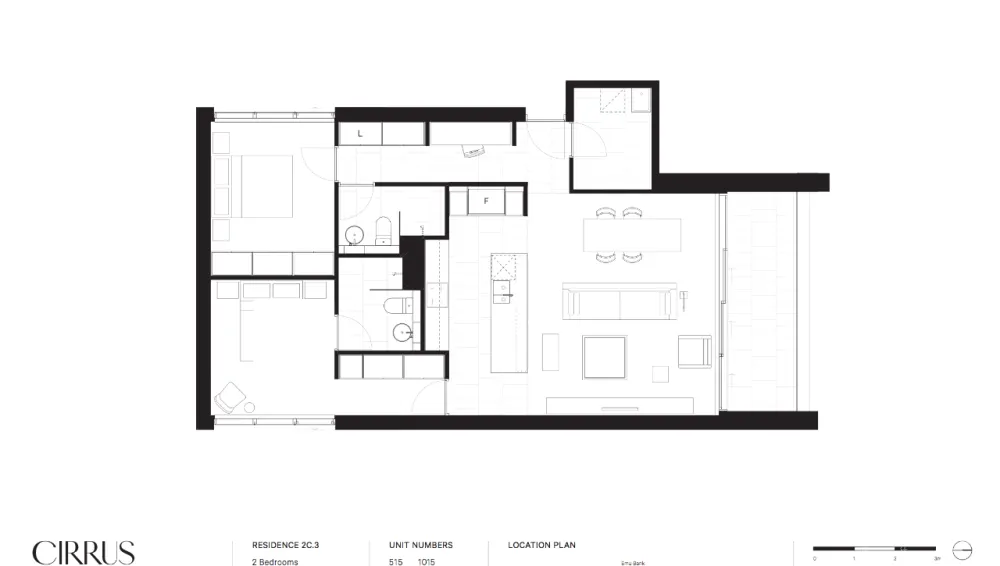
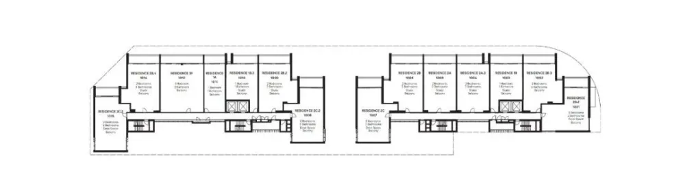
平面图 | Floor Plan

