*本文由 Urban Object URBAN私宅设计所 投稿并授权时刻设计网及其所属平台发布,点击此处 立即投稿,曝光快人一步!
The Photographer’s
米兰摄影师公寓
About
项目简介
A young Italian photographer picked upan old apartment in downtown Milan as his private home and studio, which raisean imagination of an exclusive self-land within the most fashionable city.URBAN designers, then, tried to undertake the renovation, creating a home spacewhich can be as cozy as a home, which be so pure that could encourage creationinspiration.
一位年轻的意大利摄影师选择了米兰闹市区的一套旧公寓作为自己的工作室和住所,摩登之都下的一处私人净土,URBAN设计师决定提供一个既有家的舒适氛围,又纯净留白得足以让创作者得以发挥灵感的空间。

Pre-existing Condition
改造前的房子

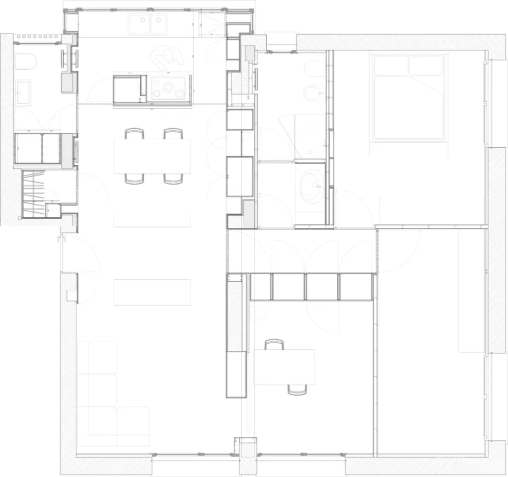
Pre-existing Layout
原始平面图

Designed Layout
设计平面图

Elevation Sequence
空间序列
For any apartment, a considerate design can greatlyhelp improving the psychological comfort of those people who live inside theroom. One of the biggest challenges in renovating this centrally locatedthree-bedroom apartment, is how to improve the grooming interior environment ofthe house, and make more use of natural daylight to make the house much moretransparent, bright, natural and functional.
对与住宅而言,贴心的设计可以增强居住者的居住心理舒适度。对于改造这套位于市中心的三居室住宅来说,最大的难点莫过于如何尽最大可能改善房子昏暗复杂的室内环境,更多地利用自然采光,让房子空间通透、明亮、自然、实用起来。

After & Before
改造后与改造前
White partition has made the interior environmentbecome much brighter. An independent block locates in the middle of the roomhelps not only separating the kitchen area, but also allowing the naturalsunlight penetrating into the heart of the living area.
全屋白色的主色调让房间瞬间明亮了不少,用局部分隔的方式将厨房分隔开,既保留了厨房区域的独立性,也让自然光线渗透到了公寓内部。



The partition between public area and private studioand bedroom is multi-functional. It is only a partition, a display wall, butalso a storage with amazing archive capability. It can also become aever-changing program according to the mood and need of the photographer.
公共区域与私密工作休憩区域的分隔墙不仅具有分隔,展示的作用,同时还是一个容量惊人的储藏空间。根据摄影师的心情与使用需求,装饰与功能可以达到一种多变的状态。

项目信息
项目地址 | 意大利米兰
服务内容 | 室内全案托管
项目规模 | 100平方米
执行机构 | URBANObject | URBAN私宅设计所
项目团队 | RuggeroBaldasso,Evelyn Chan
推文排版 | 施星澜



现在这个浮躁的世界,能细心整理一些东西发上来的越来越少了。要么就是敷衍的图片,要么就是枯燥的文字。之后就是AI生成的预制菜类的打包便捷快餐了。感谢楼主的分享,让我能在大智能无人化来临之前,看到同类发出的项目。有幸与您互动,缘分2
是不是一直复制,人就会变懒,变笨,第一次的复制粘贴,可能还略带羞赧,第二次再复制,内心的自责就少了一分,第三次毫不犹豫的ctrl+v 是那么的心安理得。回头一看,重复的留言已经700多条了。心安理得么?得到了什么呢?
人生本就短暂,走了除了家里三代人能记得,谁有会记得谁呢?反倒是这数字世界会多多少少留下我们的印记,然而周而复始的评论终究无法让人看上一眼,注定成为网络垃圾。
宝剑锋从磨砺出,梅花香自苦寒来。
重复的点评论做任务,发现已经开始有已经评论过的帖子出现了,越来越频繁。看到自己千篇一律的水贴突然感觉很羞愧啊。再这样下去,给我水贴完成每日任务的帖子就不多了。
😊
简约风
漂亮
好