1991年创建李玮珉建筑师事务所,1995年成立上海越界室内装修工程顾问股份有限公司。作为成立近30年的知名设计公司,他的作品涵盖了:涵盖都市设计、建筑与室内设计,并擅长高档住宅、博物馆、办公室到酒店等等。曾打造中央研究院、总统府、ING案安泰人寿、雅虎YAHOO、GIORGIO ARMANI等顶尖项目。
青年时代的李玮珉,疯狂地迷恋过摄影。在台湾念大学期间,还曾经兼职为杂志做一些摄影的工作。后来去旅行,也会每次带着相机。李玮珉的旅行,是真正的轻松出行,甚至没有计划。或者在某个周末,发现一个工作的空当,就径直去了日本。他说,因为去过的地方太多了,猎奇的心理早已没有。
后来随着年岁渐长,感性慢慢趋向理性,李玮珉学会更多地将感情倾注在自己的设计之中。他开始相信,设计师的理想和设计案的服务性不能分割。
那便是他一直强调的诚恳。现在的李玮珉,在台湾和内地的事业都平稳顺利地发展。他承认自己基本上算是一个工作狂,又或者说,对设计是发自内心地喜爱。
台湾建筑师李玮珉,已经鲜少在公众场合露面,网络上除了漫长的陈年情史,极少有作品推介,公司网页也久未更新内容,在设计界注重品牌、形象、包装的当下,似乎有些不合时宜。
李玮珉,身材高大,笑容温暖,看起来远远小于实际年龄。也许是早年喜爱文学的缘故,这个从业多年,经验和成果都很丰富的设计师,一直保持有内心的敏感和某种固执。
比如,他会用很长的时间来谈论巴赫的独奏大提琴的和音乐家相对凶悍的太太,并且神情雀跃;会用诚恳来形容某幢建筑物;回忆起早年在美国求学的经历,也充满了对青春的缅怀和淡淡伤感。那应该是他最美好的记忆。
他认为,无论是艺术家、建筑师还是商人,都会有自己的一个专业理念,支撑这个理念的是其个人的核心价值观,而这个核心价值观的形成,甚至是早于专业学习的,也许是从童年时代就开始慢慢累积了。
小时候读中国文学,背《古文观止》,这些看起来和建筑毫无关系的成长经历,其实和日后的建筑创作多多少少是有关系的。
他主张每一份设计都应该包含设计师对自身文化最好的诠释,也是文化积淀的产物。对他而言,建筑是可以放弃的,因为它只是一个平台,但是对于文化的认知和延续,是永不放弃的目的。
李玮珉记忆最深的,是毕业后在纽约工作的几年。建筑设计起步的时候,非常辛苦,并且报酬有限,但是我每天都很快乐。由衷的快乐。
他住在格林威治村,周末的时候,在早晨去逛pub。那个时候,世界各地的观光客在烂醉之后刚刚散去,正在打扫的waiter会把凳子为你从酒桌上取下来,四周很安静,空气清新,他就着最新鲜的贝果喝一杯咖啡,最是享受。到了中午,朋友们都起床了,大家再相约到村里听现场的爵士演出,海阔天空地闲聊。
近年,李玮珉在妻子的支持下,又重新回到内地发展,他利用以前的关系网,很快他的事业就达到了顶峰期,在之前还以第六名的成绩名列十大杰出建筑师据悉现在的设计费不输一个二线的演员出场费。
汉京半山公馆位于深圳市南山区前海中心小南山,以半山的姿态坐拥良好的山海景观,享有城市无可复制的清丽舒适。设计师李玮珉希望延续这一感知,呈现现代生活向往的样子:简约形式、艺术表达、人文气质、优雅都市。
深圳汉京九榕台别墅,并不是他与项目的第一次合作,但较于之前的7#B样板间,6#F别墅在面积和采光方面的自身条件相对不利,所以选择‘解构重组’:再设计梳理整个空间流线,尽可能地引入光,流通灵动之余,重在宁静与平和。
设计不是一种技能,而是捕捉事物本质的感觉能力和洞察能力。
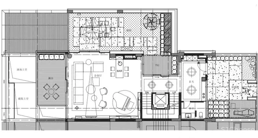
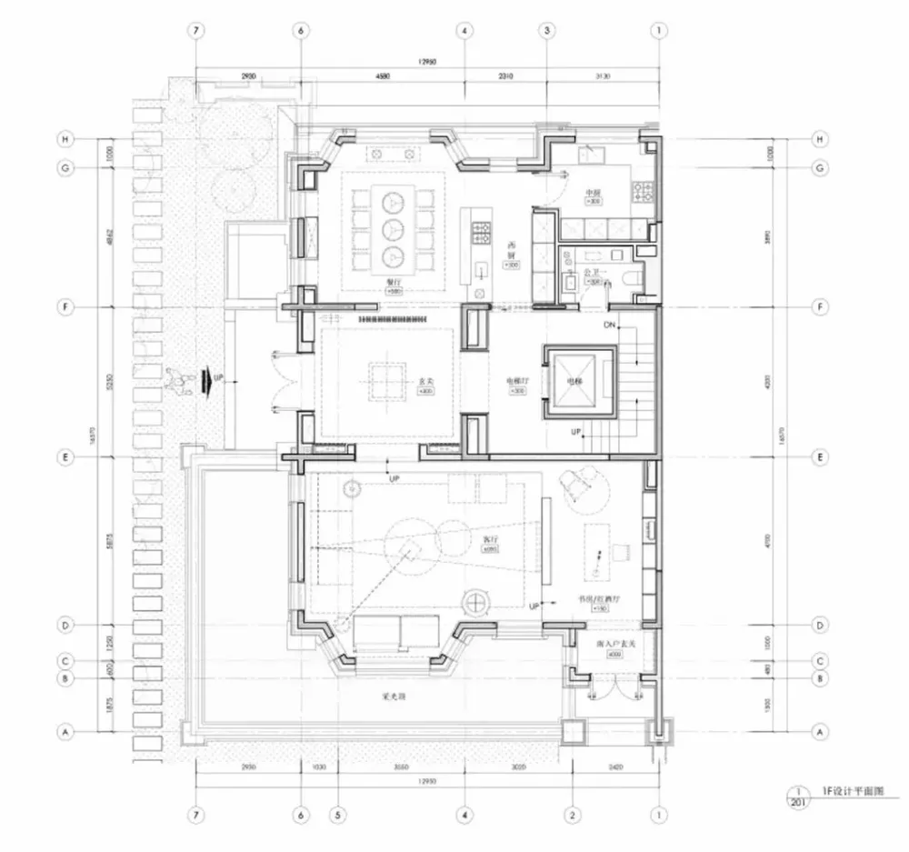
1F会客厅,李玮珉将原有空间中左右两侧的厨房和餐厅移至地下一层,通过这一改造框定出宽敞大气的空间氛围。此外,配合建筑本身两面高的玻璃帷幕、6米挑高天花、以及主墙面一整面白色花纹石材和金属,令阳光有的放矢,通透尽显。
“当阳光照在白墙上,更适合沉浸在自己的世界里,流露出最真实的状态。”他说。这是‘居’的第一层要义。
原有的厨房餐厅空间,被设计为会客吧台区和休闲区,让其具有足够的开放性,即能满足多人的会客功能,又能让别墅的主人赋予它戏剧性的变化。
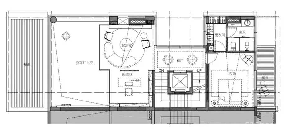
2F的起居间和阅读区宛若架构在一层挑空中的方格子,赋室内一种建筑感。站在通透的落地玻璃帷幕旁,可以欣赏高挑空的会客厅;而百叶帘的存在又使这种对应关系含蓄起来。
午未时候的阳光,澄黄一片,由窗棂横浸到室内,晶莹地四处射。我有点发怔,看它洁净地映到桌上时,感到桌面上平铺着一种恬静,一种精神上的豪兴,情趣上的闲逸。
——林徽因《一片阳光》
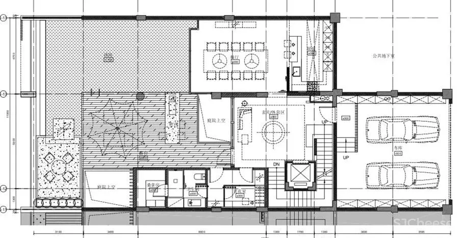
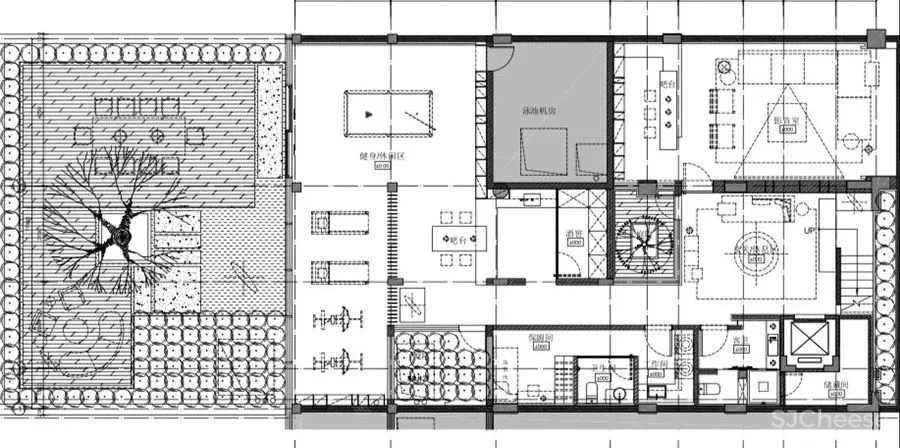
-1F拥有餐厅厨房、车库、更衣间和户外泳池,功能区域多且又处地下,于是重组和采光便成了一切设计的基石。比如在厨房上方增加了到达1F庭院的自动天窗,当阳光洒下便会有律动的光影。
这种光影的惬意在餐厅及泳池区也有体现。二者仅由一段玻璃幕墙相隔,另有泳池的水波纹映射到餐厅天花上,折射出的光影变化。而拥有半户外休憩平台和无边泳池,也成了这个项目的最大亮点。
嘉格纳200系列烤箱水平嵌入橱柜,接缝光滑,犹如一体。无论是精致设计的爱好者,还是资深美食家,都创造一种极佳的烹饪体验。
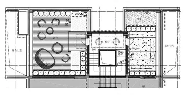
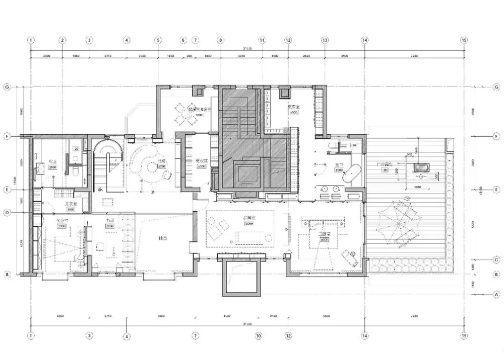
-2F为整栋别墅活跃性最强的一层,品酒、健身、娱乐汇聚一体。具有恒温条件的酒窖,超强视觉体验的影音室,各式各样的健身器材。
浮世喧嚣,或许我们需要一处简单的美好,可以卸下各种社会角色,让所有的浮华,都变成清欢。对比客厅‘当阳光照在白墙上’,这里是李玮珉认为的关于居的另一层要义,一种回归。
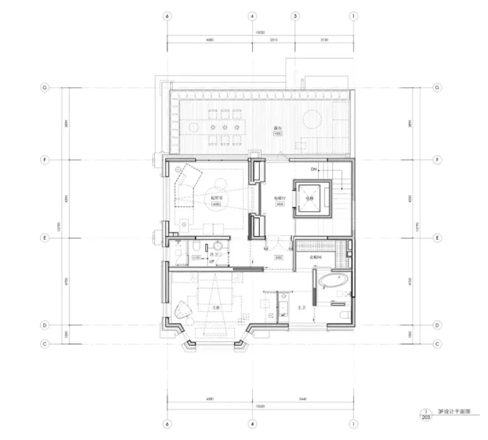
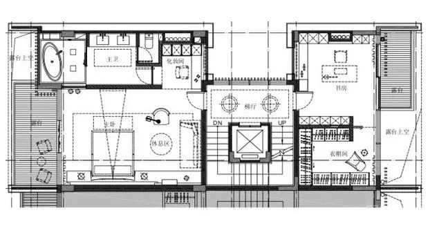
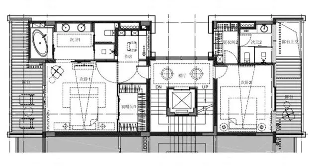
4F整层都是主人的使用空间,主打舒适以及安静私密。主卧室空间布局上有所变化,他将更衣间和书房合并在北面的房间,南面则单为居住,更加纯粹。
主卧室床头背景采用浅米色调的皮革结合金属铜与浅色橡木的床背板,平添一种奢华简约之感。
就好像老舍先生理想中的房子:不需奢华,空间大就好,有时候简素也是一种美。
主卧卫生间同样采用浅色系的材料,为了空间更为宽敞明亮,也为了营造氛围放下内心,安放灵魂。
“我们采用现代简约风格,让所有的细节看上去都非常简洁,大气。从简单舒适中体现生活的精致。”
但在3F的客卧区,以丰富别墅空间的质感,呈现静默的美感,创造一个含蓄内敛的生活氛围。其实,最好的家是清风明月为友的心安处,与自然为邻,却也活在生活里。
项目名称:深圳汉京九榕台别墅6#F户型样板房
开发建商 : 汉京集团
项目面积 : 990平米
完工时间 : 2018.
设计公司 : 李玮珉建筑师事务所 上海越界建筑设计咨询有限公司
设计参与 : 杨林、刘翔、代静、刘金
软装设计 : 谈永琴、孙芳
施工团队 : 深圳博业装饰工程有限公司
一幢住宅为我们遮蔽风雨,从喧嚣都市划出家的领域,艺术的生活由此展开。入户白墙徐徐展开,如国画立轴的展示区,插花从墙面壁龛蓬勃出来欢迎主人回家。
磨砂玻璃背后的更衣间提供了充足的储存空间,室内设计师操作的对象是功能区域,如何无形转换串联,整理空间的基因形成风格。
在上海徐汇区闹中取静的湖南路,周围浓密茂盛的梧桐树围绕着两栋法式后现代建筑,内部是下沉式庭院,一共仅35席住户。业主青睐李玮珉先生设计中一贯的简洁精致,邀请他完成居住梦想。
设计团队大量研习著名住宅的布局:从比利时的GENETS3 HOUSES到 法国的ALON HOUSES,以及西班牙的AZIBI HOUSES,提炼出设计精髓,让空间塑造成灵动的当代经典。
考虑到建筑空间的气氛和色彩把控,空间构成组合的张弛有度,设计语言表述得到答案:一座白色房子,一层公共区域招待亲友,二层为私密起居得赏四季风景。
设计师对于空间熟练的剪裁缝合,娴熟到游刃有余,毫无滞涩。空间中围隔物的移动都改变着空间样式,魔术般变换着空间的表情。
地毯色彩斑斓的配色和B-B沙发的高冷色调对撞交融,形成客厅区域的中心。蒙德里安式的几何抽象从地毯变换到茶几的造型上,体块分明凹凸有致,在大空间形成聚焦点。
多功能室是最善变的,屏风的不同推拉方式,空间随形就势,捭阖有道,视觉上则可隔可透。别具东方意境的拉门设计成隐密的入口,不见其人只闻其声。
空间操作上,理性主义的精打细算叠加成极简的冷峻表情,白为底图,直线、弧、散落的圆平衡摆布成立面,以尺规作图的方式划出边界,形成冷抽象绘画。
方正的吧台与圆融的餐厅形成对应,一正一圆增加了空间的对比和张力,材质与整个空间的木作一致,保持质感的单纯。
圆形吊顶覆盖金箔,空调出风口嵌入吊顶外圈凹槽,调节温度的同时注重了美观。保尔·汉宁森(Poul Henningsen)PH松果灯,点亮整个空间,微妙的光线,透出对大自然的理解和转化。
莫听穿林打叶声,何妨吟啸且徐行”,东坡公总是快意潇洒。在项目里,围绕楼梯也有一片疏疏落落的“竹林”,在室内营造出文人意趣,可谓“一蓑烟雨任平生”。
楼梯间在空间中是特殊的存在,作为垂直交通的功能组件,它直接联立其楼层的转换,打开楼板插入在空间中,突破循规蹈矩的秩序。交通的专属特性,赋予它流动性,与空间的安静形成对比。
从悬浮的起步平台到栏杆扶手的细节处理一丝不苟,半圆的转弯继承了萨伏伊别墅楼梯的优雅,木饰面则更多了温暖手感和平滑自然。
进入二层空间,私密的生活方式逐渐展开,多功能室上方营造了书房,开合的格栅旋转门增加了书房与挑空区域的对话,立面上造型的变化也让挑空区视觉上充满更多可能。
精巧的书房一展主人才情,外可眺望院落,对景则遥相呼应主卧室起居室,在白色空间中植入温暖的木作空间,具有极强的包容感和兼容性。
电梯直达二层中心——主卧起居室。超大主卧套房融合起居和睡眠两个功能,以木屏风分开相应成趣。
主浴与主卧间的通透,整面金属玻璃夹纱的柜体与屏风,与主卧起居室间串联起来,形成开敞中有细节的套房。到顶收藏展示架可以容纳满满的鞋子和包, 如精品店的display,都展现着主人的优雅品味 。
有趣的双圆型化饰镜,透明玻璃后睡眠区一览无余,整体私密空间中的小部分通透,都基于设计师处理空间的大胆和自信,黑白马赛克传承着古典的手艺又不失现代的优雅。
菲利普·斯塔克为AXOR设计的树枝龙头(Starck Organic),如同美丽的枝桠渡过寒冬,备足一季的能量,等待发芽迎接又一个春天。
空间就是一种关系性,设计师试图在创造一种充满生命力的存在方式,就如同某种意向之外却被预见的住宅精髓,重新诠释形式,使空间能够为物质、身体维度和逻辑维度同处共生。
项目名称:上海陈公馆顶级豪宅
设计公司:李玮珉建筑师事务所 上海越界建筑设计咨询有限公司
设计参与:李玮珉,刘涛,高明明,刘苁苁,熊莉
效果图面:郑人搏,曹彦,谷怡君,苏彪,张寒冰
施工团队:上海南海工程有限公司
北京鸿坤・林语墅滨水别墅
近30年的设计经历让李玮珉觉得越简约,越能看出事物本身的面相。这也是他打造鸿坤・林语墅的开始,从整体布局到立体设计皆去芜存菁,每处看似无奇的工序其实都隐藏着设计的思考。
理石纹路缠绕冷艳,留白艺术明净风雅,金咖色盘衍生性感。他笔下的林语墅别墅样板间,像一个外表淡然内心浴火的艺术家,既满足现代社会的生活方式,又带有人文气质的大度与优雅。
且这一感知,从入口便已经开始,玄关兼顾实用性与美感,天圆地方的造型,给人一种肃穆而静逸的仪式感。
通往客厅,是个下沉式的生活空间,大面积的开窗,清澈而明亮,日复一日向里注入蓬勃朝气,并把外部景观引入室内,可一览无余地欣赏周围的景观。
客厅设计偏向舒适的功能性,墙体以黑色石材打底又与金属线条创造勾缝层次,天花则采用极具当代特质的胡桃木和金属灯槽搭配,间接照明凸显节奏感。
家具款式呼应空间的简洁,线条亦十分直接、干脆,似乎没有一丝多余,看似不经意,却浑然天成。
另外,客厅的电视墙是不落地的悬挂设计,将厚重视觉轻量化,大面的玉石铺贴,让墙面宛若一件正在展示的大型艺术品,温和又富于质感。
该悬挂墙还起到了分割空间之用,电视墙后的书房作为在客厅空间背后的附属区域,在强调了空间节奏感和主次关系的同时,也让整个客厅更添几分宁静与静穆的意味。
与之相连的餐厅以玫瑰金百叶为隔断,欲开又合,通透也私密,为体块空间的串联增加层次。
城市本身灰尘较多,零碎物件对后期清扫维护极不便利,而繁复的线条则多出于当下时尚或为了掩盖简陋的工艺,易过时。因此我选择体块感强、线条简练的设计架构。
楼梯间的简约通过墙面暗藏式石材扶手创造一道空间视觉的动线指引和内置LED间接光源细节,以及线型踢脚灯来丰富,简约亦不失简单。
为了让设计更具持久性,避免落入‘流行色’的消费主义圈套,设计师以黑白灰为主色,干净的背景可使家具、装饰、光线甚至是艺术、情感更为突出,这也是简约的最大意义。
二层、三层主要为供家庭内部使用的主人房、老人房、儿童房、书房,设计手法以体现舒适性、私密性为主,最终让设计的意图与手法让位于生活。
卫生间与起居室相连,以半透明夹丝玻璃完成空间转换,并透过玻璃的穿透性,让空间与空间相互延伸。个体功能上独立的同时增强了空间的延续性。
书房与起居室用木百叶移门相隔,通过移门的开合,创造出灵动的空间组合,使空间既可融为一体,也可单独使用。
两区墙面均采用优雅知性的白木纹石来完成空间的统一性及延续性。
主卧室位于三层,其层高不同于其他卧室的奢华高度3m,设计上也是采用了极简的手法,床背景使用略带肌理感的布料打造出触觉的背景。
在空间规划上,设计的一切都基于对生活的理解:家庭伦理的次序和人情的温度。继而结合到现代居住环境和空间格局之中,探索空间秩序和几何比例,使其呈现出简单自然的元素,予居住者一种真正的生活方式。
B1F主要是一些娱乐功能的休闲空间,也是每个家庭成员制造快乐记忆的共同场所。穿过走廊深入内部,每个空间依次展开,从开放到封闭,再到半开放,每个动线都被精心安排贯穿。
这里的点睛之笔,莫不过承启茶室跟藏品室之间的发光玉石墙,宛如上演光影角逐;插花柔情似水的高雅情怀,暗放氤氲清香。
借以美学的视角,搭建家具间一气呵成的体块关系,从视觉、听觉、嗅觉堆砌丰富而多元的情感空间。
还有家庭SPA室,墙面满贴条状观音石,天花地坪大面积以原木饰面装点,对开木百叶折叠门,透光不透视,共同营造出轻松自在的原生态氛围。 李玮珉说。
多功能室位于B2层,这是一个贯通酒吧与会谈的大空间,构成了其体验架构,便于聚会互动且开敞舒适。
多功能室大面积采用了编织皮革,柜内背衬壁布,细腻有质感。酒吧台更是温润剔透的玉石。
这里特别设置了下沉露台,水景玻璃顶,阳光透过水池波光粼粼的照在素净的石材墙上,让人不由想到一句话:房子,有光,才能供灵魂静修!如此设计,也于某种程度上贴合了大众对于李玮珉的评价:随意、自然、充满丰富的想象力。
项目名称:北京鸿坤・林语墅滨水别墅
开发建商 : 鸿坤集团
项目面积 : 680平米
完工时间 : 2018.09
设计公司 : 李玮珉建筑师事务所 上海越界建筑设计咨询有限公司
设计参与 : 李玮珉、杨林、俞昌靖、赵枫、刘金
效果图面 : 郑人搏、曹彦、李志银、瞿娇娇
软装设计 : 谈永琴 、季飞帆
摄影团队 : Boris Shiu

