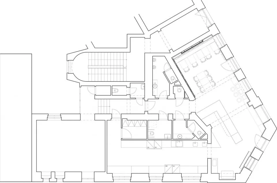
捷克布拉格新开了一家墨西哥餐厅Burrito Loco,它的特色是仙人掌主题。Burrito Loco是一家墨西哥风情连锁快餐厅,它在布拉格有着悠久的历史。这家Burrito Loco餐厅由Formafatal工作室设计,仙人掌元素在空间里以各种各样的形式出现,如墙面,艺术装置和雕塑等。
photos © Jakub Skokan and Martin Tuma / BoysPlayNice
本文内容来源于:Loft中国
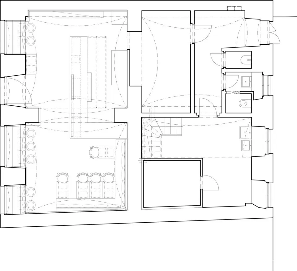
捷克布拉格新开了一家墨西哥餐厅Burrito Loco,它的特色是仙人掌主题。Burrito Loco是一家墨西哥风情连锁快餐厅,它在布拉格有着悠久的历史。这家Burrito Loco餐厅由Formafatal工作室设计,仙人掌元素在空间里以各种各样的形式出现,如墙面,艺术装置和雕塑等。
photos © Jakub Skokan and Martin Tuma / BoysPlayNice
本文内容来源于:Loft中国
之前







