THE BOX OF TWINKIES
图文资料 | 无垠设计
项目类型 | 商业空间
本案位于杭州馒头山社区的凤山·拾遗创意园内。
整个园区充满浓郁的文艺气息,而我们设计的店铺就位于园区东南门入口处。业主把闲置的保安亭一并租下,计划将这里打造成“欢牛蛋糕屋工厂店”,成为园区中的下午茶休闲打卡圣地。
▲1966年成立的杭州电焊条厂,于2015年引入创新转型机制,电焊条厂搬去其他地方,而这里则改造成了凤山·拾遗创意园。
我们去现场勘测发现原厂房的楼梯、外墙无法拆改。整体的采光、通风功能、动线都受到了极大的局限。经过多次沟通,商讨后
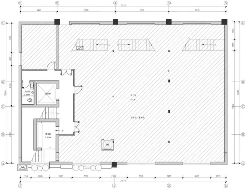
确定把三层的空间做了功能规划:一层主零售,二层主工厂,三层主休闲。
商业空间最重要的就是动线的设计,它看似无形,却定义了商业行为的有效性及效率。在本案中,我们
以楼梯为空间交互的枢纽
,将三层空间紧密地联系互动起来,增设货梯将工厂和零售区紧密对接,提高送餐效率。
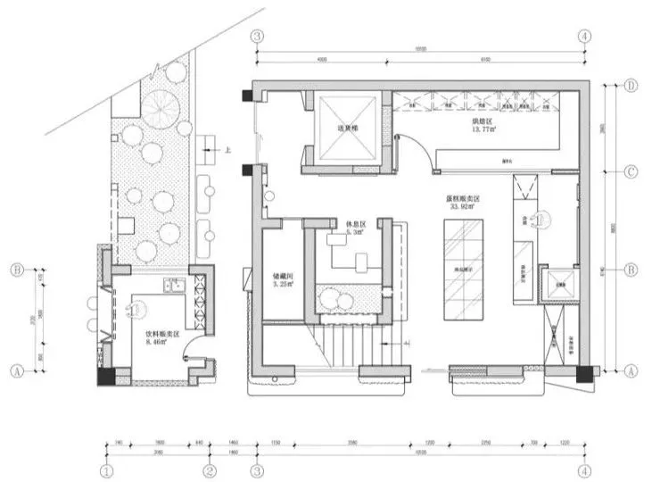
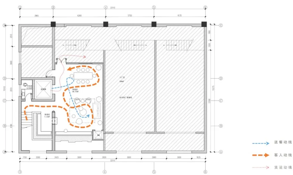
本案的一楼,其动线分为外部动线和内部动线两部分。这里考虑外部动线,是因为一楼的空间有限,烘焙区、楼梯间、隔墙、楼梯以及电梯等占用了大部分空间。
我们把之前保安厅的位置改成临街的水吧亭,将水吧、饮品的部分纳入进来,在即便不做招牌的情况下,这里也能起到引流导客的作用。
水吧亭与主楼的结合也形成了风雨连廊的灰色空间带,模糊了室内外的空间,让空间变得更加自然、包容。
在一楼售卖区与通往二楼的楼梯之间,有一个L型夹角,我们
在这里内置了一个白色方盒形态的休息区
,增加绿植,并在两侧墙壁上辟出一个拱形和一个垂直窄向的框景,构建空间的互动性与趣味性。
作为欢牛蛋糕屋的工厂店,我们把二楼的空间主要留给工厂生产区。因此,在整个二楼,我们只将必要的通道及少量的办公区留出来。
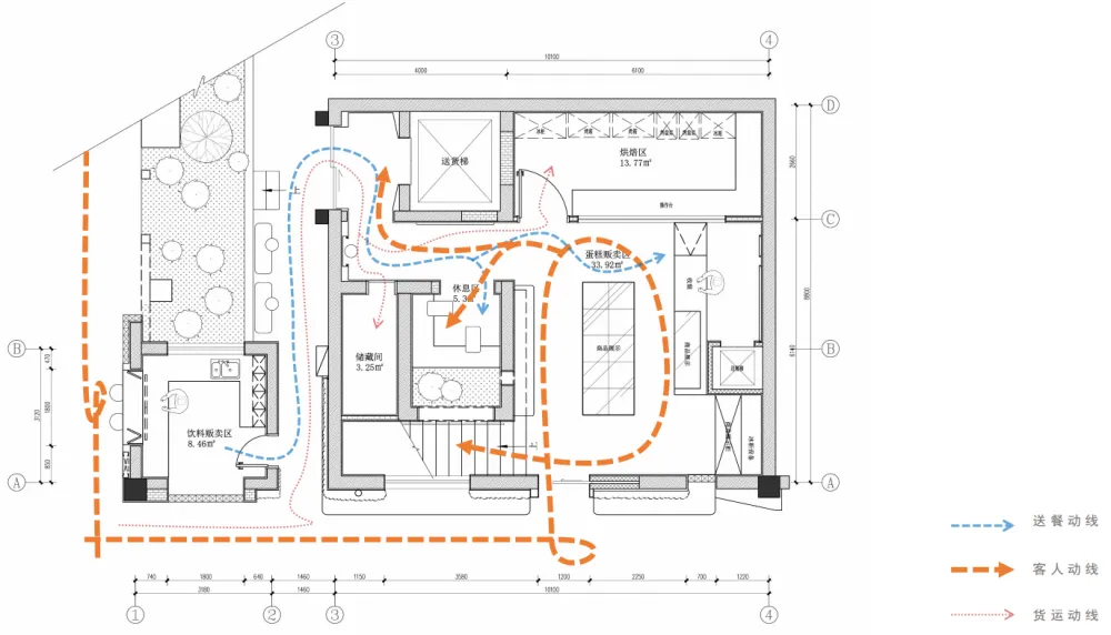
另外因为是工厂店所以店铺有个货物运输的通道。按这些功能区安排以最高效,便捷的运动路线是我们的侧重点。
▲ 从一楼通往二楼的交通动线
就这样,我们弱化了二楼空间的容纳性,而增强了二楼的过渡性功能。
在路径的设计上,我们营造了一些小的休憩式场景,以此完成二楼作为交通节点的停顿
,让客人在一步一景的引导下,向三楼的空间探索,营造一种先抑后扬的空间体验。
▲ 二楼以及从二楼通往三楼的交通动线
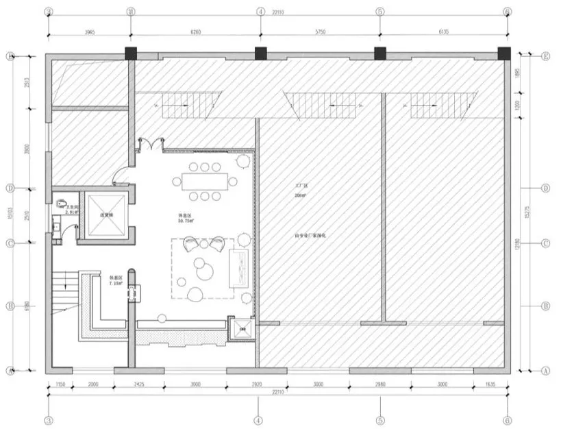
三楼由一个阁楼式的休闲用餐区与安全分隔开来的工厂区组成。
我们为已经熟悉空间格局的老顾客以及不愿意走楼梯的客人,设置了一键直达三楼的电梯,同时也兼顾了货运及送餐的便捷性;而探索型的客人依然可以通过漫游的方式,沿着楼梯自然地进入二楼和三楼。
三楼空间,相较于一路而上的楼梯与走道而言,是豁然开朗的另一种空间感受。
整体空间色彩的明亮性及通透性给人以慵懒之感,坡顶的阁楼式设计,安静而有温度,
暗示了空间的驻足、停留以及好友小聚的意味
,由此也便有了二次消费的欲望。
▲在三楼的休闲区,90后的业主和她的小儿子
我们认为建筑无论外空间或内空间都有它的情感。空间的使用者理解感受空间历经的岁月而积淀的情感,重新赋予空间新的表情。
我们设计的时候发现楼梯核心筒不能拆,承重墙和外立面墙体形成一种像蛋糕盒子的体量感。
因此,我们把蛋糕屋的外立面改造成蛋糕盒的形式,将室内的楼梯核心筒塑造成铺满白色奶油的蛋糕胚,空间里的人和物件,象征着蛋糕的果粒,人和空间交融在一起,赋予空间新的表情。
进入空间的那刻开始,层层拆开蛋糕盒似的惊喜感,搅拌器、奶滴、糖珠融于白色的空间里,让空间像奶油一般的温柔。人、物被温柔地包裹在“蛋糕”空间里。
ABOUT PROJECT
项目名称:欢牛蛋糕屋(馒头山店)
项目地址:杭州上城区凤山拾遗创意园
项目设计:无垠设计研究室
设计团队:叶阳阳、陈凯琪、金马
陈设设计:陈善武、李静文
项目摄影:瀚默视觉-麻一高
项目完工时间:2020年7月
主要用材:艺术涂料、蜂窝阳光板、芝麻白荔枝面
ABOUT DESIGNER
陈善武 / Sam Chen
致力于建筑,空间,光影,肌理,人文的设计研究。
坚持努力创造有温度,有情感的叙事空间。
编辑 | NINJIA 校对 | 大 白

