巴西建筑工作室Arquitetura Nacional改造了阿雷格里港(Porto Alegre)的一套复式公寓,使用了黑色螺旋楼梯、布里塞-索莱伊(brise-soleil)和当地采购的家具。占地635平方英尺(59平方米)的阁楼Diego坐落在最近建成的综合用途的住宅建筑中,许多居民在这里生活和工作。
该项目于2019年完工,旨在满足客户居住在更综合的空间中的愿望。为了实现这一目标,Arquitetura Nacional在入口层连接区域,并将洗衣用具整合到厨房的木制品中。
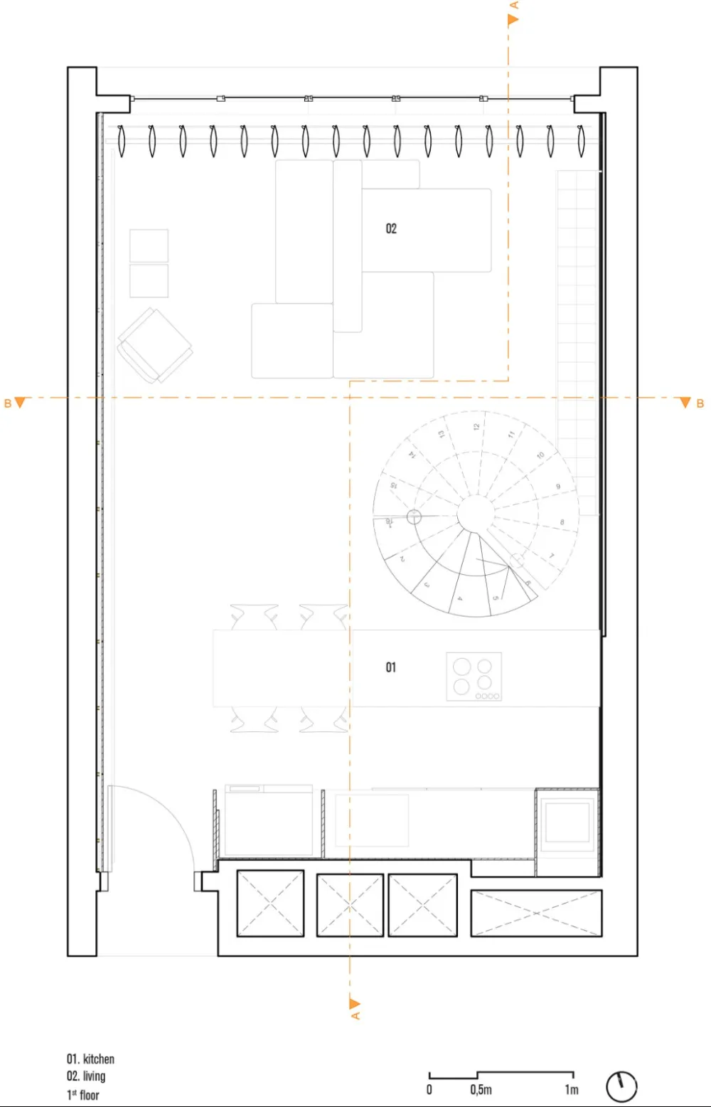
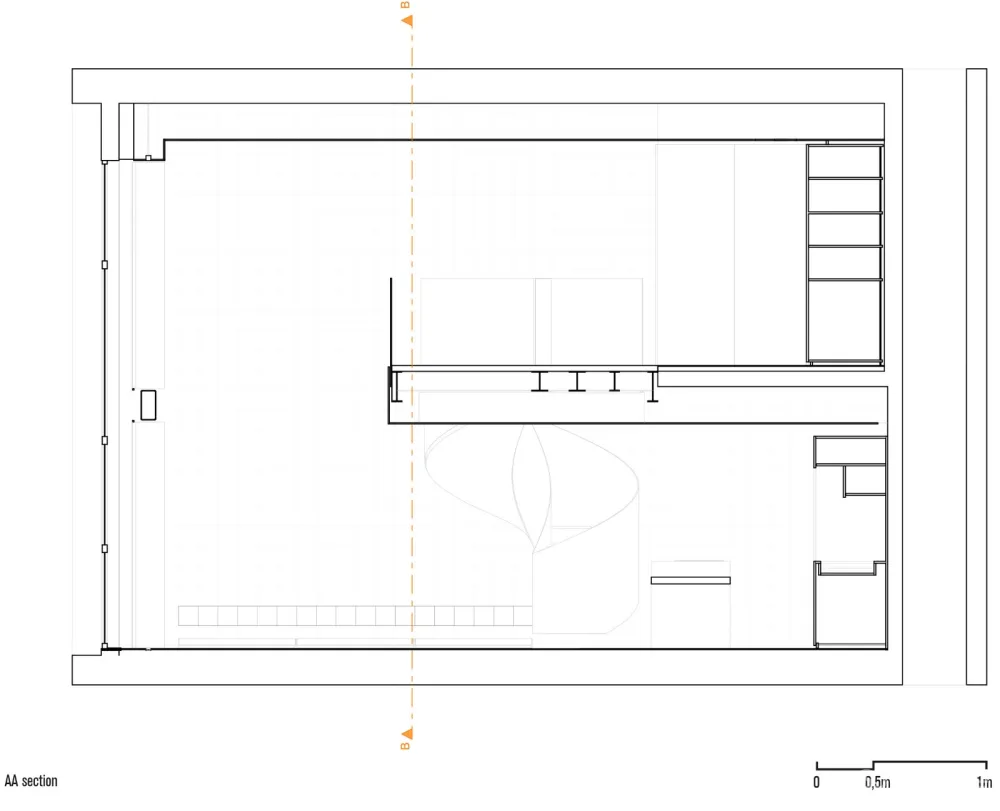
“我们正在寻找一个非常舒适的空间,但同时,简约,”Arquitetura Nacional的联合创始人宝拉奥托(Paula Otto)告诉Dezeen。“因为房子的主人有很多朋友,所以我们的想法是创造一个非常流动的空间。”在公寓的一侧,窗户延伸到两层楼高的空间。玻璃由遮阳板遮蔽,遮阳板由遥控操作,用户可以调节阁楼内的光线和氛围。
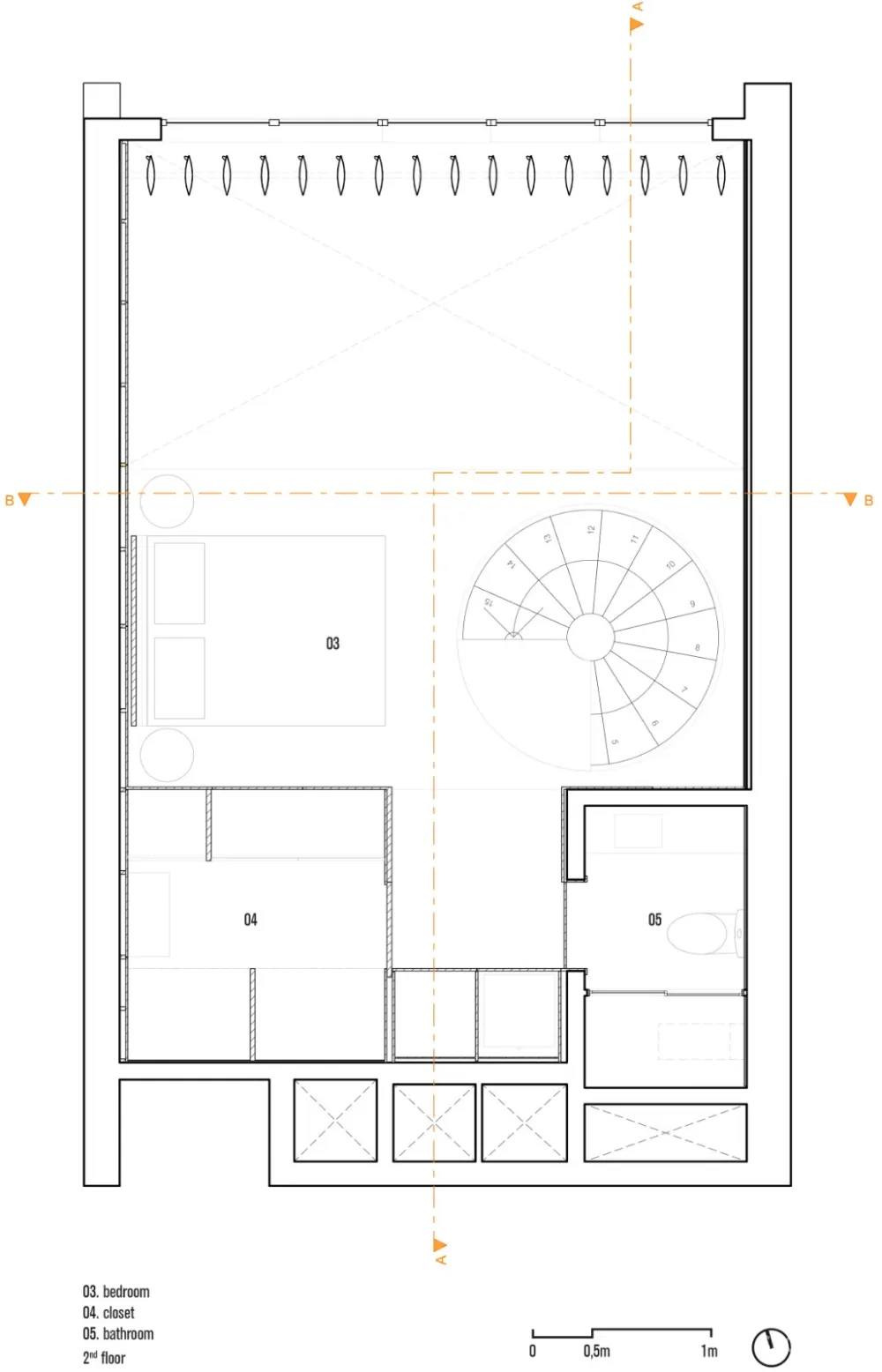
一个黑色的螺旋形楼梯位于公寓的中心,连接较低的楼层和上面的夹层。从支撑上层楼的钢结构上悬吊下来的楼梯不会触到下面的地板。楼梯是由折叠和焊接钢成所需的形状。它是在工厂组装的,并在现场用塑料覆盖和黑色油漆完成。
在上层,卧室被扩建,可以容纳一个步入式衣橱,浴室也得到了更新。建筑师的目标是通过减少材料和饰面,包括碳化木材、混凝土地板和工作室设计的水泥砖,来实现整个公寓的凝聚力。
“我们总是从巴西建筑的背景中获得灵感,”奥托说。“我们总是关注经典元素,比如墙上的瓷砖,并试图将它们带入更现代的方式。”一个双面粉色沙发作为入口楼层的焦点,服务器作为公寓的社交中心。和迭戈阁楼里的其他家具一样,它也是当地设计和生产的。
奥托说:“我们相信巴西的设计是世界上最强大的设计之一。”“就质量而言,最重要的是,它们似乎是永恒的作品。”
“作为建筑师,我们相信一个好的设计应该持续很长时间,比任何趋势都要长,”建筑师补充说。巴西人口密集的城市到处都是新老公寓楼,里面的住宅不断更新,以满足新业主的需求。其他最近翻新的例子包括一个紧凑的工作室Casa 100架构和被超级Limao industrial-style平-无论是在Sã圣保罗。
设计时间:2019年
设计公司:Arquitetura Nacional
项目位置:阿雷格里港,巴西
摄影师:Cristiano Bauce

