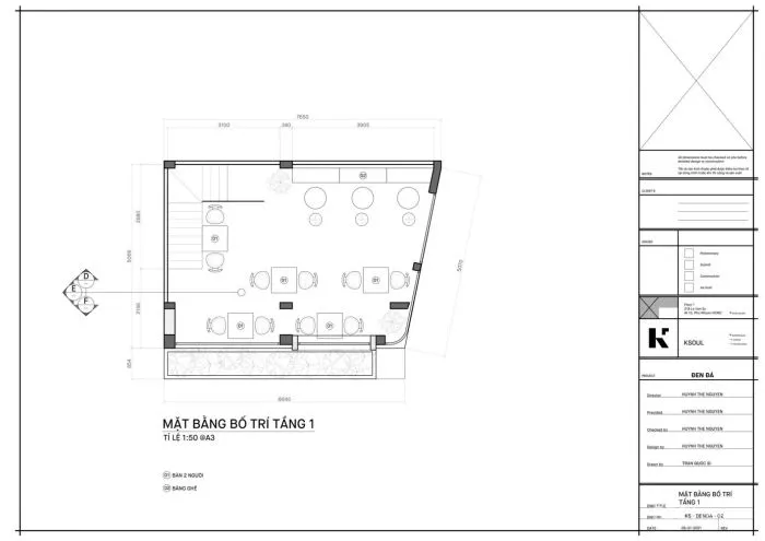
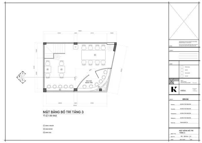
Den Da Coffee Shop
Den Da Coffee Shop 位于越南胡志明市Phu Dong 路口,这里繁忙又充满年轻气息。设计理念以老西贡形象为核心,但用新鲜的手法去诠释。
受到被年轻一代认为过时的东西的启发,KSOUL建筑事务所决定利用复古、高性能材料以及鲜艳的色彩来唤醒人们对90年代的建筑和社会图景的记忆。
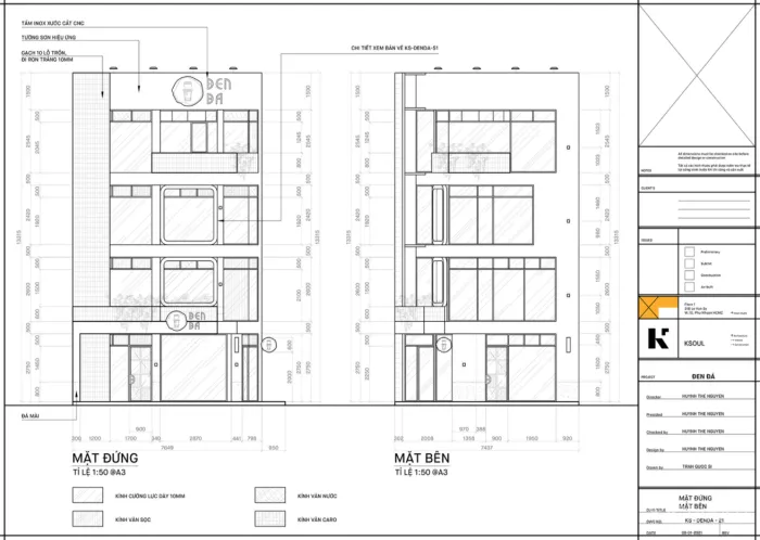
窗户的排列形状就像Nguyen Hue 步行街的 42 号楼的The Cafe Apartment(著名咖啡公寓)一样:排列有序,上下对齐。
内部空间是优雅布局着的磨石和脚踏砖,这是旧西贡住户使用的两种主要材料。吧台使用了传统的砖块,这也是KSOUL设计的一个小而特别的地方。
KSOUL在追溯复古和突破现代两者之间做了结合,例如老房子一般绿色涂层的墙壁搭配上现代橙色的霓虹灯,体现了新旧风格的碰撞。
砖瓦和软装配饰的橙红与墙壁和植物的翠绿形成鲜明的对比,非常有层次感,精致而又不含蓄。
传统而又老式的建筑在现代社会中往往会过时,KSOUL把客户想表达的核心价值观与理念具像在设计里,传达给Den Da咖啡的爱好者。在这高速发展的城市之中,新旧元素的结合代表了Den Da对自身品牌的独特理念始终如一的追求精神。
建筑事务所: KSOUL Studio 面积: 165 m² 年份: 2021 摄影: Valor Studio 施工团队: Dulux, Kohler, Dat Viet, EUROTO, MaiKa 设计团队:Ksoul Studio 客户:Den Da 国家:越南
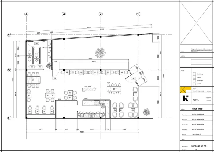
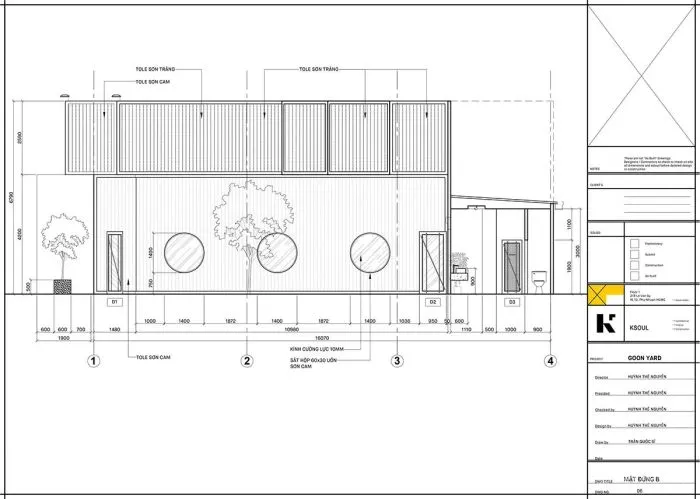
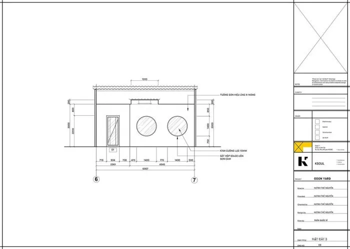
Goon Yard是KSOUL设计的另外一座咖啡厅,位于越南芹苴市。用集装箱为概念,象征着近年来芹苴市的工业发展,橙蓝色的色调在街道中相当显眼。
现代工业风的室内设计更适合城市紧凑的生活节奏,波浪外形的装饰呼应了外墙。
咖啡馆内还使用了充满科技感的霓虹灯墙,相较于以往的大落地窗,Goon Yard导入了圆窗概念,增加了趣味性。
坐在窗边可以观赏到户外的景象,连接着中庭的视野,户外的空地和室内的角落里有绿植装点,十分经典的网红店设计。
简易的桌椅能够组成多种形状,易于移动组合。墙壁上方开设的多个圆形窗户便于通风和透光,放置的全身镜可以从视觉上扩大空间感。
咖啡馆内设有独立的卫生间,沿用了橙、蓝的主色调搭配。
建筑事务所: KSOUL Studio 面积: 230 m² 年份: 2020 摄影: Valor Studio 施工团队: Dulux,Kohler,CONPA,EUROTO,MaiKa 设计团队:Ksoul Studio 客户:Goon Yard 国家:越南
在以高级灰、极简风格为高级风气的空间设计中,这样使用具有热带气质的斑斓色彩作为主色调的设计反倒成为了一股清流,徜徉在阳光中的色彩显得格外迷人。

