作为设计师一定要了解人体工程学尺寸

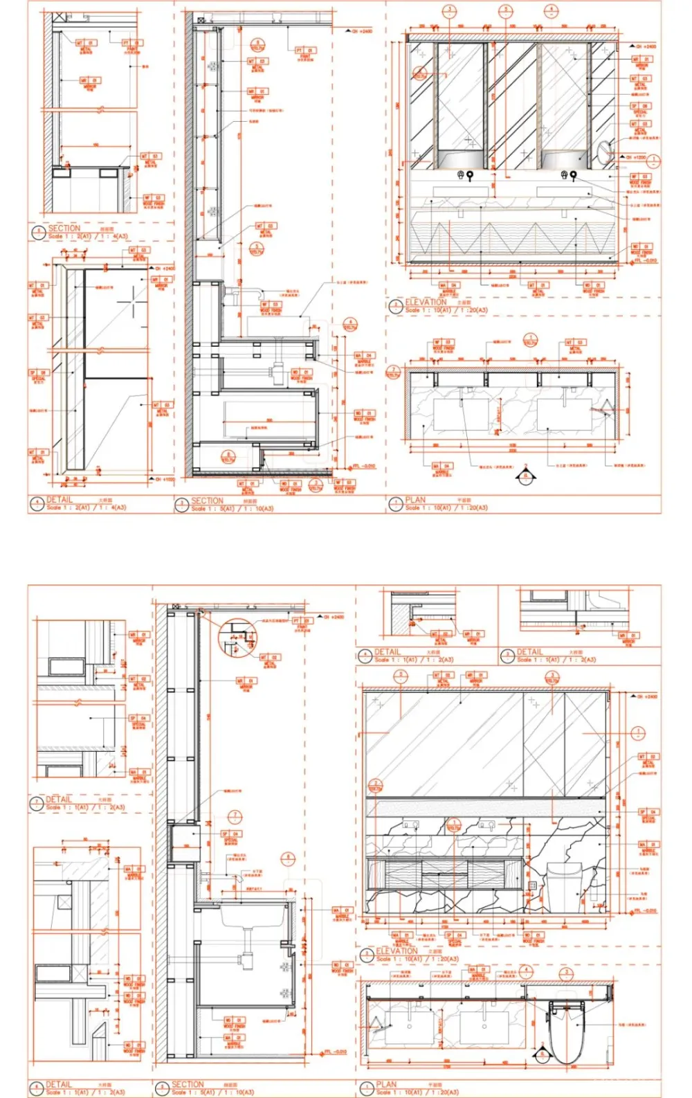
《卫生间人体工程学常用尺寸CAD+卫生间CAD节点大样+卫浴CAD动态图块(带遮罩)》
格式:CAD2007 | 大小:34 MB
资料非0图层,部分为动态块
——————–














版权声明:本文内容由用户自行发布上传或投稿由设计芝士代为发布,版权归原作者所有,设计芝士不拥有其著作权,亦不承担相应法律责任。如果您发现本站中有涉嫌抄袭或侵权的内容,请点此提交工单进行举报,一经查实,本站将立刻删除涉嫌侵权内容。
    作为设计师一定要了解人体工程学尺寸

《卫生间人体工程学常用尺寸CAD+卫生间CAD节点大样+卫浴CAD动态图块(带遮罩)》
格式:CAD2007 | 大小:34 MB
资料非0图层,部分为动态块
——————–














谢谢分享
謝謝你的資源