QU烤肉酒馆位于上海五角场闹市区,且主要以夜宵为主要经营模式。设计概念以“戏剧舞台”来展开,用新艺术元素砌成的砖块建筑,用红色光影作为主视觉基调。空间分为主要两个“盒子”,即楼梯为舞台的登场梯台,中心就餐区即为食客“表演”的舞台场景。
▲入口楼梯与前厅整体概览©Dazhuang
通过前厅的楼梯上来,用做旧冷轧钢板作为分界的扶手,切割的镂空圆孔状在解决实际动作功能时结合了光影也提升了美观度。顶上整块的镜面材质运用让用餐者仿佛置入一个神秘空间,人在行走的同时反射到顶面的状态也是一个“表演”的场景。
▲楼梯间 ©Dazhuang
▲楼梯为舞台的登场梯台 ©Dazhuang
▲空心砌块砖与镜面天花板 ©Dazhuang
▲扶手细部 ©Dazhuang
秉持着创造有秩序感空间的理念,希望为空间赋予更多的精神内涵,结合了空间的功能与餐饮用餐属性,以光、能量、平衡等元素打造一个富有神秘氛围空间。
▲由楼梯前厅看用餐区 ©Dazhuang
▲富有神秘感的空间氛围 ©Dazhuang
舞台中心区域用乱纹不锈钢做了一个盒子,在用餐者在移步的场景中进行切换,为此塑造一个具有清晰功能性且同时打造氛围式用餐体验的空间。用餐区拥有更为强烈的光影空间的划分,视觉增加相互的联系,通过现代简练的建筑手法和材料语言,展示出幽暗神秘的氛围空间,为穿梭于空间中的使用者建立比食物本身更加强烈的感受。
▲用餐区 ©Dazhuang
▲背景不锈钢帷幕仿佛百老汇的神秘帷幕 ©Dazhuang
▲红色光影作为主视觉基调 ©Dazhuang
空间内大量的镜面不锈钢加强了空间的延伸感,墙壁的界限被刻意树立,带有圆形状发光的不锈钢门,若隐若现的定制玻璃砖,背景不锈钢帷幕仿佛百老汇的神秘帷幕,形成一种特有的未来感。
▲若隐若现的定制玻璃砖 ©Dazhuang
▲玻璃砖细部 ©Dazhuang
卫生间的设计延续了整体的设计风格,秩序感的步入通道,线状的发光灯管,不锈钢原色的洗手盆,一切都是为了人的存在对应于空间也是独立的分子,在空间中实现能量互通,目的是达到人与空间的秩序平衡。
▲卫生间 ©Dazhuang
▲轴测图 ©Woodostudio
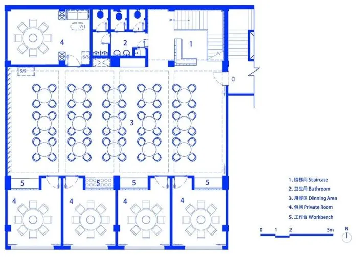
▲平面图 ©Woodostudio
项目名称: QU烤肉酒馆 工作室: Woodo Studio(木斗设计) 网站: www.woodostudio.cn 联系邮箱: info@woodostudio.cn 完工日期: 2021.5 设计团队: woodostudio 项目地址: 上海 建筑面积: 400㎡ 摄影: Dazhuang 材料:红色砌块孔砖、水泥漆、空心玻璃砖、冷轧钢板


酷炫的設計