© Kenji Seo
 
 
The Playhouse是日本东京繁华时尚区青山(Aoyama)的三层建筑的全新改造项目。建筑的一层和二层是英国时装店,三层是婚礼及活动策划公司的大厅。设计团队面临的挑战是通过重新考虑实体店的现有功能,设想后疫情商店的新空间模式。
▼项目外立面 © Kenji Seo
 
 
全球新冠疫情带来的巨大影响之一就是数字化进程显著加快,持续的快速发展预示着未来通过虚拟商店进行购物的体验将更加普遍。针对这种社会状况,设计团队提议重新设想实体店的空间功能,使其从传统的购物场所转变为了解和体验品牌文化的场所。如果购买行为可以虚拟完成,那么实体店的最终目的应该是提升潜在客户的兴趣,从而将他们与产品销售联系起来。
▼移动的帘幕 © Kenji Seo
 
 
项目初期,设计团队将整栋建筑设想成另一种形式的剧场,引入可变的建筑元素,使这里可以容纳各种活动。设计团队将入口门厅设计成带有可移动帘幕的高空间,为演讲和音乐会等活动创造出临时舞台,这里最多可容纳50人。
▼帘幕内部 © Kenji Seo
▼高挑的入口门厅 © Kenji Seo
 
 
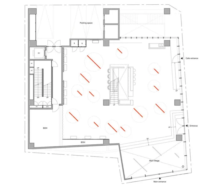
一层商店区域设有多个可旋转的隔板,为举办快闪市集、时装秀或工作坊等活动提供灵活的空间。每面隔板分配给不同的品牌,每隔数月就会更换,在整个楼层创造出一群小型快闪店。
▼轴测与一层平面 © HARUKI OKU DESIGN PAN- PROJECT
 
 
 
 
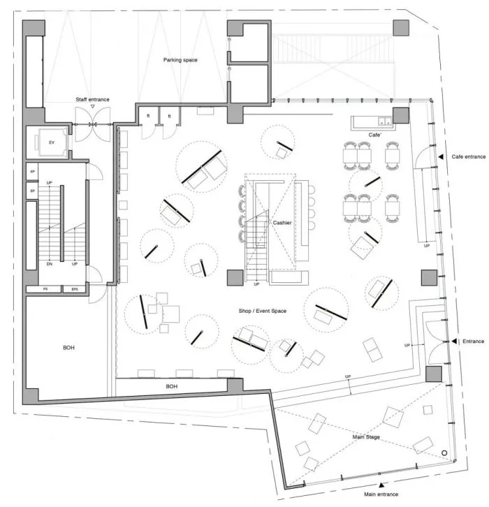
二层中央的楼梯将客人引至三层大厅,并在楼梯外围形成商店常驻品牌的产品的展示空间。
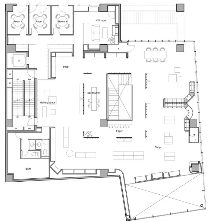
三层大厅设有可以改变空间大小的帷幔,以便举办不同规模和内容的活动。
▼可旋转的隔板 © Kenji Seo
 
 
▼一群小型快闪店 © Kenji Seo
 
 
▼从楼梯回望入口 © Kenji Seo
 
 
▼二层中央的楼梯 © Kenji Seo
 
 
▼常驻品牌的产品的展示空间 © Kenji Seo
 
 
▼不同角度的隔板 © Kenji Seo
 
 
 
 
该项目没有将整个楼层用于商品展示,而是通过使文化、活动空间与销售空间并存,挑战了商店的传统空间模式。该项目旨在探索越来越虚拟化的后疫情社会中商店空间的可能性。
▼使用场景 © Kenji Seo
 
 
 
 
 
 
 
 
 
 
 
 
▼细部 © Kenji Seo
 
 
 
 
▼一层平面图 © HARUKI OKU DESIGN PAN- PROJECT
 
 
▼二层平面图 © HARUKI OKU DESIGN PAN- PROJECT
 
 
▼三层平面图 © HARUKI OKU DESIGN PAN- PROJECT
 
 
Project name: The Playhouse Architecture Firms: HARUKI OKU DESIGN PAN- PROJECT Completion Year: October, 2020 Gross Built Area: 1356m2 Project location: Tokyo, Japan Photo credits: Kenji Seo Photographer’s website: https://kenjiseo.com/


