© 形在空间摄影 / 贺川
于喧哗之下,可安心自处。这是我们对于这样首个自我空间的定义。生活与成长,创造与实现都将寄于其中。
▼项目概览 © 形在空间摄影 / 贺川
当首次面对这一无拘束的空间之时,我们尽可能的去实现空间里关于自我精神的表述。
▼分析图 © 喜叻空间研究
所以当规划平面之初,我们摈弃了除功能之外的一切技法。
于是简洁,温暖,明亮,包容成为了表述空间的主要词汇。
▼入口 © 形在空间摄影 / 贺川
▼水吧 洽谈区 © 形在空间摄影 / 贺川
▼从工作区望向吧台 © 形在空间摄影 / 贺川
▼水吧 洽谈区 © 形在空间摄影 / 贺川
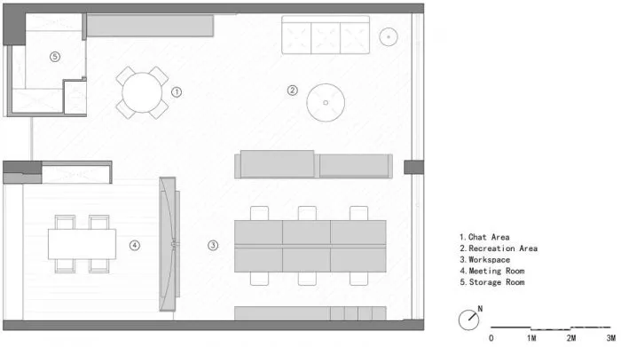
我们希望这是一个专属于使用者的空间。温暖,轻松,有序是我们想要实现的目的。我们抛弃了作为表象而存在的工作空间,更希望空间作为一个通透有序的生活场所而呈现。于是我们提取私宅的手法来完成关于平面的规划。卧室,书房,餐厅,客厅分别对应工作区,会议室,洽谈区,会客区。
▼工作区 © 形在空间摄影 / 贺川
▼会议区 © 形在空间摄影 / 贺川
我们用木材,艺术涂料来构建整个空间,实现整个空间氛围的表达。希望空间的使用者最大限度的沉浸于此。
▼室内细节 © 形在空间摄影 / 贺川
形体间的对位构成,视觉的连续性,是关于空间秩序与形体表述的主要方式。
▼工作区细节 © 形在空间摄影 / 贺川
金属装置的形式和立面相同材质的不同大小的重复切分,使用了最基本的点线面的表述,构成了空间最基本的节奏关系。
▼金属装置 © 形在空间摄影 / 贺川
拱顶与弧形背景的呼应,高低形体之间的相互组合,打破空间的单一节奏秩序,形成空间之间的交互与对话。
▼拱顶与弧形背景 © 形在空间摄影 / 贺川
▼装置细节 © 形在空间摄影 / 贺川
▼平面图 © 喜叻空间研究
▼立面图 © 喜叻空间研究
项目名称:喜叻空间研究办公室 设计方:杭州/喜叻设计 联系邮箱:
755430646@qq.com
项目设计 – 完成年份:2020/12-2021/03 主创及设计团队 主创;高成/张润 团队成员;高成/张润/历云翔/王凯迪 项目地址:杭州 建筑面积:100m² 摄影版权:形在空间摄影/贺川

