这座大胆而现代的住宅坐落在悉尼摩斯曼的斜坡上,最大限度地发挥了戏剧性的景观,并充分利用了澳大利亚的气候和室内外生活方式。
该住宅由屡获殊荣的建筑公司SAOTA设计,是悉尼一个年轻家庭的主要住宅。这是SAOTA在澳大利亚完成的第一个项目,其国际足迹遍及86多个国家。SAOTA与备受尊敬的悉尼TKD建筑事务所合作,将项目带入生活。TKD汇集了当代建筑和室内设计领域的专家。
作为执行建筑师,TKD与客户紧密合作,确保SAOTA的详细设计得到交付,并实现了一个梦想的家。他们的创造力和对卓越设计的承诺是一个关键的成功因素。
对于室内装饰,设计工作室Alexandra Kidd design成功地在室内创造了复杂的空间。
家的风格是强烈的,但经典和固有的复杂。进入住宅,通过一个双层体量的入口空间,可以看到从住宅一直到悉尼港以及更远的地方的开阔的东方景观,从而凸显出戏剧性。
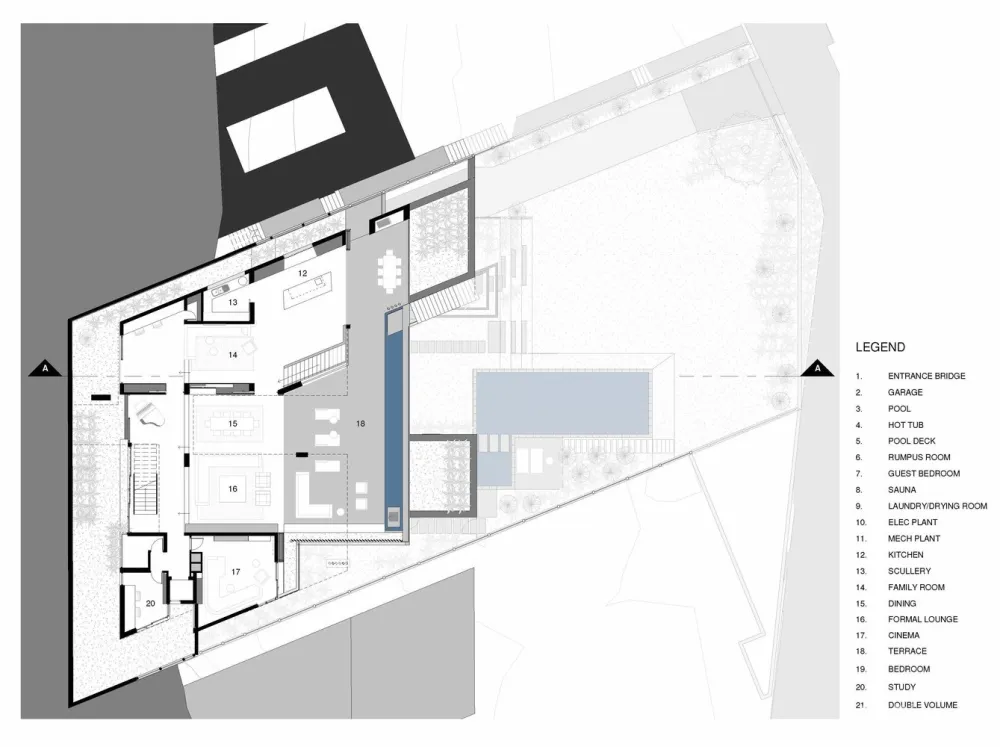
这个住宅在该地区的独特之处在于它位于两个相邻的场地上,允许宽敞的比例开放的生活区和开阔的视野。主要生活区显著地嵌入山坡,低于街道水平,最大限度地保护隐私。生活区两边都开敞,创造了面向海港和西面的东部景观,提供了一个带有裸露岩石特征的隐蔽花园。这给人一种被自然元素包围的感觉。
住宅可从两条街道进入——上层的客人入口和下层街道的停车场入口。从水边看,雕刻的立面是大胆的。从街道一侧看,色调和风格更加低调。客人通过一个木制的入口门进入,并通过一座桥穿过下面的花园。在主层,户外空间包括一个有顶的户外休息室和餐厅,以及漂浮在底层平台之上的卧室。环绕该区域的浅水特色吸收了港口的水元素,为宽敞的主露台创造了一个自然的边缘。
在较低的一层,一个有覆盖的户外区域直接通向游泳池,其隐蔽的热水浴缸是水体的一部分。泳池的深色花岗岩色调正处于潮流之中,具有更加整体的隐性特征。覆盖的户外舒适的生活空间与露天甲板相辅相成,理想的捕捉冬季阳光的温暖。
透过上、下生活区的水景,提升海港与水的连系感。为增加魅力和故事情节,内部使用的电蓝色进一步在远景中拾起神奇的蓝色。
整个房子,原始的混凝土工作与砂岩覆盖层相结合。丰富的地区,这种天然石材已被用在当代的方式。砂岩的这种浅色与木材和青铜的温暖纹理相抵消,用于内部包层和屏蔽。特色的作品,如手工切割灰色花岗岩柜台进一步展示和对比原始的工艺。
隐私保护是多层次的。倾斜的古铜色百叶窗被用来最大化视野,同时最小化向内的视野。靠近入口的进一步机动屏蔽允许在打开时最大限度地采光,或者在关闭时不受街道干扰。除了丰富的生活空间,住宅还包括五间卧室、一间桑拿房、一间健身房、一间酒窖和一间影视厅——配有滚动式屏幕、最新的视听技术和百叶窗。




位置:澳大利亚悉尼
建筑师与室内建筑师:SAOTA, Philip Olmesdahl, Erin Gibbs
年份:2015
摄影师:Justin Alexander

