MUTIPLE POSSIBILITIES
OF OFFICE SPACE
项目类型 | 办公空间
图文提供 | AYZ STUIDO
位于北京国贸CBD的高层写字楼中,AYZ STUDI O为一家年轻的咨询公司完成了新办公室的建造。与传统办公项目不同,材料的创造力与愉悦睿智的当代文人生活被整合进空间,使其拥有了强烈的表达力与感染力。在视野绝佳的落地窗前,CBD棱角分明的城市轮廓线与办公空间形成了张弛有度的拼贴连接。
Soft Space Walking Paths
子曰:“饭疏食,饮水,曲肱而枕之,乐亦在其中矣。不义而富且贵,于我如浮云。”
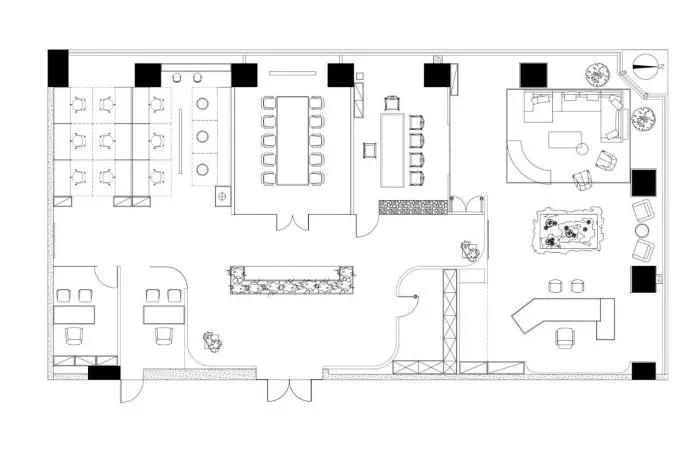
在全新的办公场所中,密集排布的传统办公区消失殆尽,以入口茶水区为中心的多条动线实现了跨功能区协调性。
跟随山石纹理的曲面墙可以单独直达会客区和董事长办公室,两个区域共同占据北侧视野最开阔的120㎡。会议室与董事长办公室连通,而茶室与会议室作为公共活动区与茶水区相对而设,玻璃幕墙将其景观纳入到同一个更大的视野当中。
位于南侧的公共办公区与两个独立办公区既可以通过进入后的常规动线沿曲面墙抵达,同时在走廊上向外打开的门扇提供了另一条快速进入的捷径。
中心茶水区作为交通枢纽将空间编织贯通起来,几乎全开放的功能区在关联中酝酿出恰好的凝聚力,松弛的睿智氛围使整个空间呈现出柔软的理性。
楽 | Delight
EliminatePublic-Private Boundaries
子曰:“知之者不如好之者,好之者不如乐之者。”
虽然业主面向的客户多来自传统行业精英群体,但办公空间仍决定以更年轻的姿态向外输出其理念和经营策略,走出刻板的安全地带之后,迎来愉悦。无论从室内主色调、空间总体氛围亦或是AYZ STUDI O想表达的态度,灵感均注入自然乐趣。
更为简洁的会议室、围合的圆形讨论区以及当代化的东方茶室提供了空间中三个层次的社交场所,公私间的明确壁垒消弭,旨在更自在的社交方式可以随时发生。
自然肌理转化成材质纹理与印花,通过石材、肌理布以及小型景观呈现。这些趋向自然野生的设计插入空间,亦不去做东西方的明确指向,既有曲面和平面铺陈的大写意趣,也有见微知著的草木山石,在同一空间里形成疏阔愉悦的办公生态,提供一个更有益于创意发生的高效工作场所。
和 | Harmony
Acrylic and Oriental Ink Painting
子曰:“礼之用,和为贵。先王之道,斯为美。小大由之,有所不行。知和而和,不以礼节之,亦不可行也。”
东方水墨叠加亚克力渐变板的艺术装置在空间多处出现,经过叠加的艺术品被部分“上色”,海天沙石呼之欲出,想象力似乎突然被撕扯开,绵延至无限。
在格式塔心理学逻辑中有这样的解析——当我们看到事物的多组信息时,会自动识别并分别设想每组信息的完整形象,使具有深度的物件的各个方向被压缩,形成浅空间,比如立体主义绘画的诞生。这种叠加则像是浅空间的反向延展,在时间和空间的维度上打开了三维想象。在办公空间中,它以这种张力传达出突破边界却又合而为一的理念。
暮色降临,城市与空间对望,玻璃幕墙恰好成为一块巨型亚克力板,为彼此罩上一层色彩,可能性开始向无限处延展。
项目名称:国贸三期办公
北京市朝阳区建国门外大街1号国贸三期A座
ABOUT DESIGNER
新文人主义生活美学品牌 羽ASPLUME创始人
安悦宅建筑设计事务所 AYZ STUDI O创始人
2007年由姜辉先生创立的生活美学品牌——羽ASPLUME,下设安悦宅建筑设计事务所和AYZ STUDI O。
AYZ STUDI O以Arc曲线、Yin-Yang阴阳、Zen禅三维要素为商业品牌制定设计策略,重建人与空间的关系,成就趋向完整的场所。
从传统文化根基出发,用独有的设计手法,多维度打造适合东方精英人群特质的生活和工作环境。主持设计了包括沈阳绿地国宾府样板间,杭州万融城营销中心,四川成都麓湖系列样板间,南京十竹斋,绿城常州生活馆,绿城法式系列样板间,万科北京城市中心,联想无人店等众多地产发展商和企业家的相关产业空间。


有点想法!