探索“社区 生活模式”场景体验
从庸碌、僵化的生活中抽离放置于舒适的空间当中,通过绿色、休闲、书吧、咖啡、花园来相互增强彼此的功能,将一切幻想实现并融入到一个整体空间中。
作为精神文化与居民生活共同体,社区文化的营造一直是我们探究的话题。在多数情况下,文化与社区是不可割裂的,文化是一定的空间范围和时间向度上生成的,而社区是文化的土壤。文化的生长孕育于社区的社会活动与生活工作中,而人便是社区文化的核心,一切都将从人出发,以人为本。
美的远洋云著坐落于江门蓬江区石头村。在这个五邑文化之都,广府文化代表城市之一,诞生过许许多多的文人雅士与维新先驱,而一个小小的石头村,便走出了两位国家院士。
如今城市日新月异,江门在承载着历史性与文化性的同时,已成为粤港澳大湾区重要节点城市,“老广”与涌入的奋斗者在这里交汇、互动,社区的属性也已悄然发生演变。
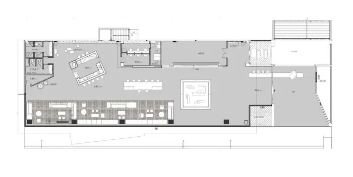
01/概念 CONCEPT 作为生活社区中心以及未来归家动线入口,远洋云著除了承担售楼部功能。赏目的绿植、温暖的木色调也被赋予了作为社区灯塔的作用。居民从这里出发,也从这里回到舒适的家。
当空间划分为不同功能空间时,我们利用书本折页的元素浮现于整体空间当中。即夺人眼球亦聚集了空间的视角。空间线条自由延展,即贯穿各区域的引导视觉动线,也以概念手法呈现项目核心理念。
于是我们从居民生活作为切入,以文化综合体 居民活动中心围绕展开设计,赋予它新时代的生活方式,为了满足文化属性与社交属性,我们将空间划分为咖啡吧 阅读书吧 社交区三个功能,分别满足不同需求。
空间前端为销售区域,未来也将成为社区归家入口,作为社区居民必经之处,我们选择将整面墙体打通,让环境进入空间,而线条则成了空间语言,线条的切割、构成、延展,最终形成视觉焦点,聚焦在内部空间
SOCIAL ATTRIBUTES
我们认为,社交营造的核心在于人,人与空间、人与环境、人与人,这些关系都会变得微妙,同时也尤其重要。将这个纵向空间的外立面通透化是让空间与环境互动的最好方式,而人与人的社交、共联是建立在此之上的。
探索多样化的社交形态,结合品质生活与文化展开交互的更多可能性。
休闲组沿着被打通的玻璃面与天花造型一字延伸,这是空间的整体,也是视觉的连续,但在这种整体之下,沙发组以平面构成的方式组合,在有序之中制造一种独特的无序,使得人与人的交流更加灵动、自由。
CULTURAL ATTRIBUTE
我们将空间分为数个体块。抽取其元素,我们解构、旋转、重组。通过不同空间的演绎,进而创造一种有温度的场所。
上世纪80年代末期,意大利人首先提出“慢生活”方式,当快速的生活节奏达到一个峰值,人们都逐渐渴望回归慢生活,所以在为空间带来社交属性之余,我们也在设想如何让空间慢下来。
我们希望能够让人们在结束忙碌工作后闲暇时感受空气氤氲的咖啡香,一切都化作空间语言向来宾说:读一本书,慢一点,再慢一点。
我们在拆解重组后得到一个引导空间动线的咖啡吧,而为一切都将围绕着它进行,通过咖啡吧,书吧与洽谈区得以串联、对话。此时空间被打开,动线是自由的,人也是自由的。
项目名称 | 广东江门美的远洋·云著销售中心
空间设计 | 研质建筑装饰设计(广州)有限公司
陈设设计 | 广州本末言建筑装饰设计有限公司
甲方团队 | 廖杰松、李捷、张凯
竣工时间 | 2020.12
项目面积 | 900㎡
研本设计总监 / 曾曙
研本(研质建构-本末言)不拘泥于风格和手法,关注功能和运营,以空间美学场景的营造作为设计理念;在设计过程中,不断探寻空间的秩序和深挖最佳主题的表达;来塑造、诠释空间!同时我们关注空间的工艺实施与成本控制。力求使原创意能得到最大程度的实现。

