曾是中国十三代王朝都城的西安有着引领最先端科技的高新技术产业开发区。在耸立于开发区一隅的时尚建筑迈科中心内的1F/2F,由日本著名设计师池贝知子女士操刀打造了覆盖4500m²、以书店为主的综合商业设施「言几又·迈科中心旗舰店」。世界遗产兵马俑、丝绸之路的起点、具有深厚文化底蕴的古都、上层君悦酒店的奢华环境、曲线型双塔建筑的优美造型,在这些赋予强烈印象的特征的基础上,打造促进东西方交流、文化融合、人与书邂逅结缘的上质空间。
以「Library & Gallery」为主题。将追求时间质量的人们向往的阅读空间「Library」和感受文化艺术的空间「Gallery」这两个要素融合在一起,采用了可诱发顾客与书店创意的互动、共同营造理想环境的「宫殿式布局」。如同宫殿,从一个房间步入另一个房间,以符合人性尺度的空间构成,实现「人与人」、「人与书」、「人与空间」的亲和,就像众人喜爱的「家」,给人们归属感。
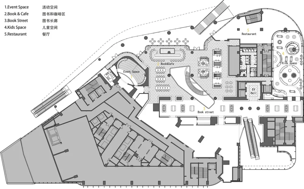
1F的挑空门厅设置了10m高的书架,强烈的存在感使步入书店的人们瞬间感受到置身书店的氛围;旋转楼梯处的挑空中庭地面采用了明快的色调;天花部采用镜面处理,给人以不同于周围景色的印象;挑空空间悬挂的照明,如同飞舞的纸片;用石材镶嵌出西安中心部地图的舞台,可用于举办丰富多彩的活动。
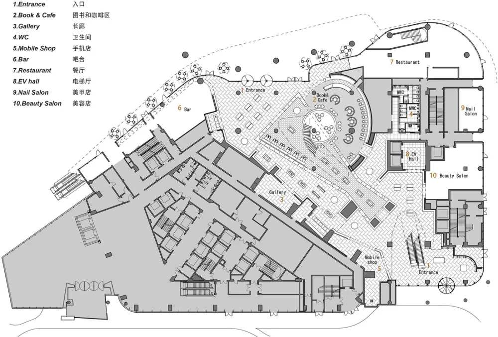
2F兼具酒店休憩区功能,设立了吧台,为办公楼内的员工提供交流的场所。宽5m长50m的图书长廊,通过降低天花的高度和采用色彩厚重的地毯,同时在书架上设置了展示柜,营造出如画廊一般的充满艺术氛围的空间。这些触目可及、饱含文化元素的艺术作品,都是根据当地的文化主题而量身定做的。紧密融入中华历史文化积淀,整个空间充盈着古典氛围与情趣。在这里,可以使到访的客人放松心情、舒缓压力、探求、沉思、享受人生,踏上一段超越时空的创意与心灵之旅。


项目信息
项目名称:言几又·迈科中心旗舰店
业主:迈科集团
设计师:池贝知子
室内设计公司: ikg inc. (http://ikg.cc)
摄影:Nacasa & Partners
项目地址:西安市高新区锦业路12号
项目面积:4500 m² (1F/2F)

