KOYI 柯翊设计总监
上海柯翊建筑设计有限公司是一家专业的室内设计公司。专注于地产样板间、会所、售楼部、办公空间、商业空间、别墅、住宅等室内设计领域。至今已完成多个地产室内设计项目,倍受业界好评以及客户的专业认可,以专业的设计能力领先于市场。
经过几年的发展,团队更是吸纳了一批来自国内外各大知名设计机构设计师的加入,形成了比肩行业内一线设计品牌的工作团队和组织架构。我们年轻但经验丰富,秉承对设计的热爱和对自身价值的追求走到一起。自信对前沿风尚的敏锐接触和对国内优质需求的深度了解,能够创造出更多优秀且充满惊喜的作品,服务更多期待创新的企业和个人,开创属于KOYI柯翊设计的一片天地!
君到姑苏见,人家尽枕河
古宫闲地少,水港小桥多
夜市卖菱藕,春船载绫罗
遥知未眠月,乡思在渔歌
“上有天堂,下有苏杭”,苏州历经数千年发展,依然保持着“水陆并行、河街相临”的双棋盘格局和“小桥、流水、人家”的古朴风貌。
当传统中国符号和当代技艺相结合,传承与创新融合,会创造出怎样的空间?
本案秉承中式传统建筑之魂,以当代美感设计手法,抽取中式元素融入建筑立面,加以国画大师吴冠中作品的创作灵感,于每一处注入江南的风致雅韵,巧匠造就属于中国人的浸润深厚人文气质的宅院雅居——苏州绿都苏和雅集下叠。
粉墙黛瓦马头墙,飞檐翘角花格窗,这是徽派建筑的风格特色,就如徜徉着翰墨香气的国画,雅致讲究。苏和雅集下叠运用明瓦窗、马头墙、雕刻线、青黑瓦等徽派建筑元素部件,配合现代工艺,诠释新中式文化建筑的韵味。
入户玄关处采用镂空木格栅设计,挑空处的景观若隐若现,呈现出诗意的朦胧美,同时打破自然与内部空间的界限,令地下空间更透亮、灵动。大面积的留白营造了空灵纯粹之感,远离喧嚣,岁月静好。
步入横厅,空间每处都充盈着线条艺术的魅力,有如国画大师吴冠中笔下的画作,飞舞的线条、有力的块面、雅致的造型,都在呈现一幅江南墨画,开放式布局更显空间的恢弘气势。
光,是空间内天然的艺术品。玻璃作为传播的介质,让光在室内尽情流淌,如同建筑的形和面,经营空间的美感。光影流动间增添些许灵动气韵。
横厅的立柱在保留结构的完整性和安全性的同时,与天花板线条协同划分了客餐厅区域。富有质感的浅色石材、质朴自然的原木以及米色的家具、中式茶具等部件,共同营造了空间整体雅致的氛围。
群青色是最古老的颜色,古时候采用上等青金石制作而成,用于国画,颜色历久弥新。群青色作为空间的点睛之笔,既为素雅的空间增添几分明亮活泼,又呈现了一脉相承的文化底色,同时体现了现代简约的创新。
餐厅被放置在大片的天窗下,充沛的阳光和晨昏日暮伴随一日三餐、四时之景,触手可及的苍蓝天空,营造豪宅级的景观体验。透过玻璃,建筑的结构之美和体量感尽收眼底,空间的面块与灯光勾勒有关家与自然的缱绻呢喃。
空间与外界产生了微妙的平衡感。人类透过自然,最终抵达了自己。
一旁的休息区简约而富有诗意,加以现代艺术的手法呈现,别有一番格调。执一盏明灯,石桌上的纹理似乎在讲述传承千年的故事。
地下庭院增设玻璃顶盖和加大挑空面积,令地下空间更透亮、灵动。纯白的旋转楼梯完美契合斐波那契数列,一切美好的想象尽在其中。
楼梯间的吊灯如同水滴般晶莹剔透,间墙开窗从天井引入采光,并将一侧墙打开,增加空间的通透性,同时打破自然与空间的界限。
通往工作室的过道极简纯白,工作室的空间延续横厅雅致的基调,素净澄明,一侧的挑空引入阳光,纯净的体块构图与悠悠一抹群青蓝,宁静致远,为空间注入盈盈活力。日光澄澈下垂,悬空的艺术装置如鱼翔浅底,“皆若空游无所依”。
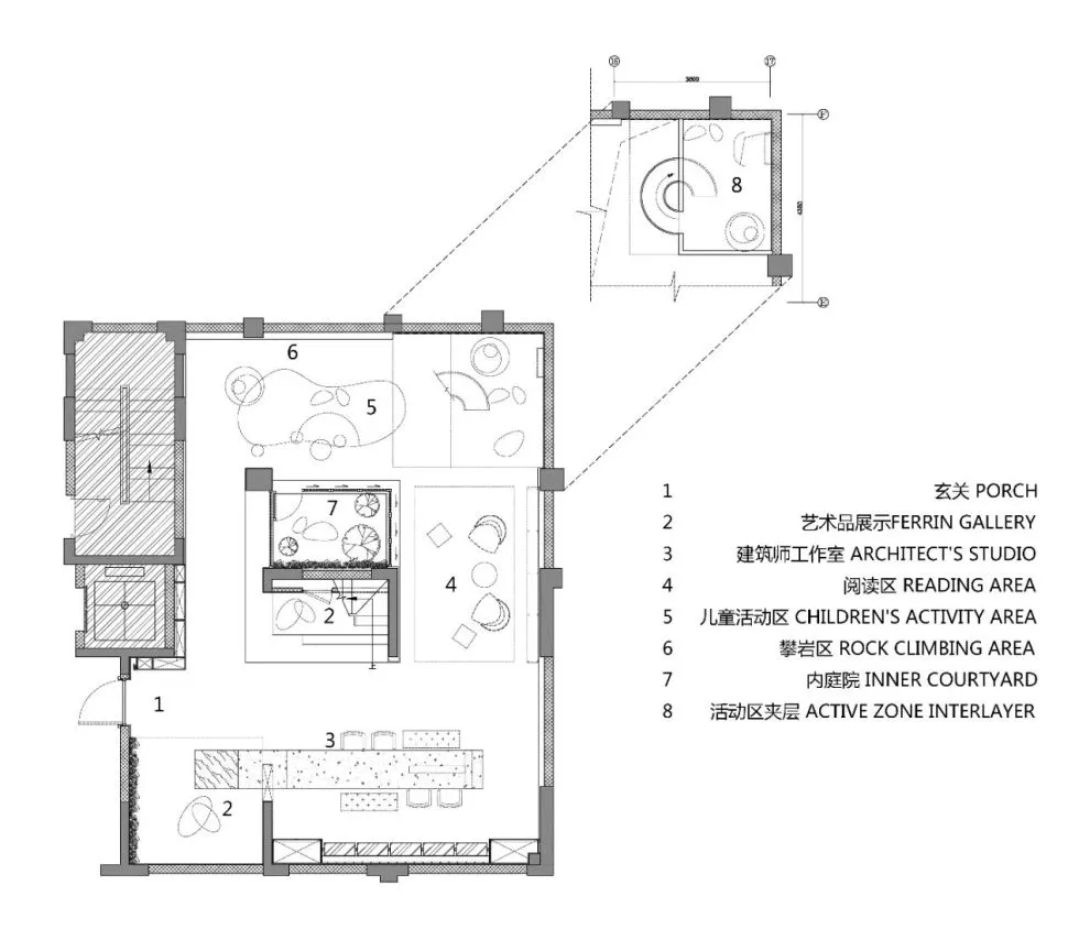
阅读区、儿童区和攀岩区呈L型布局,连通的开放空间给孩子更多活动场地。墙面装饰简约而写意,带靠背的矮椅让你在翰墨书香中更舒适,灯光在几何线条中交织,散发出简明的现代质感美,而儿童区更多缤纷色彩,令空间氛围更活泼。
透过玻璃墙放眼望去是内庭院的景致,让人仿佛置身大自然,我们为孩子打造了一个多彩的成长空间,在这里学习、玩耍、运动,更利于孩子养成阳光的性格。
主卧以灰、米色为主,配色简约而均衡,符合东方审美中的留白一说,赋予空间更多想象力。主卧以衣柜为界,划分出衣帽间与浴室,让空间更简约实用。
新中式风格不拘泥于传统水墨,长辈房结合了当代的思想和材料诠释东方艺术意境,以不同的艺术形态表现美学空间。把侘寂风发挥到极致,展现老一辈朴素的生活哲理,“大道至简”。
小主人是热爱击剑的小绅士,所以他的天地更多一分时尚高贵的氛围。黑白格床品、蓝色的桌椅、遍布的击剑元素,灯光巧妙地与击剑融合,营造出简约别致的氛围。
回根溯源传统文化,我们并非一味地自我扬弃,亦绝非一味模仿照搬,而是对东方元素加以提炼,用现代材质对空间进行全新演绎,体现现代人的审美需求和生活品味,重新定义幸福感,回归生活本身。
项目名称:绿都苏和雅集下叠样板房
甲方团队:付超、沈璇、孙焘、武霞、张春旸、赵旸
硬装设计:上海柯翊建筑设计有限公司
设计团队:周晟、汤伟杰、张树勇、李蓉
软装设计:广州库玛室内装饰设计有限公司
完工时间:2020年10月
摄影单位:十观空间摄影

